Kích thước thang máy 1000kg là tập hợp các tiêu chuẩn kỹ thuật về không gian cabin, diện tích hố thang và các thông số vận hành nhằm đáp ứng nhu cầu tải trọng lớn, tương đương với sức chứa từ 13 đến 15 người trong một lần di chuyển. Đây là dòng thang máy tải khách hạng trung phổ biến nhất hiện nay, đóng vai trò “xương sống” trong hệ thống giao thông đứng của các tòa nhà cao tầng, văn phòng cho thuê, khách sạn hoặc chung cư mini. Bài viết này sẽ cung cấp một cái nhìn toàn diện và chi tiết nhất về các kích thước tiêu chuẩn theo quy định mới nhất năm 2025, phân tích sâu về công suất tiêu thụ điện năng, các lưu ý quan trọng trong bản vẽ kỹ thuật và đưa ra những khuyến nghị chính xác về loại công trình phù hợp để lắp đặt dòng thang này, giúp chủ đầu tư tối ưu hóa chi phí và hiệu quả sử dụng.
Kích thước thang máy 1000kg chuẩn hiện nay
Việc xác định chính xác kích thước thang máy 1000kg ngay từ giai đoạn thiết kế sơ bộ là yếu tố tiên quyết để đảm bảo quá trình lắp đặt diễn ra thuận lợi, tránh các sai sót dẫn đến việc phải đục phá kết cấu bê tông gây lãng phí và ảnh hưởng đến an toàn công trình. Dưới đây là bảng thông số kích thước tiêu chuẩn được áp dụng phổ biến cho các dòng thang máy liên doanh và nhập khẩu trong năm 2025, được tham chiếu dựa trên các tiêu chuẩn an toàn hiện hành.
| Hạng mục | Kích thước / Thông số tiêu chuẩn 1000kg | Ghi chú |
| Tải trọng định mức | 1000 kg | Tương đương sức tải khoảng 13 – 15 người. |
| Công năng | Thang tải khách | Phù hợp cho văn phòng, chung cư, khách sạn, tòa nhà thương mại. |
| Kích thước cabin (R × S) | 1400 mm × 1600 mm | Kích thước lọt lòng sử dụng thực tế, đảm bảo không gian thoáng cho 13-15 người đứng. |
| Kích thước hố thang (R × S) | 2100 mm × 2300 mm | Kích thước phủ bì phần thô giếng thang (cần đảm bảo độ thẳng đứng). |
| Kích thước cửa tầng (R × C) | 900 mm × 2100 mm | Loại cửa mở tim (Center Opening – CO) tiêu chuẩn, giúp lưu thông nhanh chóng. |
| Chiều sâu hố pít (Pit) | ≥ 1500 mm | Chiều sâu tối thiểu để lắp đặt giảm chấn và đảm bảo an toàn, tham chiếu TCVN 6395:2008. |
| Chiều cao OH (Overhead) – Có phòng máy (MR) | ≈ 4500 mm | Tính từ mặt sàn tầng trên cùng đến sàn phòng máy kỹ thuật. |
| Chiều cao OH – Không phòng máy (MRL) | ≈ 4200 mm | Thường thấp hơn loại có phòng máy, là giải pháp tối ưu cho công trình bị hạn chế chiều cao. |
| Tốc độ di chuyển | 60 – 105 m/phút | Tùy thuộc vào số lượng tầng và lưu lượng giao thông của tòa nhà. |
Lưu ý quan trọng khi áp dụng kích thước:
-
Tính linh hoạt của thiết bị: Các kích thước nêu trên là quy chuẩn phổ biến nhất trong năm 2025, tuy nhiên, con số thực tế có thể dao động nhẹ tùy thuộc vào yêu cầu kỹ thuật đặc thù của từng hãng sản xuất thang máy như Mitsubishi, Fuji, Thyssenkrupp hay Hyundai.
-
Trường hợp đặc thù cho bệnh viện: Đối với các công trình y tế cần vận chuyển băng ca cứu thương, dù tải trọng vẫn là 1000kg, nhưng cấu hình kích thước cabin bắt buộc phải thay đổi chiều sâu lớn hơn (thường là ≥ 1400mm × 2400mm) để chứa vừa giường bệnh, do đó không thể áp dụng kích thước cabin chuẩn 1400mm × 1600mm của thang tải khách thông thường.
-
Tuân thủ bản vẽ Shop-drawing: Trước khi tiến hành xây dựng hố thang, chủ đầu tư cần yêu cầu đơn vị cung cấp thang máy xuất bản vẽ shop-drawing chi tiết và duyệt xác nhận, bởi chỉ cần sai lệch vài centimet cũng có thể dẫn đến hậu quả nghiêm trọng là thang không lắp vừa, buộc phải cắt gọt dầm hoặc tường, gây tốn kém và mất an toàn kết cấu.
Thông số kỹ thuật thang máy 1000kg
-
Tải trọng: 1000 kg.
-
Khả năng đáp ứng: 14 – 15 người/lượt di chuyển.
-
Số tầng phục vụ tối ưu: Từ 2 – 10 tầng (tùy thuộc vào thiết kế và chiều cao tầng của công trình).
-
Số điểm dừng (Stops): 2 – 10 điểm dừng.
-
Thương hiệu phổ biến: Mitsubishi, Fuji, Montanari, Wurttemberg…
-
Tốc độ vận hành: 60 m/phút (cho nhà thấp tầng) hoặc 90 m/phút (cho tòa nhà cao tầng để giảm thời gian chờ).
-
Công suất động cơ: 11 kW (đối với máy kéo có hộp số thông thường).
-
Kiểu mở cửa: CO (Center Opening – Mở trung tâm về hai phía).
-
Nguồn điện cung cấp: 3 pha, 380 VAC, 50 Hz (bắt buộc để đảm bảo động cơ tải trọng lớn hoạt động ổn định).
-
Hệ điều hành: Đơn lập (Simplex) hoặc nhóm (Duplex/Group) nếu lắp nhiều thang.
-
Xuất xứ: Nhật Bản, Thái Lan, Malaysia, hoặc liên doanh lắp ráp trong nước.
Những lưu ý chuyên sâu khi lựa chọn thông số:
-
Lựa chọn tải trọng cho tòa nhà cao tầng: Nếu tòa nhà của bạn có chiều cao vượt quá 10 tầng với mật độ người sử dụng lớn, bạn nên cân nhắc nâng cấp lên dòng thang máy có tải trọng 1250kg hoặc 1600kg để tăng năng lực vận chuyển và rút ngắn đáng kể thời gian chờ đợi vào giờ cao điểm.
-
Tối ưu hóa chi phí điện năng và hạ tầng: Trong trường hợp không gian giếng thang bị hạn chế hoặc muốn tiết kiệm chi phí vận hành, chủ đầu tư có thể lựa chọn tốc độ 60 m/phút thay vì 90 m/phút; điều này cho phép sử dụng động cơ có công suất nhỏ hơn (khoảng 6–8 kW), giúp giảm tải cho hệ thống điện và chi phí hạ tầng trạm biến áp.
-
Xác thực kích thước thực tế: Luôn luôn yêu cầu và kiểm tra kỹ bản vẽ shop-drawing từ nhà cung cấp để xác nhận chính xác kích thước lọt lòng hố thang, chiều sâu hố Pit và chiều cao Overhead (OH) trước khi đặt bút ký hợp đồng hoặc khởi công xây dựng phần thô.

Công suất thang máy 1000kg
Hiểu rõ về công suất tiêu thụ điện của thang máy 1000kg là yếu tố then chốt giúp chủ đầu tư hoạch định chi phí năng lượng hàng tháng, đồng thời chuẩn bị hệ thống lưới điện 3 pha phù hợp để thiết bị vận hành trơn tru. Công suất của thang máy phụ thuộc lớn vào loại động cơ (có hộp số hay không hộp số) và công nghệ điều khiển biến tần đi kèm.
Với cấu hình thông dụng nhất trên thị trường hiện nay cho thang tải khách 1000kg, vận hành ở tốc độ tiêu chuẩn 60–90 m/phút và sử dụng máy kéo của các thương hiệu như Mitsubishi hay Montanari:
-
Công suất động cơ định mức: Thường rơi vào khoảng 11 kW. Đây là mức công suất đảm bảo thang máy có thể khởi động và vận hành êm ái khi full tải (đủ 1000kg) mà không gặp hiện tượng sụt áp hay quá tải cục bộ.
Tuy nhiên, sự phát triển của công nghệ thang máy hiện đại đã mang đến những giải pháp tiết kiệm năng lượng hiệu quả hơn:
-
Công nghệ thang máy không phòng máy (MRL) và động cơ từ trường vĩnh cửu: Một số model đặc biệt như thang máy kính, thang máy MRL (Machine Room Less) sử dụng động cơ đồng bộ nam châm vĩnh cửu (Gearless) và biến tần VVVF thế hệ mới có thể vận hành hiệu quả với mức công suất thấp hơn, chỉ khoảng 6.5 – 8 kW ngay cả khi đạt tốc độ 1.0 m/s.
-
Thực tế tại thị trường Việt Nam: Mặc dù công nghệ tiết kiệm điện đã phổ biến, nhưng để đảm bảo hệ số an toàn cao nhất và tính sẵn có của linh kiện thay thế, đa số các hãng thang máy và đơn vị lắp ráp tại Việt Nam vẫn công bố và khuyến nghị mức công suất 11 kW cho gói thang 1000kg trong các hồ sơ mời thầu và thiết kế kỹ thuật.
Báo giá thang máy 1000kg mới
Giá thang máy tải trọng 1000kg phụ thuộc lớn nhất vào nguồn gốc xuất xứ (Liên doanh hay Nhập khẩu) và số tầng phục vụ. Dưới đây là mức giá sàn tham khảo trên thị trường hiện nay:
| Loại thang máy | Mức giá tham khảo (VNĐ) | Đặc điểm chính |
| Thang máy Liên doanh | 350.000.000 – 550.000.000 | Máy kéo, điều khiển nhập khẩu chính hãng (Mitsubishi, Fuji…); Cabin gia công trong nước. Phù hợp ngân sách vừa phải, dễ bảo trì. |
| Thang máy Nhập khẩu | 800.000.000 – 1.500.000.000+ | Nhập khẩu nguyên chiếc 100% (Mitsubishi, Schindler, Otis…). Đồng bộ cao, thẩm mỹ tinh tế nhưng giá thành và chi phí thay thế linh kiện cao. |
Các yếu tố làm thay đổi giá thực tế:
-
Số điểm dừng (Stop): Tăng/giảm 01 tầng sẽ cộng/trừ khoảng 10.000.000 – 15.000.000 VNĐ.
-
Tốc độ: Nâng cấp từ 60m/phút lên 90m/phút hoặc cao hơn sẽ tăng chi phí động cơ và biến tần.
-
Nội thất Cabin: Các tùy chọn “Option” như inox hoa văn, vàng gương, vách kính cường lực hay sàn đá granite tự nhiên sẽ có giá cao hơn tiêu chuẩn.
-
Địa điểm lắp đặt: Công trình ở tỉnh xa hoặc vị trí lắp đặt khó khăn có thể phát sinh phí vận chuyển và thi công.
Lưu ý: Để nhận bảng báo giá chi tiết chính xác nhất cho công trình của bạn, vui lòng liên hệ trực tiếp hotline 091 114 5522.
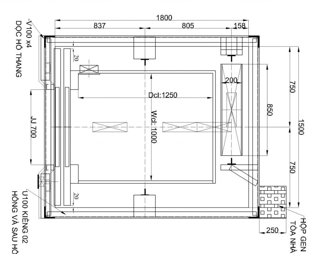
Bản vẽ thang máy 1000kg
Bản vẽ kỹ thuật thang máy 1000kg là tài liệu pháp lý và kỹ thuật quan trọng nhất, thể hiện chi tiết cấu trúc mặt cắt dọc (dọc hố thang) và mặt bằng (cắt ngang hố thang) để định vị chính xác các thiết bị như ray dẫn hướng, đối trọng, cabin và cửa tầng. Một bản vẽ chuẩn xác không chỉ giúp đội ngũ xây dựng thi công đúng kích thước hố thang, dầm đà lanh tô cửa, mà còn giúp chủ đầu tư hình dung rõ ràng về không gian lưu thông và vị trí lắp đặt phòng máy (nếu có).

Thang máy 1000kg phù hợp trong công trình nào?
Với kích thước cabin rộng rãi và khả năng chịu tải vượt trội, thang máy 1000kg không chỉ đơn thuần là phương tiện di chuyển mà còn là giải pháp nâng cao giá trị tiện ích cho rất nhiều loại hình công trình khác nhau. Dưới đây là phân tích chi tiết về sự phù hợp của dòng thang này đối với từng mô hình tòa nhà cụ thể:
-
Chung cư mini 5–10 tầng: Đây là lựa chọn lý tưởng nhất vì thang máy 1000kg đủ sức chở 13–15 người/lượt, giải quyết bài toán giao thông vào giờ cao điểm sáng và chiều. Với tốc độ 60–90 m/phút, thang đảm bảo sự tiện lợi cho cư dân mà chi phí đầu tư và bảo trì vẫn nằm trong mức hợp lý.
-
Văn phòng cho thuê 5–10 tầng: Tại các tòa nhà văn phòng quy mô vừa, lưu lượng nhân viên di chuyển thường tập trung dày đặc vào một vài khung giờ. Thang máy 1000kg với tốc độ 90 m/phút sẽ giúp giảm thiểu thời gian chờ đợi, nâng cao hiệu suất làm việc và hình ảnh chuyên nghiệp của tòa nhà.
-
Khách sạn 3–4 sao quy mô 6–12 tầng: Đối với khách sạn, thang máy không chỉ chở người mà còn phải chở hành lý cồng kềnh. Kích thước cabin 1400×1600 mm hoàn toàn đáp ứng được việc vận chuyển xe đẩy hành lý cùng lúc với khách hàng. Yếu tố thẩm mỹ cao và vận hành êm ái của dòng thang này cũng là tiêu chuẩn bắt buộc để đạt sao.
-
Nhà phố diện tích lớn 5–8 tầng (kết hợp ở và kinh doanh): Với các gia đình đông thành viên hoặc nhà phố kết hợp cho thuê mặt bằng, thang 1000kg là sự đầu tư đón đầu tương lai. Kích thước của nó vừa phải, không chiếm quá nhiều diện tích lõi nhà nhưng lại mang đến sự thoải mái tối đa khi sử dụng.
-
Nhà hàng – Khách sạn nhỏ 5–7 tầng: Ngoài việc chở thực khách, thang máy 1000kg còn đóng vai trò như một thang tải thực phẩm và trang thiết bị cơ động. Tải trọng lớn giúp việc vận chuyển bàn ghế, nguyên liệu hay các thiết bị tổ chức sự kiện trở nên dễ dàng và nhanh chóng.
-
Trường học – Trung tâm đào tạo 5–10 tầng: Đặc thù của trường học là lượng học sinh di chuyển ồ ạt vào giờ giải lao. Thang 1000kg có khả năng chịu tải tốt, phục vụ hiệu quả cho giáo viên, học sinh và vận chuyển các đồ dùng học tập, thiết bị giảng dạy nặng nề.
-
Bệnh viện, phòng khám tư nhân 4–8 tầng (Không tải băng ca chuyên dụng): Lưu ý rằng đây là sự lựa chọn cho các phòng khám vận chuyển bệnh nhân đi lại bình thường, người đi xe lăn hoặc người nhà. Với tải trọng 1000kg, không gian cabin đủ rộng để xe lăn xoay trở thoải mái. (Lưu ý: Nếu cần tải giường bệnh nằm, cần thiết kế cabin chuyên dụng theo kích thước sâu).
-
Nhà máy, xưởng sản xuất 3–5 tầng (Tải khách kết hợp hàng nhẹ): Tại các khu công nghiệp, thang máy 1000kg thường được sử dụng để vận chuyển cán bộ nhân viên và các loại hàng hóa, linh kiện điện tử, thùng carton nhẹ. Cabin thường được ốp inox sọc nhuyễn để tăng độ bền và khả năng chống va đập.
-
Trung tâm thương mại mini 3–5 tầng: Phục vụ đa dạng đối tượng từ khách mua sắm, nhân viên bán hàng đến việc luân chuyển hàng hóa giữa các tầng. Tải trọng 1000kg đáp ứng tốt mức lưu lượng trung bình mà không gây tắc nghẽn cục bộ.
-
Ký túc xá, nhà nghỉ công nhân 5–9 tầng: Ưu tiên hàng đầu ở đây là độ bền và khả năng chở đông người cùng lúc để giải tỏa áp lực giao thông vào giờ tan ca. Thang máy 1000kg là giải pháp cân bằng giữa chi phí đầu tư thấp và hiệu quả vận hành lâu dài, bảo trì đơn giản.

Kết luận
Tổng kết lại, thang máy 1000kg là giải pháp giao thông trục đứng tối ưu cho các công trình tầm trung và cao tầng, cân bằng hoàn hảo giữa khả năng vận chuyển mạnh mẽ (13-15 người), kích thước hố thang hợp lý và chi phí vận hành tiết kiệm. Việc nắm vững các thông số kỹ thuật, kích thước tiêu chuẩn và công suất điện sẽ giúp chủ đầu tư đưa ra quyết định sáng suốt, đảm bảo tính an toàn và hiệu quả kinh tế lâu dài cho dự án. Nếu bạn đang cần tư vấn chi tiết về bản vẽ thiết kế hoặc báo giá lắp đặt thang máy 1000kg chính xác nhất cho công trình của mình, hãy liên hệ ngay với đội ngũ chuyên gia tại thangmaygiadinh.net.vn để được hỗ trợ miễn phí và nhận những ưu đãi tốt nhất.
Câu hỏi thường gặp về thang máy 1000kg
Lắp thang máy 1000kg có cần xin giấy phép xây dựng không?
Theo quy định tại Việt Nam, lắp đặt thang máy trong công trình xây dựng cần có giấy phép xây dựng hoặc xác nhận đủ điều kiện về an toàn kỹ thuật. Cụ thể:
- Với thang máy mới hoặc nâng cấp hệ thống hiện có, chủ đầu tư phải thực hiện thủ tục xin phép tại cơ quan quản lý xây dựng địa phương.
- Với công trình nhỏ, như nhà riêng, có thể không cần giấy phép nhưng vẫn phải tuân thủ các tiêu chuẩn an toàn, phòng cháy chữa cháy, và hợp tác với đơn vị lắp đặt có đầy đủ giấy phép.
Việc tuân thủ pháp lý sẽ giúp tránh phát sinh rắc rối và đảm bảo vận hành thang máy lâu dài.
Thang máy 1000kg có lắp được cho nhà ống không?
Hoàn toàn có thể lắp đặt cho nhà ống, nhà phố hay biệt thự nhỏ, miễn là cấu trúc công trình đáp ứng yêu cầu về tải trọng và không gian xây dựng. Các nhà sản xuất hiện nay đã thiết kế dòng thang máy phù hợp với nhà ống, tối ưu diện tích và linh hoạt khi thi công.
Tuy nhiên, cần khảo sát kỹ lưỡng về:
- Mặt bằng và chiều cao trần
- Chiều sâu hố pit
- Khả năng chịu lực của móng
Việc khảo sát trước sẽ giúp chủ đầu tư dự trù chi phí hợp lý, chọn đúng hệ thống và tránh các vấn đề pháp lý, kỹ thuật trong quá trình sử dụng.
Thời gian thi công thang máy 1000kg mất bao lâu?
Thông thường, thời gian từ khi ký hợp đồng đến khi hoàn thiện kéo dài từ 3-8 tuần, phụ thuộc vào quy mô dự án, điều kiện thi công và yêu cầu kỹ thuật. Các bước chính gồm:
- Khảo sát kỹ thuật
- Thiết kế và chuẩn bị mặt bằng
- Lắp đặt thang máy
- Kiểm định, vận hành thử và bàn giao
Với dự án nhỏ, lắp đặt có thể nhanh hơn. Dự án lớn hoặc yêu cầu kỹ thuật cao sẽ tốn thời gian hơn do các bước kiểm tra và thử nghiệm nghiêm ngặt. Chuẩn bị đầy đủ giấy tờ pháp lý và mặt bằng sẽ giúp hạn chế trì hoãn.
Có nên chọn thang máy 1000kg không phòng máy để tiết kiệm diện tích?
Thang máy không phòng máy là giải pháp tối ưu diện tích xây dựng, phù hợp cho nhà phố, biệt thự hoặc văn phòng nhỏ. Ưu điểm:
- Tiết kiệm không gian lắp đặt
- Không cần xây phòng máy riêng
- Vận hành êm, công nghệ hiện đại
Tuy nhiên, hệ thống này phức tạp hơn trong bảo trì và sửa chữa, nên cần tư vấn kỹ thuật từ chuyên gia. Chọn đúng thiết kế sẽ giúp tối ưu chi phí và đảm bảo an toàn lâu dài.
Xem thêm: