Thang máy tải ô tô

Thang máy tải ô tô (Car Elevator) là giải pháp vận chuyển xe hơi thông minh giữa các tầng trong showroom, gara, chung cư hoặc biệt thự có diện tích hạn chế. Khác với thang máy tải khách thông thường, thang máy nâng xe hơi đòi hỏi những tiêu chuẩn cực kỳ khắt khe về tải trọng, kích thước cabin và hệ thống an toàn.

Với hơn 15 năm kinh nghiệm và hệ thống nhà máy sản xuất hiện đại tại An Phú Đông 10 (TP.HCM), Thang Máy Gia Định tự hào mang đến các giải pháp thang máy tải ô tô tải trọng từ 2000kg – 5000kg, vận hành êm ái và bền bỉ.

Thang máy tải ô tô là gì? Giải pháp tối ưu cho không gian hiện đại

Thang máy tải ô tô là dòng thang máy chuyên dụng có tải trọng lớn (thường từ 2000kg đến 5000kg) và kích thước cabin đặc thù để chứa vừa các dòng xe từ Sedan 4 chỗ đến SUV 7 chỗ.

Không chỉ đơn thuần là thiết bị vận chuyển, lắp đặt thang máy ô tô còn mang lại nhiều giá trị:

  • Tối ưu diện tích: Thay thế hệ thống đường ram dốc tốn diện tích bằng hệ thống thang nâng thẳng đứng.
  • Tiện nghi & Đẳng cấp: Đặc biệt phù hợp cho các căn biệt thự sang trọng, nơi chủ nhân muốn đưa “xế cưng” lên gara riêng tại tầng hầm hoặc tầng lầu.
  • Hiệu quả kinh doanh: Giúp các showroom ô tô trưng bày được nhiều mẫu xe hơn trên các tầng cao.

Nếu bạn đang tìm kiếm giải pháp vận chuyển hàng hóa nặng hơn, có thể tham khảo thêm dòng thang máy tải hàng chuyên dụng của chúng tôi.

Thang máy tải ô tô được thiết kế với mục đích chính là nâng, hạ ô tô giữa các tầng
Thang máy tải ô tô được thiết kế với mục đích chính là nâng, hạ ô tô giữa các tầng

Phân loại thang máy tải ô tô phổ biến hiện nay

Dựa trên kinh nghiệm thi công thực tế, Thang Máy Gia Định phân loại thang máy ô tô thành 2 dòng chính dựa trên nguyên lý vận hành:

Thang máy tải ô tô sử dụng máy kéo (Traction Elevator)

Đây là dòng phổ biến nhất hiện nay, sử dụng motor kéo và đối trọng.

  • Ưu điểm: Tốc độ nhanh (0.3 – 1m/s), hành trình nâng không giới hạn tầng.
  • Phù hợp: Các tòa nhà cao tầng, chung cư, showroom lớn.

Thang máy tải ô tô thủy lực (Hydraulic Elevator)

Thang máy thủy lực cực kỳ được ưa chuộng cho mục đích tải ô tô ở các công trình thấp tầng (hầm + 2-3 tầng lầu).

  • Ưu điểm: Khả năng chịu tải cực tốt, vận hành êm ái, độ an toàn cao và đặc biệt không yêu cầu hố PIT quá sâu.
  • Nhược điểm: Tốc độ chậm hơn so với cáp kéo.

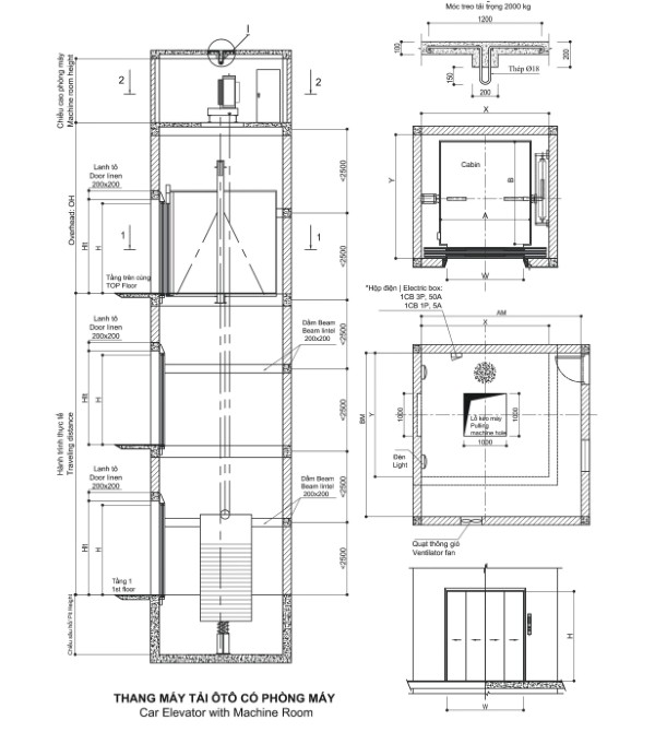
Thông số kỹ thuật và Kích thước thang máy tải ô tô tiêu chuẩn

Kích thước thang máy là yếu tố sống còn khi thiết kế thang máy ô tô. Nếu kích thước quá nhỏ, xe sẽ khó ra vào; nếu quá lớn sẽ gây lãng phí diện tích xây dựng.

Dưới đây là bảng thông số chuẩn cho các dòng xe phổ biến (Sedan, SUV, Bán tải):

Tải trọng (kg) Kích thước cabin (R x S) Kích thước hố thang (R x S) Tốc độ (m/s)
2000kg 2400 x 5000 mm 3200 x 5400 mm 0.3 – 0.5
3000kg 2600 x 5500 mm 3400 x 5900 mm 0.3 – 0.5
5000kg 3000 x 6000 mm 3800 x 6400 mm 0.5 – 0.6

Lưu ý kỹ thuật:

  • Chiều cao tầng trên cùng (OH thang máy): Thường từ 4200mm – 4500mm.
  • Độ sâu hố PIT: Từ 1200mm – 1500mm tùy dòng máy.
  • Thiết kế cửa: Thường là cửa mở trung tâm (CO) hoặc cửa mở lùa 4 cánh, 6 cánh để tối ưu chiều rộng lối vào.
Thông số kỹ thuật và kích thước thang nâng ô tô
Thông số kỹ thuật và kích thước thang nâng ô tô

Thông số kỹ thuật và Kích thước hố thang máy tải ô tô chuẩn

Việc xác định kích thước hố thang máy ngay từ giai đoạn thiết kế bản vẽ xây dựng là vô cùng quan trọng để tránh việc cải tạo tốn kém về sau.

Dưới đây là bảng thông số tiêu chuẩn tại Thang Máy Gia Định:

Thông số Dòng xe 4 chỗ (Sedan) Dòng xe 7 chỗ (SUV/Bán tải)
Tải trọng 2000kg – 2500kg 3000kg – 5000kg
Kích thước hố thang (WxD) 3000mm x 5600mm 3500mm x 6500mm
Kích thước Cabin (WxD) 2400mm x 5200mm 2800mm x 6200mm
Chiều cao OH 4200mm – 4500mm 4500mm
Độ sâu hố PIT 1200mm – 1500mm 1500mm
Tốc độ 15m/phút – 45m/phút 15m/phút – 30m/phút

Lưu ý: Kích thước thực tế có thể thay đổi tùy thuộc vào diện tích mặt bằng và nhu cầu cụ thể của chủ đầu tư. Liên hệ ngay bộ phận tư vấn thiết kế thang máy để nhận bản vẽ CAD chi tiết.

Cấu tạo đặc biệt của thang máy nâng xe hơi Gia Định

Khác với các dòng thang giá rẻ trên thị trường, Thang Máy Gia Định tập trung vào độ bền linh kiện:

  • Hệ thống máy kéo: Sử dụng các dòng máy Fuji (Nhật Bản/Hàn Quốc) hoặc Mitsubishi nhập khẩu chính hãng, đảm bảo lực kéo mạnh mẽ và bền bỉ.
Động cơ của thang máy tải ô tô
Động cơ của thang máy tải ô tô
  • Sàn cabin: Được gia cố bằng thép hình cường lực, bề mặt phủ tôn nhám chống trượt, đảm bảo không bị biến dạng dưới tải trọng lớn của bánh xe.
  • Hệ thống điều khiển: Sử dụng biến tần VVVF (Variable Voltage Variable Frequency) giúp thang khởi động và dừng tầng cực kỳ êm ái, không gây rung lắc cho xe bên trong.
Hệ thống điều khiển trung tâm của thang máy tải ô tô
Hệ thống điều khiển trung tâm của thang máy tải ô tô
  • Hệ thống định vị xe: Sử dụng cảm biến hồng ngoại đa điểm giúp người lái xác định vị trí xe đã nằm an toàn trong cabin hay chưa trước khi thang vận hành.
Hệ thống nút bấm, bàn điều khiển trong thang máy tải ô tô
Hệ thống nút bấm, bàn điều khiển trong thang máy tải ô tô
  • Cửa tầng cửa cabin: Cửa tầng và cửa cabin đóng vai trò quan trọng trong việc đảm bảo an toàn và thuận tiện cho quá trình vận hành. Các loại cửa này thường được chế tạo từ kính cường lực hoặc vật liệu chịu lực cao, có khả năng đóng mở linh hoạt, nhanh chóng và kín khít để tránh tụ bụi, côn trùng hay các tác nhân gây ô nhiễm.
Cửa tầng và cửa cabin đóng của thang máy tải ô tô
Cửa tầng và cửa cabin đóng của thang máy tải ô tô
  • Hệ thống an toàn trong thang tải ô tô: Hệ thống an toàn là thành phần không thể thiếu trong các thiết bị thang máy tải ô tô nhằm bảo vệ mọi hoạt động vận hành và an toàn của người, phương tiện trong quá trình sử dụng. Các tiêu chuẩn an toàn ngày càng cao, bao gồm nhiều tính năng tự động theo dõi, cảnh báo và ngăn chặn các sự cố do lỗi kỹ thuật hoặc lỗi con người. Các hệ thống an toàn phổ biến bao gồm cảm biến phát hiện quá tải, cảm biến an toàn tại các điểm dừng, bộ giới hạn hành trình, hệ thống phanh khẩn cấp, và các bộ cảm biến phát hiện sự cố về điện hoặc cơ khí. Điểm đặc biệt của hệ thống này là khả năng tự động kích hoạt các chế độ dừng khẩn cấp, giảm tốc hoặc giữ yên vị trí ngay khi phát hiện sự cố.
Hệ thống an toàn trong thang máy tải ô tô
Hệ thống an toàn trong thang máy tải ô tô

Báo giá thang máy tải ô tô mới nhất 2026

Chi phí lắp đặt thang máy tải ô tô phụ thuộc vào: Tải trọng, số tầng phục vụ, xuất xứ linh kiện và vật liệu cabin.

  • Dòng thang máy liên doanh (Máy kéo Fuji/Mitsubishi – Cabin sản xuất tại Việt Nam): Giá dao động từ 500.000.000 VNĐ – 850.000.000 VNĐ. Đây là lựa chọn tối ưu về chi phí và chất lượng.
  • Dòng thang máy nhập khẩu nguyên chiếc: Giá từ 1.200.000.000 VNĐ trở lên.

Để nhận được bảng dự toán chi tiết và bản vẽ thiết kế sơ bộ cho công trình của bạn, hãy liên hệ Hotline: 091 114 5522.

Báo giá thang máy tải ô tô mới nhất 2026
Báo giá thang máy tải ô tô mới nhất 2026

Các tính năng an toàn bắt buộc tại Thang Máy Gia Định

Để đảm bảo an toàn tuyệt đối cho người và tài sản, mỗi chiếc thang máy ô tô của chúng tôi đều tích hợp:

  • Hệ thống định vị xe hơi: Sử dụng cảm biến hồng ngoại để xác định xe đã nằm đúng vị trí trung tâm cabin hay chưa trước khi thang chuyển động.
  • Cứu hộ tự động khi mất điện (ARD): Tự động đưa thang về tầng gần nhất và mở cửa nếu xảy ra sự cố điện lưới.
  • Mành hồng ngoại cửa thang: Bảo vệ an toàn, thang không đóng cửa khi có vật cản.
  • Bộ khống chế vượt tốc (Governor): Ngăn chặn mọi tình huống thang rơi tự do.
Ưu - nhược điểm của thang máy tải ô tô
Ưu – nhược điểm của thang máy tải ô tô

Các loại thang máy ô tô nhập khẩu chính hãng giá tốt

Trên thị trường hiện nay, thang máy tải ô tô nhập khẩu chính hãng được Thang máy Gia Định cung cấp đảm bảo chất lượng cao, vận hành ổn định và an toàn tuyệt đối. Các sản phẩm được thiết kế theo tiêu chuẩn quốc tế, phù hợp với nhiều loại công trình từ gara nhỏ, trung tâm dịch vụ đến các bãi đỗ xe cao tầng.

Thang máy tải ô tô từ hãng Mitsubishi

Thang máy tải ô tô Mitsubishi là giải pháp tối ưu cho các dự án yêu cầu tiêu chuẩn an toàn nghiêm ngặt.

  • Thông số kỹ thuật:
    • Tải trọng: 2.500 – 3.500 kg
    • Tốc độ: 30 – 45 m/phút
    • Số điểm dừng: 2 – 10
    • Điều khiển: Đơn (Simplex)
    • Động cơ: Mitsubishi Nhật Bản
    • Hệ điều khiển: Biến tần AC-VVVF FUJI (Nhật Bản)
    • Cabin: Inox sọc nhuyễn 304
    • Cửa cabin: Loại cửa tự động mở
    • Thiết bị: Nhập khẩu đồng bộ
  • Ưu điểm nổi bật:
    • Công nghệ tiên tiến, độ bền cao, khả năng tải trọng từ 2,5 – 5 tấn, phù hợp với sedan, SUV, xe bán tải và xe tải nhỏ.
    • Thiết kế tối giản, linh hoạt, phù hợp môi trường công nghiệp, gara cao cấp hoặc trung tâm dịch vụ.
    • Tiết kiệm năng lượng nhờ hệ thống biến tần AC-VVVF, vận hành êm ái, không rung lắc.
  • Chế độ bảo hành và hậu mãi: Bảo hành dài hạn, hỗ trợ lắp đặt chuyên nghiệp và bảo trì định kỳ.

Thang máy tải ô tô Mitsubishi tại Thang máy Gia Định là lựa chọn đầu tư lâu dài, giảm thiểu chi phí sửa chữa và bảo trì.

Thang máy tải ô tô hãng Mitsubishi
Thang máy tải ô tô hãng Mitsubishi

Thang máy tải ô tô nhập khẩu từ hãng Netis

Thang máy tải ô tô Netis nhập khẩu từ châu Âu, đáp ứng các tiêu chuẩn CE, ISO và TCVN, nổi bật với độ bền và hiệu suất vận hành cao.

  • Thông số kỹ thuật:
    • Tải trọng: 750 – 6.000 kg
    • Tốc độ: 30 – 60 m/phút
    • Số điểm dừng: 2 – 10
    • Điều khiển: Đơn (Simplex)
    • Động cơ: Nhập khẩu từ châu Âu
    • Hệ điều khiển: Biến tần AC
    • Cabin: Inox hoặc thép không gỉ
    • Cửa cabin: Loại cửa tự động mở
    • Thiết bị: Nhập khẩu đồng bộ
  • Ưu điểm:
    • Khả năng chịu lực tốt, vận hành êm ái, an toàn tuyệt đối.
    • Tích hợp nhiều tính năng tự động hóa và hệ thống kiểm soát thông minh.
    • Tiêu thụ năng lượng thấp, phù hợp cho các bãi đỗ xe, trung tâm phân phối xe hoặc dự án xây dựng cao cấp.
  • Dịch vụ đi kèm: Lắp đặt chuyên nghiệp, bảo hành toàn diện, đảm bảo tuổi thọ lâu dài.

Thang máy tải ô tô Netis tại Thang máy Gia Định mang lại hiệu suất cao và vận hành ổn định cho mọi công trình.

Thang máy tải ô tô hãng Netis
Thang máy tải ô tô hãng Netis

Thang máy tải ô tô Fuji

Thang máy tải ô tô Fuji là dòng sản phẩm Nhật Bản nổi bật với độ chính xác cao, an toàn tối ưu và khả năng vận hành ổn định.

  • Thông số kỹ thuật:
    • Tải trọng: 2.000 – 5.000 kg
    • Tốc độ: 12 – 21 m/phút
    • Số điểm dừng: 2 – 6
    • Điều khiển: Đơn (Simplex)
    • Động cơ: Mitsubishi hoặc Fuji Nhật Bản
    • Hệ điều khiển: Biến tần AC
    • Cabin: Inox hoặc thép không gỉ
    • Cửa cabin: Loại cửa tự động mở
    • Thiết bị: Nhập khẩu đồng bộ
  • Đặc điểm nổi bật:
    • Thiết kế chắc chắn, phù hợp với nhiều loại xe và công trình từ gara gia đình đến trung tâm thương mại.
    • Tích hợp hệ thống cảnh báo sự cố, kiểm soát từ xa, dễ dàng vận hành và bảo trì.
    • Tuổi thọ cao, giảm chi phí vận hành dài hạn.
  • Dịch vụ và giá thành: Giá thành cạnh tranh cho các dự án cao cấp, kèm theo chế độ bảo hành toàn diện.

Thang máy tải ô tô Fuji tại Thang máy Gia Định là lựa chọn tối ưu cho những công trình cần giải pháp nâng hạ xe hiện đại, an toàn và bền bỉ.

Thang máy tải ô tô từ hãng Fuji
Thang máy tải ô tô từ hãng Fuji

Những lưu ý khi thi công thang máy ô tô

Với kinh nghiệm thi công hàng trăm dự án, chúng tôi khuyến cáo chủ đầu tư 3 điểm sau:

  • Thiết kế 2 cửa đối diện (Walk-through): Nếu diện tích cho phép, hãy thiết kế cabin có 2 cửa đối diện. Xe đi vào từ một cửa và đi ra từ cửa kia, giúp lái xe không phải lùi xe trong không gian hẹp, giảm thiểu rủi ro va chạm.
  • Nguồn điện sử dụng: Thang máy tải ô tô bắt buộc phải sử dụng điện 3 pha (380V) để đảm bảo công suất hoạt động. Chủ đầu tư cần chuẩn bị hạ tầng điện này ngay từ giai đoạn đổ móng.
  • Hệ thống cứu hộ tự động (ARD): Đây là trang bị không thể thiếu. Khi mất điện đột ngột, ARD sẽ đưa cabin về tầng gần nhất và mở cửa để người lái và xe thoát ra ngoài an toàn.

Tại sao Thang Máy Gia Định là đối tác tin cậy của bạn?

Tại Thang Máy Gia Định, chúng tôi không chỉ dừng lại ở việc cung cấp thiết bị, mà mục tiêu cốt lõi là mang đến một giải pháp vận chuyển an toàn, bền bỉ và tối ưu công năng. Niềm tin của khách hàng được xây dựng dựa trên năng lực sản xuất thực tế tại nhà máy An Phú Đông 10 – nơi trang bị hệ thống máy móc CNC hiện đại, đảm bảo độ chính xác cơ khí tuyệt đối cho mọi dòng thang máy tải ô tô. Sự kết hợp giữa hạ tầng kỹ thuật vững chắc và đội ngũ 100% kỹ sư có chứng chỉ chuyên môn, am hiểu tường tận tiêu chuẩn an toàn Việt Nam đã giúp chúng tôi khẳng định vị thế hàng đầu trong lĩnh vực tư vấn thiết kế, lắp đặt thang máy và bảo trì chuyên nghiệp.

Để duy trì giá trị bền vững cho mọi công trình, chúng tôi thiết lập những tiêu chuẩn dịch vụ khắt khe mà ít đơn vị nào trên thị trường có thể đáp ứng đồng bộ:

  • Hệ sinh thái sản phẩm chính hãng: Chúng tôi nhập khẩu và phân phối linh kiện từ các thương hiệu danh tiếng toàn cầu như Mitsubishi, Fuji, Netis, giúp khách hàng có sự lựa chọn đa dạng từ dòng thang liên doanh đến nhập khẩu nguyên chiếc.
  • Chế độ bảo trì “Vàng”: Cam kết thực hiện kiểm tra định kỳ hàng tháng để đảm bảo thang luôn vận hành trơn tru. Đặc biệt, chính sách thay thế vật tư dưới 100.000 VNĐ miễn phí hoàn toàn giúp khách hàng gạt bỏ nỗi lo về chi phí vận hành nhỏ lẻ.
  • Dịch vụ hậu mãi chuyên sâu: Với kinh nghiệm thi công hàng loạt dự án từ thang máy gia đình đến hệ thống gara ô tô phức tạp, chúng tôi cam kết dịch vụ bảo trì sửa chữa thang máy nhanh chóng, tận tâm, có mặt xử lý sự cố kịp thời để không làm gián đoạn hoạt động kinh doanh của khách hàng.
  • Tối ưu hóa hiệu quả đầu tư: Các giải pháp của Gia Định luôn chú trọng vào ba yếu tố: An toàn tuyệt đối – Độ bền vượt thời gian – Tiết kiệm năng lượng, góp phần nâng tầm thương hiệu và giá trị cho các trung tâm dịch vụ ô tô hay biệt thự cao cấp.
Thang máy Gia Định – Đơn vị chuyên thi công lắp đặt thang máy tải ô tô uy tín
Thang máy Gia Định – Đơn vị chuyên thi công lắp đặt thang máy tải ô tô uy tín

Việc lựa chọn một đơn vị uy tín như Thang Máy Gia Định chính là lời giải cho bài toán an toàn và tiến độ. Chúng tôi cam kết đồng hành cùng chủ đầu tư từ khâu khảo sát mặt bằng, lên bản vẽ CAD chi tiết cho đến khi bàn giao vận hành và kiểm định. Đầu tư vào thang máy tải ô tô tại Gia Định không chỉ là trang bị một thiết bị nâng hạ, mà là đầu tư cho sự hiện đại, chuyên nghiệp và sự an tâm tuyệt đối trong suốt quá trình sử dụng. Hy vọng với năng lực thực chiến và tâm thế phục vụ tận tụy, chúng tôi sẽ trở thành mảnh ghép hoàn hảo cho dự án sắp tới của bạn.

Thang máy tải ô tô là khoản đầu tư xứng đáng cho sự tiện nghi và giá trị bền vững của công trình. Tuy nhiên, đây là thiết bị kỹ thuật phức tạp, đòi hỏi đơn vị thi công phải có năng lực thực sự.

Nếu bạn đang có nhu cầu tư vấn hoặc khảo sát mặt bằng thực tế, hãy liên hệ ngay với Thang Máy Gia Định qua:

  • Hotline: 091 114 5522
  • Địa chỉ: 228B đường Bạch Đằng, Phường Bình Thạnh, TP. Hồ Chí Minh
  • Website: thangmaygiadinh.net.vn

Câu hỏi thường gặp về thang máy tải ô tô

Thang máy tải ô tô có tốn nhiều điện không?

Với công nghệ biến tần VVVF hiện nay, thang chỉ tiêu thụ điện năng khi vận hành. Khi ở trạng thái chờ, hệ thống sẽ tự động ngắt các thiết bị không cần thiết, giúp tiết kiệm đến 30% điện năng.

Thang máy tải ô tô có tốn nhiều điện không?
Thang máy tải ô tô có tốn nhiều điện không?

Thời gian thi công thang máy ô tô là bao lâu?

Tại Thang Máy Gia Định, quy trình từ lúc ký hợp đồng, sản xuất đến lắp đặt hoàn thiện thường kéo dài từ 45 – 60 ngày.

Có cần lắp đặt mâm xoay ô tô đi kèm thang máy không?

Nếu diện tích gara của bạn cực kỳ hẹp, không thể quay đầu xe, mâm xoay 360 độ là giải pháp kết hợp tuyệt vời với thang máy tải ô tô.