Trong bối cảnh công nghiệp hóa hiện đại, việc tối ưu hóa quy trình vận chuyển hàng hóa trong kho bãi, nhà xưởng là yếu tố then chốt để nâng cao hiệu quả kinh doanh. Việc nắm rõ kích thước thang máy chở hàng không chỉ giúp chủ đầu tư tối ưu diện tích xây dựng mà còn đảm bảo an toàn vận hành theo tiêu chuẩn kỹ thuật.
Dựa trên kinh nghiệm thực tế thi công hơn 1.000 dự án tại các khu công nghiệp (KCN) trọng điểm như Bình Dương, Long An và TP.HCM, Thang Máy Gia Định xin gửi đến quý khách hàng bảng tra cứu thông số kỹ thuật chi tiết từ 500kg đến 5000kg cùng những lưu ý “vàng” khi thiết kế hố thang.
Tầm quan trọng của việc lựa chọn đúng kích thước thang máy chở hàng
Trong kỹ thuật xây dựng công nghiệp, việc tính toán kích thước thang máy chở hàng không đơn thuần là dành ra một khoảng trống trong lòng tòa nhà. Đó là một bài toán tổng hòa giữa năng lực vận tải, an toàn pháp lý và tối ưu hóa dòng tiền đầu tư.
Tại Thang Máy Gia Định, chúng tôi luôn yêu cầu đội ngũ kỹ thuật tuân thủ nghiêm ngặt TCVN 6395:2008 (Tiêu chuẩn Quốc gia về cấu tạo và lắp đặt thang máy điện). Việc lựa chọn đúng thông số ngay từ khâu bản vẽ sẽ mang lại 3 lợi ích cốt lõi:
- Tối ưu hóa chi phí và diện tích “vàng”: Một sai lầm phổ biến là xây dựng hố thang quá lớn so với nhu cầu thực tế, gây lãng phí diện tích sàn sản xuất. Ngược lại, hố thang quá nhỏ sẽ khiến việc lắp đặt cabin trở nên bế tắc, buộc phải phá dỡ cải tạo – một chi phí cực kỳ đắt đỏ và ảnh hưởng đến kết cấu công trình.
- Đảm bảo hiệu suất chuỗi cung ứng: Kích thước cabin phải được “đo ni đóng giày” dựa trên đặc thù hàng hóa. Ví dụ: Nếu doanh nghiệp sử dụng xe nâng (Forklift) hoặc Pallet tiêu chuẩn, chiều rộng cửa và chiều sâu cabin phải dư ra ít nhất 15-20cm để thao tác ra vào linh hoạt, tránh va đập gây hư hỏng vách thang.
- An toàn kỹ thuật và hành lang bảo trì: Các thông số như chiều sâu hố PIT và chiều cao OH (Overhead) không chỉ để máy vận hành mà còn là “khoảng cách an toàn” cho kỹ thuật viên khi bảo trì hoặc trong tình huống cứu hộ khẩn cấp. Một hố PIT không đạt chuẩn về độ sâu sẽ không đủ không gian lắp đặt giảm chấn, trực tiếp đe dọa an toàn thiết bị khi vận hành quá tải.
Góc nhìn chuyên gia: “Hơn 15 năm thi công tại các KCN lớn, chúng tôi nhận thấy 70% sự cố hỏng hóc cửa thang máy tải hàng đến từ việc lựa chọn kích thước cửa quá sát với kích thước Pallet, dẫn đến va quệt thường xuyên trong quá trình bốc dỡ.”

Kích thước thang máy chở hàng 500kg – 1000kg (Cho kho xưởng nhỏ và vừa)
Dòng thang có tải trọng từ 500kg đến 1000kg thường được ứng dụng rộng rãi trong các xưởng may mặc, thực phẩm, linh kiện điện tử hoặc các showroom ô tô, xe máy.
Thông số kỹ thuật thang máy chở hàng 500kg
Đây là dòng thang phổ biến cho các đơn vị vận chuyển hàng nhẹ, đóng thùng carton.
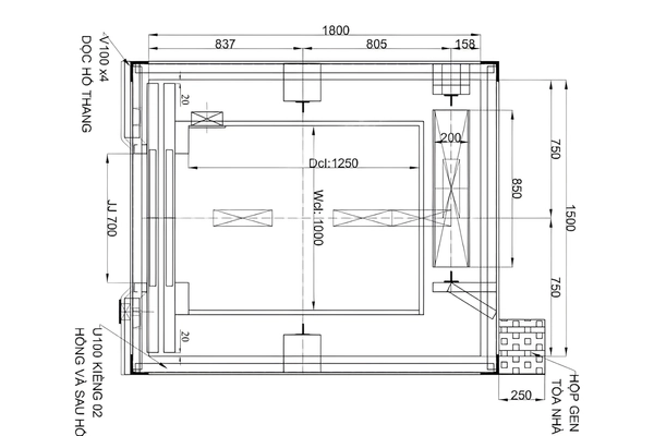
- Kích thước hố thang (Thông thủy): 1700mm (Rộng) x 1700mm (Sâu).
- Kích thước cabin: 1200mm (Rộng) x 1000mm (Sâu) x 2100mm (Cao).
- Kích thước cửa thang: 900mm (Rộng) x 2100mm (Cao).
- Chiều sâu hố PIT tối thiểu: 1400mm.
- Chiều cao OH: 4200mm.
Thông số kỹ thuật thang máy chở hàng 1000kg
Thang 1 tấn bắt đầu cho phép vận chuyển các khối hàng trên pallet nhỏ.
- Kích thước hố thang: 2100mm (Rộng) x 2100mm (Sâu).
- Kích thước cabin: 1500mm (Rộng) x 1400mm (Sâu) x 2100mm (Cao).
- Kiểu cửa: Cửa mở tự động 2 cánh hoặc 4 cánh mở tim (CO).
- Chiều sâu hố PIT: 1500mm.

Kích thước thang máy tải hàng trọng tải lớn (2000kg – 5000kg)
Đối với các nhà máy sản xuất thép, máy móc nặng hoặc bãi đỗ xe thông minh sử dụng thang máy tải ô tô, thông số kích thước yêu cầu sự chính xác tuyệt đối và kết cấu hố thang chịu lực cực cao.
Bảng tra cứu kích thước tiêu chuẩn (2 tấn – 5 tấn):
| Tải trọng (kg) | Kích thước hố thang (R x S) | Kích thước Cabin (R x S) | Chiều rộng cửa (mm) | Hố PIT (mm) | OH (mm) |
| 2000kg | 2800 x 2800 | 1900 x 2000 | 1600 | 1500 | 4500 |
| 3000kg | 3200 x 3500 | 2200 x 2600 | 1800 | 1600 | 4800 |
| 5000kg | 3800 x 4500 | 2600 x 3500 | 2200 | 1800 | 5000 |
Lưu ý: Kích thước trên có thể thay đổi tùy thuộc vào việc thang có sử dụng đối trọng hông hay đối trọng sau, cũng như loại động cơ có phòng máy hay không phòng máy.
Các thông số kỹ thuật quan trọng không thể bỏ qua (PIT, OH, Cửa thang)
Trong quá trình tư vấn thiết kế và giám sát thi công, đội ngũ kỹ sư của Thang Máy Gia Định luôn đặc biệt lưu ý khách hàng về “kiềng ba chân” kỹ thuật: Hố PIT, OH và Cửa thang. Chỉ cần sai lệch vài centimet ở các thông số này, việc lắp đặt thiết bị sẽ gặp trở ngại lớn, thậm chí phải đập đi xây lại toàn bộ hố thang.
Chiều sâu hố PIT thang tải hàng
Hố PIT là phần không gian nằm dưới mặt sàn tầng thấp nhất. Với đặc thù tải trọng cực lớn của thang máy chở hàng, hố PIT không chỉ là nơi đặt giảm chấn mà còn phải chịu áp lực cực lớn từ trọng lượng cabin và hàng hóa.
- Yêu cầu kỹ thuật: Đáy hố PIT phải được đổ bê tông cốt thép dày tối thiểu 200mm – 300mm để đảm bảo khả năng chịu lực va đập (tải trọng tĩnh và tải trọng động).
- Lưu ý thực tế: Nếu nhà xưởng sử dụng xe nâng (Forklift) đi trực tiếp vào trong cabin, sàn cabin và hố PIT phải được thiết kế gia cường hệ thống dầm chịu lực đặc biệt. Ngoài ra, việc chống thấm hố PIT là bắt buộc để bảo vệ các thiết bị điện và cáp tải khỏi ẩm mốc, chập cháy.
Chiều cao Overhead (OH)
OH là khoảng cách từ mặt sàn tầng trên cùng đến đáy sàn phòng máy (hoặc điểm cao nhất của hố thang đối với dòng không phòng máy). Thông số này quyết định tốc độ và độ bền của motor.
- Tiêu chuẩn: Đối với thang máy tải hàng trọng tải lớn (từ 2000kg trở lên), chiều cao OH thường dao động từ 4500mm đến 5500mm.
- Tại sao OH lại quan trọng? Nếu OH quá thấp, cabin khi di chuyển lên tầng trên cùng sẽ không có đủ “khoảng đệm” an toàn khi xảy ra sự cố vượt tốc. Đồng thời, OH đủ cao cũng tạo không gian làm việc an toàn cho kỹ thuật viên khi đứng trên nóc cabin để bảo trì, sửa chữa thang máy.
Kích thước cửa thang máy chở hàng
Sai lầm phổ biến nhất của các đơn vị thiết kế là chỉ chú trọng vào diện tích cabin mà quên mất kích thước cửa. Cửa thang chính là “cửa ngõ” quyết định loại phương tiện bốc dỡ nào có thể tiếp cận thang máy.
- Xe nâng tay (Pallet Jack): Cửa rộng 1000mm – 1200mm là kích thước tối thiểu để vận hành thoải mái.
- Xe nâng điện/Xe nâng máy (Forklift): Yêu cầu cửa thang phải đạt độ mở thông thủy từ 1800mm trở lên.
- Kiểu mở cửa tối ưu: Thay vì kiểu mở tim (CO) thông thường, chúng tôi thường tư vấn khách hàng sử dụng cửa mở 2S hoặc 3S (cánh mở về một phía). Giải pháp này giúp tối ưu hóa tối đa chiều rộng của cửa trong một diện tích hố thang hạn chế, giúp xe nâng ra vào dễ dàng mà không bị va quệt vào khung cửa.
Kinh nghiệm từ hiện trường: “Tại một dự án kho vận ở Bình Dương, chủ đầu tư đã phải thay đổi toàn bộ phương án xe nâng từ xe máy sang xe nâng tay vì ban đầu thiết kế hố thang quá hẹp, không thể mở rộng cửa thang lên mức 1800mm. Điều này làm giảm 40% hiệu suất bốc dỡ hàng hóa của kho.” — Kỹ sư trưởng Thang Máy Gia Định chia sẻ.

Phân biệt giữa thang máy chở hàng và thang tời hàng
Trong quá trình tư vấn, Thang Máy Gia Định nhận thấy rất nhiều chủ đầu tư nhầm lẫn giữa hai khái niệm này. Việc lựa chọn sai không chỉ ảnh hưởng đến công năng sử dụng mà còn liên quan trực tiếp đến tính pháp lý khi kiểm định an toàn và cấp phép vận hành nhà xưởng.
Dưới đây là bảng so sánh chi tiết giúp bạn có cái nhìn chuẩn xác nhất:
| Tiêu chí | Thang máy chở hàng (Freight Elevator) | Thang tời hàng (Simple Hoist/Dumbwaiter) |
| Khả năng chở người | Được phép chở người đi kèm hàng hóa. | Tuyệt đối KHÔNG được chở người. |
| Cấu tạo Cabin | Cabin kín hoàn toàn, vách inox hoặc thép sơn tĩnh điện cứng cáp. | Thường là sàn phẳng hoặc khung lưới thép sơ sài. |
| Hệ thống an toàn | Đầy đủ: Thắng cơ (Govenor), cảm biến cửa (Photocell), Switch hành trình. | Rất hạn chế, thường chỉ có dừng tầng cơ bản. |
| Hệ điều hành | PLC Mitsubishi hoặc vi xử lý thông minh, biến tần (VVVF) giúp khởi động/dừng êm ái. | Khởi động trực tiếp bằng khởi động từ, dừng đột ngột dễ gây đổ vỡ hàng hóa. |
| Kiểm định an toàn | Bắt buộc kiểm định định kỳ bởi cơ quan chức năng. | Khó hoặc không đủ tiêu chuẩn để cấp phép kiểm định an toàn. |
Thang máy chở hàng (Freight Elevator) – Giải pháp chuyên nghiệp
Đây là dòng thang máy đạt chuẩn kỹ thuật cao, được trang bị đầy đủ các tính năng an toàn như một thang máy tải khách nhưng có khung cơ khí gia cường mạnh mẽ hơn.
- Ưu điểm: Vận hành bền bỉ 24/7, tốc độ cao, độ dừng tầng chính xác tuyệt đối (giúp xe đẩy vào không bị vấp).
- Ứng dụng: Phù hợp cho các nhà máy sản xuất, kho vận có nhu cầu luân chuyển nhân sự cùng hàng hóa giữa các tầng.
Thang tời hàng (Simple Hoist) – Giải pháp tiết kiệm rủi ro
Thang tời thực chất là một bộ tời điện kéo sàn nâng đơn giản. Mặc dù có ưu điểm là kích thước thang tời hàng cực kỳ linh hoạt, không yêu cầu hố PIT quá sâu, nhưng độ an toàn lại là một dấu hỏi lớn.
- Rủi ro: Dễ xảy ra sự cố đứt cáp hoặc rơi tự do do thiếu hệ thống thắng cơ chuyên dụng.
- Ứng dụng: Chỉ nên dùng cho việc vận tải hàng hóa nhẹ, thực phẩm (như thang máy tải thực phẩm) ở quy mô nhỏ và tuyệt đối ngăn chặn người tiếp cận khu vực vận hành.
Lời khuyên từ chuyên gia Gia Định: “Tại Thang Máy Gia Định, chúng tôi luôn hướng khách hàng đến việc lắp đặt hệ thống thang máy tải hàng chuẩn hóa. Khoản đầu tư ban đầu có thể cao hơn thang tời, nhưng đó là sự bảo đảm cho tính mạng con người và sự ổn định lâu dài của chuỗi sản xuất. Một sự cố thang máy nhỏ cũng có thể khiến nhà máy phải tạm dừng hoạt động, gây thiệt hại kinh tế gấp nhiều lần chi phí lắp đặt thang máy ban đầu.”
Kinh nghiệm thực tế từ chuyên gia Gia Định
Với hơn 15 năm kinh nghiệm và thực tế thi công hơn 1.000 dự án thang máy tải hàng tại các “thủ phủ công nghiệp” như KCN VSIP, KCN Sóng Thần (Bình Dương), KCN Tân Tạo, Lê Minh Xuân (TP.HCM), đội ngũ kỹ sư của Thang Máy Gia Định đã đúc kết được những bài học xương máu.
Dưới đây là 3 sai lầm phổ biến nhất mà các chủ đầu tư thường gặp phải, gây lãng phí hàng trăm triệu đồng chi phí sửa chữa và làm gián đoạn sản xuất:
Quên tính toán “độ rơ” và không gian thao tác cho xe nâng
Nhiều đơn vị thiết kế chỉ tính toán cabin vừa khít với kích thước Pallet mà quên mất không gian xoay xở (maneuverability) của xe nâng.
Hậu quả: Khi xe nâng đưa hàng vào, chỉ cần một sai lệch nhỏ sẽ dẫn đến va đập trực tiếp vào vách cabin và cửa thang. Tại nhiều kho vận, chúng tôi ghi nhận tình trạng vách cabin bị móp méo, hệ thống cảm biến cửa bị hỏng liên tục chỉ sau 6 tháng vận hành do thiếu 15-20cm “độ rơ” cần thiết.
Coi nhẹ việc chống thấm hố PIT ngay từ khâu xây thô
Đặc biệt tại các vùng đất trũng hoặc có mạch nước ngầm phức tạp như Long An, Nhà Bè, hố PIT thang máy rất dễ bị thẩm thấu nước.
Hậu quả: Hố PIT bị ngập nước không chỉ làm rỉ sét lò xo giảm chấn, hỏng cáp tải mà còn gây chập cháy hệ thống dây điện tín hiệu dưới đáy thang. Việc xử lý chống thấm sau khi đã lắp đặt thang máy thường tốn kém gấp 5-10 lần so với việc thực hiện đúng quy trình ngay từ đầu.
Tư duy “vừa đủ” – Thiếu dự phòng tải trọng tương lai
Chủ đầu tư thường lắp thang máy dựa trên nhu cầu hiện tại (ví dụ: thang 1000kg). Tuy nhiên, sau 1-2 năm khi quy mô sản xuất mở rộng, lượng hàng hóa tăng lên hoặc thay đổi loại máy móc nặng hơn, thang máy rơi vào tình trạng quá tải thường xuyên.
Hậu quả: Vận hành quá tải liên tục khiến motor và biến tần bị quá nhiệt, làm giảm 40-50% tuổi thọ thiết bị và gia tăng chi phí thay thế linh kiện.
Lời khuyên từ Chuyên gia Gia Định: Đừng bao giờ thiết kế tải trọng “vừa khít”. Hãy luôn chọn mức tải trọng dự phòng cao hơn nhu cầu thực tế tối thiểu 20%. Ví dụ, nếu hàng hóa nặng 800kg, hãy ưu tiên lắp đặt thang máy tải hàng 1000kg để đảm bảo hệ thống luôn vận hành trong trạng thái “lý tưởng” nhất.
Quy trình 4 bước xác định kích thước thang máy chở hàng tối ưu cho doanh nghiệp
Việc sở hữu một bản vẽ thiết kế chuẩn xác ngay từ đầu sẽ giúp bạn tránh được những lãng phí không đáng có về diện tích và chi phí vận hành. Để đưa ra phương án kích thước thang máy chở hàng lý tưởng nhất, đội ngũ chuyên gia tại Thang Máy Gia Định luôn cùng khách hàng giải quyết 4 bài toán then chốt sau:

Bước 1: Phân tích đặc thù hàng hóa vận chuyển
Bạn cần xác định rõ loại hàng hóa chủ lực của doanh nghiệp mình là gì?
- Kích thước khối hàng lớn nhất: Không chỉ là cân nặng, mà là chiều rộng x chiều sâu x chiều cao của kiện hàng. Nếu hàng hóa là linh kiện điện tử đóng thùng pallet, cabin phải đủ rộng để chứa pallet tiêu chuẩn (thường là 1.1m x 1.1m).
- Tính chất hàng hóa: Hàng hóa có tính chất dễ vỡ, hàng lỏng hay hàng máy móc nguyên khối? Điều này ảnh hưởng trực tiếp đến việc lựa chọn vật liệu sàn cabin và hệ thống giảm chấn của thang.
Bước 2: Xác định phương thức vận chuyển (Logistics nội bộ)
Đây là yếu tố quyết định đến kích thước cửa thang máy chở hàng.
- Vận chuyển thủ công (kê tay/xe đẩy nhỏ): Kích thước cửa và cabin có thể tối giản để tiết kiệm diện tích.
- Sử dụng xe nâng (Forklift/Pallet Jack): Bạn buộc phải chọn dòng thang có tải trọng từ 2000kg trở lên với chiều rộng cửa thông thủy tối thiểu 1.8m. Đặc biệt, sàn cabin cần được thiết kế bằng thép tấm gân chống trượt và gia cố dầm chịu lực để chịu được tải trọng tập trung từ bánh xe nâng.
Bước 3: Đánh giá tần suất sử dụng và tốc độ yêu cầu
Tần suất bốc dỡ hàng hóa bao nhiêu lần/ngày sẽ quyết định cấu hình động cơ:
- Tần suất cao (Kho vận, Logistics): Cần sử dụng máy kéo có hiệu suất lớn, tốc độ nhanh (khoảng 0.5m/s – 1.0m/s) và hệ thống tản nhiệt tốt cho phòng máy.
- Tần suất thấp (Xưởng gia công nhỏ): Có thể ưu tiên các dòng thang có tốc độ trung bình để tiết kiệm điện năng và chi phí lắp đặt.
Bước 4: Khảo sát thực tế diện tích mặt bằng (Hố thang)
Cuối cùng, mọi dự định về kích thước cabin đều phải dựa trên thực tế diện tích mặt bằng cho phép.
- Nếu diện tích quá hạn hẹp, chúng tôi sẽ tư vấn giải pháp thang máy tải hàng đối trọng hông để tối ưu chiều sâu cabin.
- Nếu chiều cao tòa nhà bị hạn chế, phương án thang máy không phòng máy sẽ được ưu tiên để tiết kiệm không gian đỉnh hố (OH).
Lời khuyên từ Thang Máy Gia Định: Đừng tự ý xây dựng hố thang khi chưa có bản vẽ kỹ thuật chi tiết. Một sai lệch chỉ 5cm cũng có thể làm thay đổi hoàn toàn phương án lựa chọn thiết bị của bạn.
Câu hỏi thường gặp về kích thước thang máy chở hàng
Thang máy chở hàng 1000kg cần hố PIT sâu bao nhiêu?
Thông thường, thang tải hàng 1000kg yêu cầu hố PIT sâu tối thiểu từ 1400mm đến 1500mm tùy vào tốc độ thang.
Có cần xây phòng máy cho thang chở hàng không?
Có thể chọn loại có phòng máy (để dễ bảo trì động cơ lớn) hoặc không phòng máy (tối ưu chiều cao tòa nhà). Tại các nhà xưởng, dòng có phòng máy vẫn được ưu tiên nhờ sự bền bỉ và dễ sửa chữa.
Kích thước cửa tối thiểu để xe nâng vào được là bao nhiêu?
Để xe nâng tay vào thuận tiện, cửa cần rộng tối thiểu 1100mm. Với xe nâng máy, chiều rộng cửa nên từ 1600mm – 2000mm.
Thang Máy Gia Định – Đơn vị tư vấn và lắp đặt thang máy chở hàng chuyên nghiệp
Việc lựa chọn một đơn vị có đủ năng lực sản xuất và thi công bài bản không chỉ là câu chuyện mua một thiết bị, mà là sự đầu tư cho sự an toàn và ổn định của cả dây chuyền sản xuất. Thang Máy Gia Định tự hào là một trong số ít những doanh nghiệp tại Việt Nam sở hữu hệ sinh thái khép kín từ sản xuất đến bảo trì.
Tại sao Thang Máy Gia Định là đối tác tin cậy của hàng nghìn doanh nghiệp?
Việc lựa chọn một đối tác cung cấp thang máy không chỉ đơn thuần là mua sắm một thiết bị máy móc, mà là tìm kiếm một người đồng hành cùng sự ổn định của dây chuyền sản xuất. Tại Thang Máy Gia Định, chúng tôi thấu hiểu rằng mỗi phút giây thang máy tạm dừng là một tổn thất về kinh tế của doanh nghiệp. Chính vì vậy, chúng tôi xây dựng niềm tin dựa trên nền tảng năng lực thực tế:
- Sở hữu nhà máy sản xuất trực tiếp: Khác với các đơn vị thương mại, chúng tôi có xưởng sản xuất quy mô tại TP.HCM. Điều này cho phép Gia Định linh hoạt tùy biến kích thước thang máy chở hàng theo “số đo” thực tế của mặt bằng, giải quyết triệt để các bài toán khó về không gian mà thang máy nhập khẩu nguyên chiếc thường bị hạn chế.
- Đội ngũ kỹ sư “thực chiến” trên 15 năm: Chúng tôi không chỉ lắp đặt thiết bị. Đội ngũ chuyên gia của Gia Định sẽ tham gia sâu vào khâu tư vấn, giúp bạn tìm ra giải pháp vận chuyển tối ưu nhất dựa trên đặc thù hàng hóa và quy trình Logistics nội bộ của từng nhà xưởng.
- Cam kết tiêu chuẩn chất lượng khắt khe: Mọi sản phẩm khi xuất xưởng đều phải vượt qua các bài kiểm định nghiêm ngặt, tuân thủ hệ thống quản lý chất lượng ISO 9001:2015 và đáp ứng đầy đủ tiêu chuẩn an toàn TCVN 6395:2008.
- Tối ưu hóa dòng tiền đầu tư: Nhờ mô hình sản xuất và lắp đặt khép kín, không qua trung gian, chúng tôi giúp chủ đầu tư tiết kiệm lên đến 20% chi phí đầu tư ban đầu. Đồng thời, linh kiện luôn sẵn có tại kho giúp rút ngắn tối đa thời gian bảo trì, sửa chữa trong tương lai.
Bằng sự kết hợp giữa công nghệ sản xuất hiện đại và tâm thế của những người thợ lành nghề, chúng tôi cam kết mang đến những hệ thống thang máy tải hàng vận hành bền bỉ, an toàn, góp phần vào sự phát triển bền vững của quý doanh nghiệp.
Quy trình dịch vụ trọn gói tại Gia Định
Chúng tôi đồng hành cùng chủ đầu tư qua từng giai đoạn:
- Khảo sát & Tư vấn: Kỹ sư đến tận công trình để đo đạc và tư vấn tải trọng phù hợp.
- Thiết kế bản vẽ: Cung cấp bản vẽ kỹ thuật, bản vẽ thi công hố thang chuẩn xác (Miễn phí).
- Sản xuất & Lắp đặt: Quy trình lắp đặt nghiêm ngặt, đúng tiến độ cam kết.
- Bảo trì & Hậu mãi: Chế độ bảo trì định kỳ 24/7, đảm bảo thang máy luôn trong trạng thái vận hành tốt nhất.
Đừng để những sai lệch về kích thước làm gián đoạn kế hoạch kinh doanh của bạn!
Bạn đang cần một giải pháp thang máy tải hàng bền bỉ với chi phí tối ưu nhất? Liên hệ ngay với chuyên gia tư vấn của chúng tôi:
- Hotline tư vấn 24/7: 091 114 5522
- Trụ sở chính: 228B Bạch Đằng, P. 24, Q. Bình Thạnh, TP. HCM
- Website: thangmaygiadinh.net.vn
Nhấn ngay để nhận Bảng báo giá thang máy chở hàng chi tiết kèm chương trình ưu đãi đặc biệt dành riêng cho các dự án kho xưởng trong tháng này!