Trong nhu cầu vận chuyển hàng hóa hiện nay, thang máy tải hàng 200kg là giải pháp tiện lợi giúp di chuyển hàng hóa nhanh chóng, an toàn và tiết kiệm thời gian. Thiết bị này phù hợp cho cửa hàng, nhà kho, xưởng sản xuất hoặc gia đình cần vận chuyển hàng hóa giữa các tầng. Bài viết dưới đây sẽ cung cấp những thông tin cơ bản về thang máy tải hàng 200kg, bao gồm đặc điểm, thông số kỹ thuật và các lưu ý khi lắp đặt.
Thang máy tải hàng 200kg là gì? Khi nào nên lắp đặt?
Thang máy tải hàng 200kg là thiết bị nâng hạ chuyên dùng để vận chuyển hàng hóa có trọng lượng tối đa khoảng 200kg giữa các tầng trong công trình. Dòng thang này thường có thiết kế nhỏ gọn, vận hành ổn định và được ứng dụng phổ biến tại nhà xưởng, kho bãi, cửa hàng, siêu thị hoặc nhà ở có nhu cầu vận chuyển hàng hóa nhẹ.
Nhờ tải trọng vừa phải và cấu tạo đơn giản, thang máy tải hàng 200kg giúp tiết kiệm diện tích lắp đặt, giảm chi phí đầu tư nhưng vẫn đảm bảo hiệu quả vận chuyển hàng hóa nhanh chóng và an toàn.

Khi nào nên lắp đặt thang máy tải hàng 200kg?
Bạn nên cân nhắc lắp đặt thang máy tải hàng 200kg trong các trường hợp sau:
- Doanh nghiệp, kho bãi cần vận chuyển các kiện hàng nhỏ gọn hoặc vật tư nhẹ giữa các tầng.
- Nhà xưởng sản xuất có nhiều tầng, cần đưa nguyên liệu hoặc sản phẩm lên xuống thuận tiện hơn.
- Cửa hàng, siêu thị, trung tâm thương mại muốn tối ưu quy trình vận chuyển hàng hóa, giảm nhân công bốc xếp thủ công.
- Gia đình kinh doanh hoặc nhà phố nhiều tầng cần vận chuyển đồ đạc, hàng hóa nặng mà không phải mang vác bằng tay.
Với khả năng nâng tối đa 200kg, thang máy tải hàng 200kg là giải pháp lý tưởng cho nhu cầu vận chuyển hàng hóa vừa và nhỏ, giúp tiết kiệm thời gian, giảm sức lao động và nâng cao hiệu quả vận hành cho doanh nghiệp cũng như hộ gia đình.
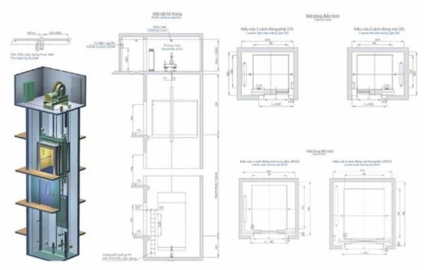
Thông số kỹ thuật tiêu chuẩn của thang máy tải hàng 200kg Gia Định

Để đảm bảo hoạt động ổn định và an toàn, mỗi loại thang máy tải hàng 200kg đều có các thông số kỹ thuật tiêu chuẩn cần tuân thủ.
- Tải trọng tối đa: 200kg
- Chiều cao nâng tối đa: từ 3 đến 15 mét tùy theo thiết kế.
- Kích thước cabin: dao động từ 0.8m x 0.8m đến 1.2m x 1.2m, phù hợp cho hàng hóa và người vận hành.
- Nguồn điện: 220V hoặc 380V tùy theo yêu cầu.
- Tốc độ nâng: khoảng 0.2m/s đến 0.5m/s, phù hợp với mục đích vận chuyển hàng hóa.
- Hệ thống kiểm soát an toàn: cảm biến cửa, phanh tự động, hệ thống cứu hộ, cảnh báo quá tải.
Các thông số này sẽ được điều chỉnh phù hợp với từng mục đích sử dụng cụ thể của khách hàng, đảm bảo phù hợp về mặt kỹ thuật cũng như khả năng vận hành tối ưu.
Phân loại thang máy nâng hàng 200kg phổ biến

Hiện nay, trên thị trường có nhiều loại thang máy tải hàng 200kg được phân loại theo nhiều tiêu chí khác nhau như cấu tạo, phương pháp vận hành hoặc mục đích sử dụng.
Phân loại theo cấu tạo
- Thang máy cabin kín: Cabin có mái che, phù hợp cho môi trường khô ráo, giúp bảo vệ hàng hóa khỏi bụi bẩn và thời tiết.
- Thang máy cabin mở: Cabin không có mái, thích hợp cho việc vận chuyển trong nhà kho hoặc môi trường bảo vệ tốt.
Phân loại theo phương pháp vận hành
- Thang máy kéo bằng móc cáp: Nguyên lý hoạt động dựa trên hệ thống cáp kéo và đối trọng.
- Thang tải hàng tời (tời kéo): Đơn giản, cấu tạo nhỏ gọn, phù hợp cho các khu vực có diện tích hạn chế.
Phân loại theo mục đích sử dụng
- Thang máy tải hàng nội bộ: Dùng trong nhà xưởng, kho hàng hoặc doanh nghiệp.
- Thang máy tải hàng ngoài trời: Được thiết kế chịu được điều kiện thời tiết khắc nghiệt, thường lắp đặt ở các công trình xây dựng, bến cảng.
Việc lựa chọn loại phù hợp sẽ giúp nâng cao hiệu quả vận chuyển, tiết kiệm chi phí và đảm bảo an toàn cho người vận hành.
Phân tích chi phí lắp đặt thang máy tải hàng 200kg (Cập nhật 2026)
Chi phí lắp đặt thang máy tải hàng 200kg phụ thuộc vào nhiều yếu tố như thiết kế thang, công nghệ vận hành, vị trí lắp đặt, chiều cao công trình và các yêu cầu kỹ thuật đi kèm. Ngoài giá thiết bị, tổng chi phí còn bao gồm khảo sát, thi công, vận chuyển và bảo trì định kỳ.
Việc nắm rõ từng hạng mục chi phí sẽ giúp doanh nghiệp hoặc hộ gia đình dự trù ngân sách chính xác khi lắp đặt thang máy tải hàng 200kg.
Các khoản mục chi phí chính khi lắp đặt thang máy tải hàng 200kg
| Hạng mục chi phí | Mức chi phí tham khảo | Mô tả |
|---|---|---|
| Giá thiết bị thang máy | 50 – 150 triệu đồng | Tùy thuộc vào thương hiệu, kích thước cabin, vật liệu và công nghệ điều khiển của thang máy tải hàng 200kg |
| Thiết kế – khảo sát | 5 – 10 triệu đồng | Bao gồm khảo sát công trình, đo đạc kích thước hố thang và lên bản vẽ kỹ thuật |
| Lắp đặt và thi công | 15 – 30 triệu đồng | Chi phí nhân công lắp đặt hệ thống cơ khí, điện, ray dẫn hướng và hoàn thiện hố thang |
| Vận chuyển và kiểm tra | 5 – 10 triệu đồng | Bao gồm chi phí vận chuyển thiết bị, kiểm tra kỹ thuật và chạy thử trước khi bàn giao |
| Bảo trì – bảo dưỡng | 5 – 10 triệu đồng/năm | Bảo dưỡng định kỳ, kiểm tra an toàn và thay thế linh kiện khi cần |
Cập nhật chi phí thang máy tải hàng 200kg năm 2026
Trong năm 2026, thị trường thang máy tải hàng 200kg đang có xu hướng cạnh tranh mạnh giữa các nhà cung cấp. Nhờ đó, giá thành thiết bị ngày càng hợp lý hơn so với trước, đồng thời nhiều công nghệ hiện đại được tích hợp sẵn như:
- Hệ thống cảm biến an toàn và chống quá tải
- Bộ điều khiển tự động thông minh giúp vận hành ổn định
- Cơ chế tiết kiệm điện năng và giảm tiếng ồn
Những cải tiến này giúp thang máy tải hàng 200kg không chỉ tối ưu chi phí đầu tư mà còn nâng cao độ an toàn, độ bền và hiệu quả vận hành lâu dài cho doanh nghiệp, cửa hàng hoặc gia đình.
Ưu điểm vượt trội khi sử dụng thang nâng hàng 200kg
Sử dụng thang máy tải hàng 200kg mang lại nhiều lợi ích rõ rệt cho các doanh nghiệp và gia đình, nhất là trong điều kiện vận chuyển hàng hóa linh hoạt, an toàn và tiết kiệm thời gian.
Các lợi ích chính
- Tiết kiệm công sức và thời gian: Giảm thiểu tối đa việc bốc xếp thủ công, nâng cao năng suất làm việc.
- Đảm bảo an toàn: Trang bị hệ thống cảnh báo quá tải, cảm biến cảm ứng, hệ thống phanh tự động giúp hạn chế tai nạn.
- Tiện lợi, linh hoạt: Lắp đặt phù hợp với nhiều không gian, từ trong nhà đến ngoài trời, có thể tùy chỉnh theo chiều cao, kích thước cabin.
- Tiết kiệm chi phí vận hành: Tiêu thụ điện năng thấp, bảo trì dễ dàng, tuổi thọ cao.
- Tính thẩm mỹ cao: Thiết kế đẹp, phù hợp với nhiều phong cách nội thất và kiến trúc công trình.
Điểm nổi bật
Các dòng thang máy tải hàng 200kg đều có khả năng hoạt động liên tục, phù hợp với nhiều mục đích khác nhau, giúp giảm thiểu thiệt hại do vận chuyển sai cách và tối ưu hóa quy trình làm việc.
Quy trình thiết kế và thi công tại Thang Máy Gia Định
Khi lựa chọn thang máy tải hàng 200kg tại Thang Máy Gia Định, khách hàng sẽ được phục vụ theo quy trình làm việc chuyên nghiệp, minh bạch và tuân thủ đầy đủ các tiêu chuẩn kỹ thuật. Từ khâu khảo sát, thiết kế đến sản xuất và lắp đặt, mỗi bước đều được thực hiện chặt chẽ nhằm đảm bảo thang máy tải hàng 200kg vận hành an toàn, bền bỉ và hiệu quả lâu dài.

Bước 1: Khảo sát thực tế và tư vấn bản vẽ kỹ thuật
Đội ngũ kỹ thuật của Thang Máy Gia Định sẽ tiến hành khảo sát trực tiếp công trình để đánh giá điều kiện lắp đặt thang máy tải hàng 200kg.
- Kiểm tra hiện trạng nhà xưởng, kho bãi hoặc khu vực lắp đặt.
- Trao đổi với khách hàng để hiểu rõ nhu cầu sử dụng và tải trọng vận chuyển.
- Đề xuất phương án thiết kế phù hợp với diện tích và công năng.
- Thiết kế bản vẽ kỹ thuật chi tiết, đảm bảo đúng tiêu chuẩn an toàn và tối ưu hiệu quả vận hành.
Bước 2: Sản xuất tại nhà máy Gia Định (An Phú Đông)
Sau khi thống nhất phương án kỹ thuật, các bộ phận của thang máy tải hàng 200kg sẽ được sản xuất trực tiếp tại nhà máy Gia Định.
- Linh kiện và kết cấu thang được sản xuất theo tiêu chuẩn chất lượng cao.
- Từng bộ phận được kiểm tra nghiêm ngặt theo quy trình kiểm định nội bộ.
- Đảm bảo độ chính xác, độ bền và khả năng vận hành ổn định của thang máy.
Bước 3: Lắp đặt cơ khí và hệ thống điện
Sau khi hoàn tất sản xuất, đội ngũ kỹ thuật tiến hành lắp đặt thang máy tải hàng 200kg tại công trình.
- Lắp đặt cabin, khung thang, ray dẫn hướng và hệ thống cáp tải.
- Kết nối hệ thống điện điều khiển và bảng điều khiển vận hành.
- Kiểm tra kỹ các bộ phận an toàn như hệ thống phanh, cảm biến, công tắc giới hạn và chống quá tải.
Quá trình lắp đặt được thực hiện đúng bản vẽ kỹ thuật nhằm đảm bảo độ ổn định và an toàn khi vận hành thang máy tải hàng 200kg.
Bước 4: Vận hành thử và bàn giao
Trước khi bàn giao, toàn bộ hệ thống thang máy tải hàng 200kg sẽ được kiểm tra và chạy thử để đảm bảo hoạt động ổn định.
- Thử nghiệm thang trong nhiều điều kiện tải trọng khác nhau.
- Kiểm tra tốc độ, độ êm ái và độ an toàn của hệ thống.
- Hướng dẫn khách hàng cách sử dụng, vận hành và bảo trì định kỳ.
- Bàn giao thang máy cùng các tài liệu kỹ thuật và hướng dẫn vận hành.
Nhờ quy trình thiết kế và thi công chuyên nghiệp, Thang Máy Gia Định luôn đảm bảo mỗi công trình thang máy tải hàng 200kg đạt tiêu chuẩn an toàn, vận hành ổn định và đáp ứng tốt nhu cầu vận chuyển hàng hóa của khách hàng.
Lưu ý kỹ thuật và an toàn khi vận hành thang tời 200kg

Sử dụng thang máy tải hàng 200kg đúng kỹ thuật, an toàn đóng vai trò cực kỳ quan trọng để tránh các rủi ro và sự cố không mong muốn.
Không chở quá tải trọng quy định
Điều quan trọng nhất là không vượt quá tải trọng tối đa của thiết bị, vì điều này dễ gây hư hỏng hệ thống hoặc mất an toàn trong quá trình vận hành.
Kiểm tra định kỳ hệ thống phanh cơ và cảm biến cửa
- Đảm bảo các chức năng cảnh báo quá tải, cảm biến mở cửa hoạt động tốt.
- Thực hiện kiểm tra định kỳ theo hướng dẫn của nhà sản xuất để duy trì hiệu quả hoạt động.
Tầm quan trọng của việc bảo trì định kỳ
- Bảo trì giúp phát hiện sớm các hư hỏng, giảm thiểu thời gian ngừng hoạt động.
- Hạn chế rủi ro về tai nạn, đảm bảo an toàn cho người vận hành và hàng hóa.
- Bảo trì định kỳ còn giúp nâng cao tuổi thọ của thiết bị, tiết kiệm chi phí sửa chữa lớn sau này.
Tại sao nên chọn Thang Máy Gia Định thay vì các đơn vị giá rẻ?
Trong thị trường ngày càng cạnh tranh, nhiều nơi cung cấp sản phẩm giá rẻ, tuy nhiên, lựa chọn Thang Máy Gia Định mang lại nhiều lợi ích vượt trội như:
- Đội ngũ kỹ thuật giàu kinh nghiệm, chuyên nghiệp, đảm bảo thi công đúng tiêu chuẩn.
- Cam kết chất lượng linh kiện, thiết bị chính hãng, độ bền cao.
- Dịch vụ hậu mãi, bảo hành chính hãng lâu dài, hỗ trợ kỹ thuật nhanh chóng.
- Giá thành cạnh tranh, phù hợp với nhiều ngân sách mà vẫn đảm bảo chất lượng.
- Tư vấn tận tình, thiết kế phù hợp từng không gian và mục đích sử dụng.
Chọn Thang Máy Gia Định chính là sự đầu tư đúng đắn, đem lại sự an tâm và hiệu quả lâu dài cho khách hàng.
Câu hỏi thường gặp về thang máy tải hàng 200kg
Thang máy tải hàng 200kg có tốn điện không?
Thông thường, thang máy tải hàng 200kg tiêu thụ điện năng rất thấp, chỉ từ 0.1-0.5 kWh mỗi lần nâng. Đặc biệt, các dòng hiện đại tích hợp hệ thống tiết kiệm điện và chế độ tự động tắt khi không hoạt động giúp giảm chi phí vận hành.
Thời gian thi công trọn gói là bao lâu?
Thời gian lắp đặt trung bình từ 7 đến 15 ngày, tùy thuộc vào quy mô dự án, địa điểm thi công và yêu cầu chỉnh sửa. Quá trình khảo sát, thiết kế, sản xuất, lắp đặt đều được thực hiện theo chuẩn quy trình rõ ràng.
Chế độ bảo hành tại Thang Máy Gia Định như thế nào?
Chế độ bảo hành từ 12 đến 24 tháng, bao gồm sửa chữa, thay thế linh kiện chính hãng và bảo trì định kỳ. Đội ngũ kỹ thuật phản hồi nhanh, sẵn sàng hỗ trợ khách hàng mọi lúc, mọi nơi.
Kết luận
Thang máy tải hàng 200kg là giải pháp tối ưu cho việc vận chuyển hàng hóa trong mọi công trình, doanh nghiệp, gia đình. Với các ưu điểm vượt trội về an toàn, hiệu quả, tiết kiệm chi phí và thiết kế linh hoạt, sản phẩm của Thang Máy Gia Định đã và đang khẳng định vị thế hàng đầu tại thị trường Việt Nam. Hãy liên hệ với chúng tôi để được tư vấn, khảo sát miễn phí và sở hữu giải pháp phù hợp nhất, mang lại lợi ích tối ưu cho công việc của bạn.