Trong các bản vẽ kỹ thuật xây dựng, ký hiệu cầu thang là một yếu tố quan trọng giúp thể hiện rõ vị trí, cấu tạo và hướng di chuyển giữa các tầng. Tuy nhiên, không phải ai cũng hiểu đúng và đủ về cách đọc các ký hiệu này, đặc biệt là với người mới tiếp cận bản vẽ kiến trúc. Bài viết dưới đây sẽ giúp bạn nắm rõ ý nghĩa của các ký hiệu cầu thang phổ biến và hướng dẫn cách đọc chính xác, từ đó hỗ trợ hiệu quả trong quá trình thi công và giám sát công trình.
Ý nghĩa của các ký hiệu cầu thang trong thiết kế

Trong các bản vẽ kỹ thuật xây dựng, ký hiệu cầu thang không chỉ là những hình ảnh minh họa đơn giản mà còn mang ý nghĩa kỹ thuật sâu sắc. Mỗi ký hiệu đều thể hiện một loạt thông tin quan trọng như loại cầu thang, vị trí lắp đặt, chiều cao từng tầng, độ dốc, kiểu thiết kế và các thông số kỹ thuật liên quan khác. Việc hiểu chính xác các ký hiệu này giúp kiến trúc sư, kỹ sư và đội ngũ thi công nắm bắt được ý tưởng thiết kế một cách trực quan, từ đó hạn chế tối đa sai sót hoặc nhầm lẫn trong quá trình thi công.
Ngoài ra, ký hiệu cầu thang còn đóng vai trò then chốt trong việc liên kết các khu vực chức năng trong công trình. Chúng giúp xác định lối đi giữa các tầng, hướng thoát hiểm và thể hiện sự phối hợp với các hệ thống kỹ thuật khác như hệ thống phòng cháy chữa cháy, hệ thống thông gió, điện, nước… Việc sử dụng ký hiệu đúng quy chuẩn không chỉ giúp xác định chính xác vị trí lắp đặt mà còn đảm bảo quá trình xây dựng diễn ra đúng kỹ thuật, an toàn và phù hợp với các quy định pháp luật hiện hành.
Hơn thế nữa, việc nắm vững và hiểu rõ các ký hiệu cầu thang còn hỗ trợ chủ đầu tư và các bên liên quan trong quá trình theo dõi, kiểm tra chất lượng cũng như giám sát tiến độ thi công. Đây là yếu tố quan trọng giúp nâng cao hiệu quả quản lý dự án, đồng thời đảm bảo công trình khi đưa vào sử dụng hoạt động ổn định, an toàn và bền vững.
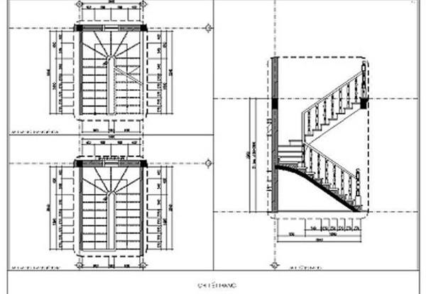
Phân biệt ký hiệu thang bộ và thang máy trong bản vẽ

Trong bản vẽ kiến trúc hoặc kỹ thuật xây dựng, ký hiệu cầu thang là yếu tố quan trọng giúp người xem xác định chính xác vị trí, cấu trúc và loại cầu thang được sử dụng trong công trình. Hai loại phổ biến nhất là thang bộ và thang máy, mỗi loại có cách ký hiệu riêng để thể hiện chức năng và đặc điểm sử dụng.
1. Ký hiệu thang bộ trong bản vẽ
Thang bộ là dạng cầu thang cho phép người sử dụng di chuyển bằng cách đi bộ giữa các tầng. Trên bản vẽ, loại cầu thang này thường được thể hiện bằng các đặc điểm sau:
- Hình dạng: thường là hình chữ nhật hoặc hình lục giác.
- Có mũi tên chỉ hướng lên hoặc xuống, giúp xác định chiều di chuyển.
- Đi kèm thông tin chi tiết như số bậc, chiều cao tầng, hướng lên/xuống, hoặc sơ đồ bố trí giữa các tầng.
- Là lối thoát hiểm chính trong các công trình và phải tuân thủ nghiêm ngặt quy định an toàn cháy nổ.
2. Ký hiệu thang máy trong bản vẽ
Thang máy là thiết bị vận hành bằng máy móc, hỗ trợ vận chuyển người hoặc hàng hóa giữa các tầng một cách nhanh chóng và thuận tiện. Trong bản vẽ kỹ thuật, ký hiệu thang máy thường bao gồm:
- Hình dạng hình vuông hoặc hình chữ nhật, thể hiện khu vực cabin và trục thang.
- Có các biểu tượng cho cửa ra vào, trục dẫn hướng, hệ thống điều khiển và vận hành.
- Ký hiệu đi kèm với thông số kỹ thuật, chẳng hạn như tải trọng, tốc độ, hoặc số tầng phục vụ.
- Là lựa chọn phù hợp cho người cao tuổi, người khuyết tật và những nơi có nhu cầu di chuyển nhanh hoặc vận chuyển hàng nặng.
3. Cách phân biệt ký hiệu thang bộ và thang máy
Để phân biệt chính xác hai loại cầu thang này trên bản vẽ, có thể dựa vào các yếu tố sau:
- Hình dáng ký hiệu:
- Thang bộ có nhiều bậc và mũi tên chỉ hướng.
- Thang máy có cabin, trục thẳng đứng và ký hiệu cửa rõ ràng.
- Ghi chú kỹ thuật: Thường thể hiện thông tin về chiều cao, số tầng, chức năng hoặc thông số kỹ thuật.
- Vai trò trong công trình:
- Thang bộ là lối thoát hiểm và di chuyển cơ bản.
- Thang máy mang lại sự tiện nghi và hỗ trợ vận chuyển nhanh.
Việc phân biệt đúng ký hiệu thang bộ và thang máy trong bản vẽ mang lại nhiều lợi ích thiết thực:
- Giúp thiết kế hệ thống kỹ thuật một cách chính xác.
- Hỗ trợ tính toán kết cấu và điện năng phù hợp với từng loại thang.
- Đảm bảo an toàn công trình và tuân thủ tiêu chuẩn xây dựng.
- Giúp kỹ sư, nhà thầu, người thi công hiểu đúng yêu cầu thiết kế, tránh nhầm lẫn khi triển khai thực tế.
Tóm lại, việc hiểu và phân biệt rõ ký hiệu thang bộ và thang máy trong bản vẽ không chỉ giúp quá trình thiết kế – thi công diễn ra thuận lợi mà còn đảm bảo an toàn, hiệu quả cho toàn bộ công trình.
Tiêu chuẩn và yêu cầu ký hiệu cầu thang trong bản vẽ công trình

Trong thiết kế và triển khai bản vẽ kỹ thuật công trình xây dựng, việc áp dụng đúng ký hiệu cầu thang theo tiêu chuẩn là bắt buộc để đảm bảo độ chính xác, hợp pháp và an toàn. Các ký hiệu này giúp truyền đạt thông tin rõ ràng, là cơ sở để kỹ sư, nhà thầu và cơ quan kiểm tra thực hiện đúng thiết kế.
Hệ thống tiêu chuẩn Việt Nam (TCVN) và các tiêu chuẩn quốc tế như ISO đã quy định chi tiết về cách ký hiệu các bộ phận cầu thang như bậc thang, chiếu nghỉ, tay vịn, lan can, kết cấu chịu lực và hệ thống an toàn như lối thoát hiểm, thiết bị chống trượt, phòng cháy chữa cháy.
Để đảm bảo sự đồng bộ và dễ hiểu, ký hiệu cầu thang trên bản vẽ phải tuân thủ các yêu cầu về kích thước, tỷ lệ, màu sắc, vị trí, cao độ và các thông số kỹ thuật khác, đồng thời phải dễ nhận diện, tránh nhầm lẫn trong thi công và kiểm tra.
Ngoài ra, các ký hiệu còn phải phù hợp với các quy định an toàn xây dựng, phòng cháy chữa cháy và bảo vệ môi trường, giúp công trình không chỉ đạt chất lượng kỹ thuật mà còn đáp ứng yêu cầu pháp lý.
Việc sử dụng đúng chuẩn ký hiệu cầu thang góp phần giảm lỗi kỹ thuật, tiết kiệm chi phí sửa chữa và nâng cao chất lượng hồ sơ thiết kế – thi công – nghiệm thu, thể hiện trình độ chuyên môn và trách nhiệm của các bên tham gia.
Do đó, nắm vững và áp dụng chuẩn xác các tiêu chuẩn về ký hiệu cầu thang là kỹ năng thiết yếu trong ngành xây dựng để đảm bảo công trình an toàn, chất lượng và bền vững.
Nét vẽ và ký hiệu đi kèm trong bản vẽ xây dựng

Trong bản vẽ xây dựng, nét vẽ và ký hiệu cầu thang đóng vai trò quan trọng giúp mô tả chi tiết và chính xác các bộ phận của cầu thang. Nét vẽ được phân loại rõ ràng: nét đậm thường dùng để thể hiện kết cấu chính và phần chịu lực, còn nét mảnh dùng cho các chi tiết như lan can, tay vịn hoặc những bộ phận nhỏ hơn.
Ký hiệu cầu thang giúp làm rõ các thông số kỹ thuật như loại vật liệu, số lượng và chiều cao bậc thang, góc dốc, hướng di chuyển, cũng như các yếu tố an toàn như vị trí cột điện hay hệ thống chữa cháy. Các ký hiệu này còn ghi nhận các thông số quan trọng khác như đường kính thanh thép, chiều dài đoạn thang và hướng mở cửa.
Việc sử dụng chính xác nét vẽ và ký hiệu không chỉ giúp kỹ sư, kiến trúc sư dễ dàng đọc và truyền đạt thông tin trong hồ sơ thiết kế, mà còn hạn chế sai sót khi chuyển giao bản vẽ giữa các bộ phận thi công. Hệ thống ký hiệu rõ ràng và đồng bộ còn giúp quá trình thi công diễn ra hiệu quả, đúng tiến độ.
Ngoài ra, nét vẽ và ký hiệu được thiết kế theo tiêu chuẩn quốc tế và quy chuẩn xây dựng hiện hành, tạo thuận lợi cho việc kiểm tra, giám sát từ khâu thiết kế đến nghiệm thu công trình. Hiểu rõ các ký hiệu này cũng giúp người thi công xử lý kịp thời các vấn đề phát sinh, nâng cao chất lượng và độ bền của công trình.
Quy định về kích thước cầu thang trong bản vẽ thiết kế

Kích thước cầu thang là một yếu tố quan trọng quyết định đến tính an toàn, tiện nghi và thẩm mỹ của toàn bộ hệ thống giao thông trong công trình xây dựng. Trong bản vẽ thiết kế, các quy định về kích thước cầu thang được chuẩn hóa dựa trên các tiêu chuẩn kỹ thuật chuyên ngành, đảm bảo phù hợp với từng loại công trình, mục đích sử dụng và đối tượng người dùng. Những kích thước chủ yếu cần quan tâm bao gồm chiều rộng, chiều cao từng bậc thang, độ dốc của cầu thang, chiều cao lan can, cùng các yếu tố liên quan khác.
Ngoài việc đảm bảo kích thước chuẩn xác, việc sử dụng ký hiệu cầu thang trong bản vẽ cũng rất cần thiết để mô tả chi tiết và trực quan từng thành phần của cầu thang như bậc thang, lan can, tay vịn, mặt phẳng sàn, hay chiều dốc. Những ký hiệu này giúp người thi công dễ dàng hiểu và thực hiện đúng theo thiết kế, đồng thời hỗ trợ kiểm tra, giám sát chất lượng xây dựng.
Các quy định về kích thước cầu thang nhằm đảm bảo các tiêu chí an toàn như khả năng chịu lực, độ bám mặt bậc, hạn chế trượt ngã và tuân thủ tiêu chuẩn phòng cháy chữa cháy. Một bản vẽ cầu thang chuẩn sẽ thể hiện rõ các kích thước từng bậc, tổng chiều dài và chiều cao toàn bộ cầu thang, cùng với các chi tiết liên quan như tay vịn, lan can, được ký hiệu rõ ràng và thống nhất. Việc tuân thủ nghiêm ngặt các thông số này giúp giảm thiểu nguy cơ tai nạn trong quá trình sử dụng.
Ngoài yếu tố an toàn, kích thước cầu thang phù hợp còn góp phần tối ưu không gian sử dụng, mang lại cảm giác thoải mái và thuận tiện cho người di chuyển. Người thiết kế cần dựa trên các tiêu chuẩn kỹ thuật như TCVN 4391-3, TCVN 5749 và các quy chuẩn liên quan để xác định chính xác số liệu cho từng phần của cầu thang. Việc tuân thủ đúng quy định về kích thước và ký hiệu cầu thang không chỉ giúp công trình đạt chuẩn kỹ thuật mà còn tiết kiệm thời gian, giảm chi phí sửa chữa và điều chỉnh trong quá trình thi công.
Khung bản vẽ và khung tiêu đề trong bản vẽ xây dựng

Khung bản vẽ và khung tiêu đề là những yếu tố quan trọng giúp tổ chức bố cục rõ ràng, dễ đọc và thuận tiện tra cứu thông tin trong hồ sơ thiết kế kỹ thuật xây dựng. Khung bản vẽ thường gồm các phần như mặt bằng, mặt cắt và chi tiết kỹ thuật, trong đó có ký hiệu cầu thang để mô tả chính xác vị trí và cấu tạo cầu thang. Khung tiêu đề ghi nhận các thông tin quan trọng như tên dự án, mã bản vẽ, ngày tháng, tên người vẽ và các ký hiệu kỹ thuật.
Việc trình bày hợp lý các khung này giúp người đọc nhanh chóng tiếp cận nội dung chính và kiểm tra kỹ thuật dễ dàng. Đồng thời, tiêu chuẩn khung bản vẽ và khung tiêu đề đảm bảo sự thống nhất, nâng cao tính chuyên nghiệp và độ tin cậy của hồ sơ thiết kế. Các thông tin đầy đủ, rõ ràng cũng hỗ trợ giám sát và nghiệm thu công trình đúng theo yêu cầu thiết kế.
Do đó, kỹ sư cần tuân thủ các quy chuẩn về kích thước, vị trí và cách trình bày khung bản vẽ và khung tiêu đề để đảm bảo hồ sơ kỹ thuật vừa chính xác, vừa thẩm mỹ và có giá trị pháp lý trong quá trình thi công.
Hướng dẫn đọc bản vẽ cầu thang nhanh và chính xác

Đọc bản vẽ cầu thang một cách nhanh và chính xác đòi hỏi sự quen thuộc với các ký hiệu, sơ đồ và tiêu chuẩn đã đề cập trước đó. Trước tiên, người đọc cần xác định các ký hiệu chính: ký hiệu thang bộ, thang máy, ký hiệu kích thước, các phần cắt, mặt bằng, mặt đứng của cầu thang qua các biểu tượng và ký hiệu đã quy định. Tiếp theo, cần chú ý đến hướng mũi tên chỉ dẫn hướng đi của thang, các số liệu chiều cao, bậc thang, độ dốc, số lượng bậc để hình dung chính xác về cấu trúc.
Việc đọc đúng cách còn đòi hỏi sự hiểu biết về các quy chuẩn, tiêu chuẩn kỹ thuật, đặc biệt là các thông số về kích thước, vị trí, tính toán kết cấu. Khi đã quen, người đọc có thể phân tích nhanh các đặc điểm của bản vẽ, đánh giá tính khả thi, thích hợp của phương án thiết kế hoặc phát hiện bất thường, sai lệch trước khi tiến hành thi công. Đồng thời, việc này còn giúp kiểm tra các yếu tố an toàn, khả năng thoát hiểm, đảm bảo phù hợp với yêu cầu của quy định pháp luật và quy chuẩn xây dựng hiện hành.
Bên cạnh đó, kỹ năng đọc bản vẽ còn nâng cao khả năng phối hợp công việc giữa các nhóm thiết kế, thi công, nghiệm thu, giúp quá trình thi công chính xác, hiệu quả hơn. Người làm việc lâu năm hoặc chuyên nghiệp đều cần nắm vững các ký hiệu, sơ đồ, biểu tượng, và luôn cập nhật các tiêu chuẩn mới để phù hợp với yêu cầu của từng công trình cụ thể.
Hiểu đúng về ký hiệu cầu thang trong bản vẽ không chỉ giúp bạn đọc bản vẽ chính xác hơn mà còn góp phần đảm bảo tính an toàn, thẩm mỹ và hiệu quả thi công cho công trình. Hy vọng qua những chia sẻ trên của Thang máy Gia Định, bạn đã nắm được ý nghĩa cũng như cách đọc chuẩn các ký hiệu cầu thang, từ đó áp dụng linh hoạt vào thực tế thiết kế và xây dựng. Đừng quên thường xuyên cập nhật thêm kiến thức chuyên môn để nâng cao kỹ năng đọc bản vẽ ngày một chuyên nghiệp hơn.