Trong ngành xây dựng hiện nay, kích thước thang máy tải ô tô đóng vai trò quan trọng trong việc đảm bảo hiệu quả vận chuyển xe cộ, đồng thời tối ưu hóa không gian sử dụng của dự án. Việc lựa chọn kích thước phù hợp không chỉ ảnh hưởng đến khả năng vận hành của thang máy mà còn phản ánh độ an toàn và tính tiện lợi trong quá trình sử dụng. Bài viết dưới đây sẽ giúp bạn hiểu rõ hơn về các thông số, tiêu chuẩn cùng các yếu tố liên quan đến kích thước thang máy tải ô tô, từ đó lựa chọn sản phẩm phù hợp nhất với nhu cầu của mình.
Thang máy tải ô tô là gì? Vai trò của việc chọn kích thước chuẩn

Thang máy tải ô tô là loại thang máy chuyên dụng được thiết kế để vận chuyển xe hơi giữa các tầng trong công trình. Thiết bị này thường được lắp đặt tại gara ô tô, trung tâm thương mại, tòa nhà văn phòng, chung cư cao cấp hoặc các công trình nhà cao tầng có khu vực đỗ xe nhiều tầng.
Trong quá trình thiết kế và lắp đặt, kích thước thang máy tải ô tô là yếu tố đặc biệt quan trọng. Việc lựa chọn kích thước phù hợp giúp xe ô tô ra vào dễ dàng, đảm bảo quá trình vận hành ổn định, an toàn và hạn chế tối đa tình trạng va chạm, trầy xước.
Ngoài ra, xác định đúng kích thước thang máy tải ô tô còn giúp tối ưu diện tích xây dựng, nâng cao hiệu suất sử dụng và giảm thiểu chi phí đầu tư cũng như rủi ro kỹ thuật trong quá trình vận hành lâu dài. Vì vậy, trước khi thi công, cần tính toán kích thước thang máy dựa trên loại xe, tải trọng và không gian công trình để đảm bảo hệ thống hoạt động hiệu quả và bền bỉ.
Thông số kích thước thang máy tải ô tô cơ bản cần biết

Khi thiết kế và lắp đặt thang máy chuyên dụng cho ô tô, việc xác định kích thước thang máy tải ô tô là bước quan trọng giúp đảm bảo thang hoạt động ổn định, an toàn và phù hợp với không gian công trình. Thông thường, kỹ sư sẽ dựa vào một số thông số kỹ thuật cơ bản sau:
- Chiều dài và chiều rộng hố thang: Đây là kích thước bên trong của hố thang, quyết định không gian tổng thể để đặt cabin và đảm bảo xe ô tô có thể di chuyển thuận lợi.
- Kích thước cabin: Là diện tích sử dụng bên trong thang máy, cần được thiết kế phù hợp với loại xe, tải trọng và số lượng xe dự kiến vận chuyển.
- Chiều sâu hố PIT: Đây là phần hố nằm dưới đáy thang máy, có vai trò đảm bảo an toàn kỹ thuật và tạo khoảng không cần thiết để cabin vận hành ổn định.
- Kích thước cửa cabin: Cửa thang cần đủ rộng và cao để xe ô tô ra vào dễ dàng, hạn chế va chạm khi di chuyển.
Việc tính toán chính xác kích thước thang máy tải ô tô dựa trên các thông số trên sẽ giúp tối ưu không gian xây dựng, đảm bảo sự thuận tiện khi sử dụng và tránh tình trạng thiết kế quá chật hoặc dư thừa gây lãng phí chi phí đầu tư.
Bảng tra cứu kích thước thang máy tải ô tô tiêu chuẩn theo tải trọng
| Tải trọng (tấn) | Chiều dài cabin (mm) | Chiều rộng cabin (mm) | Chiều cao cabin (mm) | Kích thước cửa (mm) |
|---|---|---|---|---|
| 1.5 | 4800 – 5000 | 2100 – 2200 | 2000 – 2100 | 2000 – 2200 |
| 2.0 | 5000 – 5200 | 2200 – 2300 | 2100 – 2200 | 2200 – 2400 |
| 3.0 | 5500 – 6000 | 2400 – 2700 | 2200 – 2400 | 2400 – 2700 |
| 4.0 | 6000 – 6500 | 2700 – 3000 | 2400 – 2600 | 2600 – 3000 |
Lựa chọn kích thước phù hợp dựa trên tải trọng và loại xe thông dụng, giúp tối ưu vận hành và tiết kiệm chi phí đầu tư.
Phân loại thang máy tải ô tô dựa trên hệ thống truyền động
Trên thị trường hiện nay, thang máy vận chuyển ô tô thường được phân loại dựa trên hệ thống truyền động. Việc hiểu rõ từng công nghệ sẽ giúp chủ đầu tư lựa chọn giải pháp phù hợp với công trình, đồng thời xác định kích thước thang máy tải ô tô chính xác để đảm bảo hiệu quả vận hành và tối ưu chi phí xây dựng.
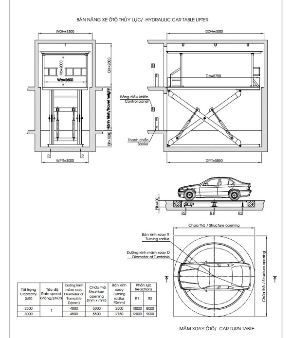
Thang máy tải ô tô công nghệ thủy lực

Thang máy thủy lực hoạt động dựa trên nguyên lý sử dụng piston kết hợp với dầu thủy lực để tạo lực nâng cabin. Đây là dòng thang máy có cấu tạo khá đơn giản và thường được sử dụng cho các công trình có chiều cao thấp đến trung bình như gara ô tô, showroom hoặc nhà ở nhiều tầng có bãi đỗ xe.
Ưu điểm:
- Vận hành ổn định, ít rung lắc và tiếng ồn thấp
- Cấu trúc đơn giản, dễ bảo trì và sửa chữa
- Phù hợp với công trình có chiều cao hạn chế
Nhược điểm:
- Giới hạn chiều cao nâng
- Chi phí đầu tư ban đầu tương đối cao
Khi lắp đặt loại thang này, việc tính toán kích thước thang máy tải ô tô cần dựa trên tải trọng xe và không gian hố thang để đảm bảo hệ thống hoạt động ổn định.
Thang máy tải ô tô sử dụng máy kéo

Loại thang máy này sử dụng động cơ kéo (motor) kết hợp với hệ thống cáp và pulley để nâng hoặc hạ cabin. Đây là công nghệ phổ biến trong các tòa nhà cao tầng, bãi đỗ xe nhiều tầng hoặc trung tâm thương mại lớn.
Ưu điểm:
- Khả năng vận hành mạnh mẽ, tải trọng lớn
- Phù hợp với các công trình cao tầng
- Tốc độ di chuyển nhanh và hiệu suất cao
Nhược điểm:
- Cần bảo trì định kỳ để đảm bảo độ bền hệ thống
- Chi phí đầu tư và lắp đặt cao hơn
Đối với hệ thống này, việc thiết kế kích thước thang máy tải ô tô cần được tính toán kỹ lưỡng từ giai đoạn xây dựng để đảm bảo đủ không gian cho cabin, xe ô tô và hệ thống kỹ thuật vận hành an toàn.
Đặc điểm thiết kế cửa thang máy tải ô tô
Cửa thang máy tải ô tô cần đặc biệt chú ý vì phải tạo điều kiện cho xe di chuyển dễ dàng mà không gây cấn, trầy xước.
- Hướng mở cửa: Tùy theo mục đích sử dụng, có thể là mở ra phía trong hoặc phía ngoài.
- Kích thước: Phải đủ lớn để xe có thể đi qua một cách thuận tiện. Thông thường, kích thước cửa rộng trung bình từ 2,2m đến 2,7m.
- Chống va đập: Bề mặt cửa cần chắc chắn, có khả năng chịu lực tốt và trang bị các cảm biến an toàn.
Ưu điểm và nhược điểm của thang máy tải xe hơi

Ưu điểm:
- Tiết kiệm không gian, định hướng di chuyển xe rõ ràng, chính xác.
- Đảm bảo an toàn trong quá trình vận chuyển xe.
- Tối ưu khả năng sắp xếp không gian trong các dự án cao tầng.
- Tiện lợi, giảm thiểu công sức nhân viên trong việc chuyển xe thủ công.
Nhược điểm:
- Chi phí đầu tư ban đầu cao, đặc biệt là các dòng thang máy lớn.
- Yêu cầu về kỹ thuật thi công phức tạp và cần có đội ngũ bảo trì chuyên nghiệp.
- Phụ thuộc vào các tiêu chuẩn kỹ thuật, nếu không chọn đúng kích thước sẽ gây ra các vấn đề vận hành.
Báo giá lắp đặt thang máy tải ô tô dựa trên kích thước thực tế
Chi phí lắp đặt thang máy vận chuyển ô tô phụ thuộc vào nhiều yếu tố như tải trọng, công nghệ truyền động, thiết kế cabin và đặc biệt là kích thước thang máy tải ô tô. Mỗi công trình sẽ có yêu cầu kỹ thuật khác nhau nên mức giá cũng có sự chênh lệch. Trên thị trường hiện nay, giá lắp đặt thang máy tải ô tô thường dao động từ khoảng 1 tỷ đến hơn 3 tỷ đồng tùy theo quy mô và cấu hình hệ thống.
Việc lựa chọn kích thước thang máy tải ô tô phù hợp với loại xe và không gian công trình sẽ giúp tối ưu chi phí đầu tư, đồng thời đảm bảo hệ thống vận hành ổn định, an toàn trong quá trình sử dụng.
| Loại kích thước thang máy | Phù hợp loại xe | Mức giá tham khảo |
|---|---|---|
| Kích thước nhỏ | Xe du lịch 4 – 7 chỗ | Khoảng 1,2 – 1,8 tỷ đồng |
| Kích thước trung bình | Xe SUV, Crossover, xe bán tải | Khoảng 1,8 – 2,5 tỷ đồng |
| Kích thước lớn | Xe thương mại, xe tải nhỏ | Khoảng 2,5 – 3 tỷ đồng |
Trên thực tế, để xác định chính xác chi phí lắp đặt, đơn vị thi công cần khảo sát công trình và tính toán kích thước thang máy tải ô tô dựa trên tải trọng xe, chiều cao công trình và diện tích hố thang. Điều này giúp đảm bảo thiết kế tối ưu, tránh phát sinh chi phí và nâng cao hiệu quả sử dụng lâu dài.
Những lưu ý kỹ thuật khi thi công hố thang máy ô tô
Việc thi công hố thang đúng kỹ thuật là yếu tố quyết định đến độ bền và an toàn của hệ thống:
- Độ sâu PIT phù hợp với chiều cao cabin và thiết kế hệ thống treo.
- Đảm bảo cấu trúc chắc chắn, chống chịu lực tác dụng lớn.
- Lắp đặt hệ thống thoát nước, chống thấm, chống rỉ sét.
- Tham khảo chuyên gia để xác định vị trí lắp đặt phù hợp, tránh sai lệch trong quá trình thi công.
- Đảm bảo đủ không gian xung quanh hố thang cho việc bảo trì, sửa chữa.
Thang Máy Gia Định – Đơn vị tư vấn kích thước và lắp đặt thang máy ô tô uy tín

Thang Máy Gia Định là một trong những đơn vị uy tín trong lĩnh vực tư vấn, cung cấp và thi công thang máy vận chuyển ô tô tại Việt Nam. Với nhiều năm kinh nghiệm cùng đội ngũ kỹ thuật chuyên môn cao, công ty luôn đưa ra giải pháp thiết kế kích thước thang máy tải ô tô phù hợp với từng loại công trình như gara ô tô, tòa nhà cao tầng, trung tâm thương mại hay bãi đỗ xe nhiều tầng.
Khi lựa chọn Thang Máy Gia Định, khách hàng sẽ được tư vấn chi tiết về kích thước thang máy tải ô tô, tải trọng, cấu trúc hố thang và các tiêu chuẩn kỹ thuật cần thiết. Nhờ đó, hệ thống thang máy không chỉ đảm bảo vận hành an toàn, ổn định mà còn tối ưu diện tích xây dựng và chi phí đầu tư.
Bên cạnh đó, đơn vị còn chú trọng quy trình thi công chuyên nghiệp, kiểm tra kỹ thuật nghiêm ngặt và hỗ trợ bảo trì lâu dài. Điều này giúp công trình vận hành bền bỉ, đáp ứng các tiêu chuẩn an toàn và mang lại hiệu quả sử dụng tối ưu cho chủ đầu tư.
Câu hỏi thường gặp về kích thước thang máy ô tô
Xe 7 chỗ cần thang máy kích thước bao nhiêu?
Đối với các dòng xe 7 chỗ phổ biến hiện nay, kích thước thang máy tải ô tô cần đảm bảo đủ không gian để xe ra vào thuận tiện và an toàn. Thông thường, cabin thang máy sẽ có kích thước khoảng 4.8m – 5.0m chiều dài, 2.1m – 2.2m chiều rộng và 2.0m – 2.1m chiều cao.
Ngoài ra, cửa thang máy nên thiết kế rộng từ 2.2m – 2.4m để xe dễ dàng di chuyển vào và ra mà không gặp khó khăn, đặc biệt với các dòng SUV hoặc MPV cỡ lớn.
Hố PIT thang máy ô tô sâu bao nhiêu là đạt chuẩn?
Chiều sâu hố PIT của thang máy tải ô tô thường dao động từ 1.2m đến 1.5m, tùy theo thiết kế cabin và hệ thống truyền động của thang.
Việc thiết kế PIT đạt chuẩn không chỉ giúp thang máy vận hành ổn định mà còn đảm bảo xe lên xuống thuận lợi, hạn chế tình trạng va chạm hoặc cấn gầm khi di chuyển vào cabin. Vì vậy, khi thiết kế kích thước thang máy tải ô tô, phần hố PIT cần được tính toán kỹ lưỡng ngay từ giai đoạn xây dựng.
Có lắp được thang máy ô tô cho nhà phố diện tích hẹp không?
Với các công trình nhà phố có diện tích hạn chế, vẫn hoàn toàn có thể lắp đặt thang máy tải ô tô nếu lựa chọn kích thước phù hợp. Hiện nay, nhiều đơn vị sản xuất đã phát triển các mẫu thang máy ô tô mini hoặc thang máy tải ô tô thiết kế nhỏ gọn, giúp tối ưu không gian mà vẫn đảm bảo khả năng vận chuyển xe hiệu quả.
Việc tính toán chính xác kích thước thang máy tải ô tô ngay từ đầu sẽ giúp chủ đầu tư tiết kiệm diện tích xây dựng, đồng thời đảm bảo thang máy vận hành an toàn và bền bỉ trong quá trình sử dụng.
Kết luận
Việc lựa chọn kích thước thang máy tải ô tô phù hợp giúp đảm bảo vận hành an toàn, hiệu quả và tối ưu chi phí trong các công trình xây dựng. Hiểu rõ các thông số kỹ thuật, tiêu chuẩn và nhu cầu sử dụng sẽ giúp chủ đầu tư dễ dàng đưa ra quyết định đúng đắn. Đồng thời, hợp tác với đơn vị cung cấp uy tín sẽ đảm bảo quá trình tư vấn, lắp đặt và bảo trì thang máy diễn ra chuyên nghiệp, ổn định và lâu dài.