Bài viết này sẽ cung cấp thông tin chi tiết về nhu cầu lắp đặt thang máy Thái Bình, các dòng thang máy phổ biến, thông số kỹ thuật, báo giá, quy trình thi công và những lưu ý quan trọng để bạn có thể đưa ra quyết định sáng suốt nhất.
Nhu cầu lắp đặt thang máy tại Thái Bình hiện nay
Thái Bình, một tỉnh thuộc vùng đồng bằng sông Hồng, đang trải qua giai đoạn phát triển kinh tế và đô thị hóa mạnh mẽ. Sự tăng trưởng này kéo theo nhu cầu xây dựng nhà ở, văn phòng, khách sạn và các công trình công cộng ngày càng tăng cao. Đi cùng với đó, nhu cầu lắp đặt thang máy tại Thái Bình cũng trở nên cấp thiết, không chỉ để phục vụ nhu cầu di chuyển mà còn nâng cao chất lượng cuộc sống và giá trị bất động sản.
- Sự gia tăng các công trình cao tầng: Với quỹ đất ngày càng hạn hẹp, việc xây dựng các công trình cao tầng là xu hướng tất yếu. Điều này tạo ra nhu cầu lớn về thang máy để đảm bảo khả năng di chuyển thuận tiện và nhanh chóng cho người sử dụng. Các tòa nhà văn phòng, chung cư, trung tâm thương mại và khách sạn đều cần đến thang máy để đáp ứng nhu cầu đi lại của nhân viên, cư dân và khách hàng.
- Nâng cao chất lượng cuộc sống: Thang máy không chỉ là phương tiện di chuyển mà còn là yếu tố quan trọng giúp nâng cao chất lượng cuộc sống. Đối với người già, người khuyết tật, phụ nữ mang thai và trẻ em, thang máy giúp họ dễ dàng tiếp cận các tầng cao của tòa nhà, tham gia các hoạt động xã hội và tận hưởng cuộc sống một cách trọn vẹn.
- Tăng giá trị bất động sản: Một căn nhà hoặc tòa nhà được trang bị thang máy sẽ có giá trị cao hơn so với những công trình không có. Thang máy không chỉ mang lại sự tiện nghi mà còn thể hiện sự hiện đại, sang trọng và đẳng cấp của công trình. Điều này đặc biệt quan trọng đối với các dự án bất động sản cao cấp, nơi mà khách hàng sẵn sàng chi trả nhiều hơn để sở hữu những tiện ích tốt nhất.
- Đáp ứng nhu cầu của người cao tuổi: Thái Bình là một tỉnh có tỷ lệ người cao tuổi khá cao. Việc lắp đặt thang máy trong nhà ở hoặc các khu dân cư là một giải pháp thiết thực để giúp người cao tuổi dễ dàng di chuyển, giảm nguy cơ té ngã và duy trì sức khỏe.

Các dòng thang máy phổ biến nhất tại thị trường Thái Bình
Thị trường thang máy tại Thái Bình hiện nay rất đa dạng với nhiều dòng sản phẩm khác nhau, đáp ứng nhu cầu của nhiều đối tượng khách hàng. Dưới đây là một số dòng thang máy phổ biến nhất:
Thang máy gia đình liên doanh (Tiết kiệm chi phí)
Thang máy gia đình liên doanh là lựa chọn phổ biến tại Thái Bình nhờ sự cân bằng giữa chất lượng và giá cả. Dòng thang máy này thường sử dụng các linh kiện chính như động cơ, hệ điều khiển, rail dẫn hướng từ các thương hiệu nổi tiếng thế giới như Mitsubishi, Fuji, Schneider… được nhập khẩu và lắp ráp tại Việt Nam. Điều này giúp giảm chi phí sản xuất và vận chuyển, từ đó hạ giá thành sản phẩm.
- Ưu điểm về giá thành: So với thang máy nhập khẩu nguyên chiếc, thang máy liên doanh có giá thành thấp hơn đáng kể, phù hợp với điều kiện kinh tế của nhiều gia đình Việt Nam. Điều này giúp các gia đình có thể dễ dàng tiếp cận với tiện ích thang máy mà không phải lo lắng về vấn đề tài chính.
- Linh hoạt trong thiết kế: Thang máy liên doanh có thể được thiết kế theo yêu cầu của khách hàng, phù hợp với kiến trúc và không gian của ngôi nhà. Khách hàng có thể lựa chọn kích thước, tải trọng, kiểu dáng, màu sắc và các опции khác để tạo ra một chiếc thang máy độc đáo và phù hợp với sở thích cá nhân.
- Dễ dàng bảo trì, bảo dưỡng: Do được sản xuất và lắp ráp trong nước, thang máy liên doanh có nguồn cung cấp phụ tùng thay thế dồi dào và dễ dàng tìm kiếm. Điều này giúp việc bảo trì, bảo dưỡng thang máy trở nên đơn giản và nhanh chóng hơn, giảm thiểu thời gian ngừng hoạt động và chi phí sửa chữa.
- Phù hợp với nhà cải tạo: Thang máy liên doanh thường có kích thước nhỏ gọn, phù hợp với các công trình cải tạo. Điều này giúp các gia đình có thể lắp đặt thang máy trong những ngôi nhà đã xây dựng mà không cần phải phá dỡ hoặc sửa chữa quá nhiều.

Thang máy kính quan sát (Nâng tầm thẩm mỹ biệt thự)
Thang máy kính quan sát không chỉ là phương tiện di chuyển mà còn là điểm nhấn kiến trúc độc đáo, mang lại vẻ đẹp sang trọng và hiện đại cho ngôi nhà. Với vách kính trong suốt, thang máy kính quan sát cho phép người sử dụng chiêm ngưỡng toàn cảnh không gian xung quanh, tạo cảm giác thoải mái và thư giãn trong quá trình di chuyển.
- Tính thẩm mỹ cao: Thang máy kính quan sát được thiết kế với kiểu dáng hiện đại, tinh tế, phù hợp với nhiều phong cách kiến trúc khác nhau. Vách kính trong suốt giúp thang máy hòa nhập vào không gian xung quanh, tạo cảm giác rộng rãi và thoáng đãng cho ngôi nhà.
- Tận dụng ánh sáng tự nhiên: Vách kính trong suốt cho phép ánh sáng tự nhiên chiếu vào bên trong cabin, tạo không gian sáng sủa và ấm cúng. Điều này giúp tiết kiệm năng lượng điện và mang lại cảm giác gần gũi với thiên nhiên.
- Tăng giá trị bất động sản: Một ngôi nhà được trang bị thang máy kính quan sát sẽ có giá trị cao hơn so với những ngôi nhà không có. Thang máy kính quan sát thể hiện sự sang trọng, đẳng cấp và tiện nghi của ngôi nhà, thu hút sự quan tâm của những khách hàng tiềm năng.
- Thích hợp cho nhiều loại công trình: Thang máy kính quan sát có thể được lắp đặt trong nhiều loại công trình khác nhau, từ nhà ở gia đình, biệt thự, penthouse đến các tòa nhà văn phòng, trung tâm thương mại, khách sạn cao cấp.

Thang máy tải khách cho khách sạn, nhà hàng tại Thái Bình
Trong lĩnh vực khách sạn và nhà hàng tại Thái Bình, thang máy tải khách đóng vai trò quan trọng trong việc đảm bảo sự tiện lợi và thoải mái cho khách hàng. Thang máy không chỉ giúp khách hàng di chuyển dễ dàng giữa các tầng mà còn thể hiện sự chuyên nghiệp và đẳng cấp của cơ sở kinh doanh.
- Đảm bảo sự tiện lợi cho khách hàng: Thang máy giúp khách hàng, đặc biệt là người già, người khuyết tật và phụ nữ mang thai, dễ dàng di chuyển giữa các tầng của khách sạn hoặc nhà hàng. Điều này tạo sự thoải mái và tiện lợi cho khách hàng, giúp họ có trải nghiệm tốt hơn tại cơ sở kinh doanh.
- Nâng cao hình ảnh chuyên nghiệp: Một khách sạn hoặc nhà hàng được trang bị thang máy hiện đại và hoạt động ổn định sẽ tạo ấn tượng tốt với khách hàng. Điều này thể hiện sự chuyên nghiệp, chu đáo và quan tâm đến khách hàng của cơ sở kinh doanh.
- Tăng khả năng phục vụ: Thang máy giúp nhân viên phục vụ có thể di chuyển nhanh chóng giữa các tầng, từ đó tăng khả năng phục vụ và đáp ứng nhu cầu của khách hàng một cách hiệu quả hơn.
- Lựa chọn thang máy phù hợp: Khi lựa chọn thang máy tải khách cho khách sạn hoặc nhà hàng, cần chú ý đến các yếu tố như tải trọng, tốc độ, kích thước cabin và các tính năng an toàn. Nên lựa chọn các thương hiệu thang máy uy tín và có kinh nghiệm trong lĩnh vực này để đảm bảo chất lượng và độ bền của sản phẩm.

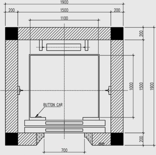
Thông số kỹ thuật và kích thước thang máy tiêu chuẩn
Việc hiểu rõ các thông số kỹ thuật và kích thước thang máy tiêu chuẩn là vô cùng quan trọng để đảm bảo quá trình lắp đặt diễn ra suôn sẻ và thang máy hoạt động hiệu quả. Các thông số này ảnh hưởng trực tiếp đến khả năng vận hành, độ an toàn và tuổi thọ của thang máy.
- Tải trọng: Tải trọng là khả năng chịu tải tối đa của thang máy, được tính bằng kg. Tải trọng cần được lựa chọn phù hợp với số lượng người sử dụng và mục đích sử dụng của thang máy.
- Tốc độ: Tốc độ là vận tốc di chuyển của thang máy, được tính bằng mét/giây (m/s). Tốc độ cần được lựa chọn phù hợp với chiều cao của tòa nhà và thời gian chờ đợi của người sử dụng.
- Kích thước cabin: Kích thước cabin là kích thước bên trong của cabin thang máy, được tính bằng chiều rộng, chiều sâu và chiều cao. Kích thước cabin cần được lựa chọn phù hợp với số lượng người sử dụng và mục đích sử dụng của thang máy.
- Kích thước hố thang: Kích thước hố thang là kích thước của không gian dành cho việc lắp đặt thang máy, bao gồm chiều rộng, chiều sâu và chiều cao. Kích thước hố thang cần được thiết kế và xây dựng chính xác để đảm bảo thang máy hoạt động an toàn và hiệu quả.
- Chiều cao OH (Overhead): Chiều cao OH là khoảng cách từ mặt sàn tầng trên cùng đến đỉnh hố thang. Chiều cao OH cần đáp ứng các tiêu chuẩn an toàn để đảm bảo không gian cho các thiết bị và hệ thống của thang máy.

Kích thước hố thang máy cho nhà diện tích nhỏ (250kg – 350kg)
Đối với những ngôi nhà có diện tích nhỏ, việc lựa chọn kích thước hố thang máy phù hợp là vô cùng quan trọng để tối ưu hóa không gian và đảm bảo tính thẩm mỹ cho ngôi nhà. Thang máy có tải trọng từ 250kg đến 350kg là lựa chọn phổ biến cho các gia đình có từ 2 đến 4 người sử dụng.
- Kích thước hố thang tối thiểu: Kích thước hố thang tối thiểu cho thang máy 250kg thường là 1300mm (rộng) x 1300mm (sâu). Kích thước hố thang tối thiểu cho thang máy 350kg thường là 1400mm (rộng) x 1400mm (sâu). Tuy nhiên, kích thước này có thể thay đổi tùy thuộc vào từng nhà sản xuất và kiểu dáng thang máy.
- Lựa chọn thang máy không phòng máy: Thang máy không phòng máy là lựa chọn phù hợp cho những ngôi nhà có diện tích nhỏ vì không cần xây dựng phòng máy riêng, giúp tiết kiệm không gian và giảm chi phí xây dựng.
- Tận dụng không gian: Khi thiết kế hố thang máy cho nhà diện tích nhỏ, cần tận dụng tối đa không gian và hạn chế các chi tiết thừa. Có thể sử dụng các vật liệu nhẹ, có độ bền cao để giảm tải trọng cho công trình.
- Tham khảo ý kiến chuyên gia: Để đảm bảo lựa chọn được kích thước hố thang máy phù hợp nhất, nên tham khảo ý kiến của các chuyên gia tư vấn thang máy. Họ sẽ giúp bạn đánh giá không gian, đưa ra các giải pháp tối ưu và đảm bảo quá trình lắp đặt diễn ra an toàn và hiệu quả.

Yêu cầu về hố PIT và chiều cao OH (Overhead)
Hố PIT và chiều cao OH là hai yếu tố quan trọng trong thiết kế và xây dựng hố thang máy. Việc đảm bảo các yêu cầu về hố PIT và chiều cao OH không chỉ đảm bảo an toàn cho người sử dụng mà còn đảm bảo thang máy hoạt động ổn định và hiệu quả.
- Hố PIT: Hố PIT là phần hố nằm dưới đáy hố thang, có chức năng chứa các thiết bị an toàn như giảm chấn, công tắc hành trình và hệ thống thoát nước. Độ sâu của hố PIT thường dao động từ 1200mm đến 1400mm, tùy thuộc vào tải trọng và tốc độ của thang máy. Hố PIT cần được xây dựng chắc chắn, chống thấm nước và có hệ thống thoát nước hiệu quả để đảm bảo các thiết bị bên trong luôn khô ráo.
- Chiều cao OH (Overhead): Chiều cao OH là khoảng cách từ mặt sàn tầng trên cùng đến đỉnh hố thang. Chiều cao OH cần đảm bảo đủ không gian cho các thiết bị như động cơ, tủ điện và hệ thống phanh an toàn. Chiều cao OH thường dao động từ 4200mm đến 4500mm, tùy thuộc vào tải trọng và tốc độ của thang máy.
- Tuân thủ tiêu chuẩn: Khi thiết kế và xây dựng hố PIT và chiều cao OH, cần tuân thủ các tiêu chuẩn an toàn thang máy của Việt Nam (TCVN) và quốc tế (EN). Việc tuân thủ các tiêu chuẩn này sẽ đảm bảo thang máy hoạt động an toàn và hiệu quả, giảm thiểu nguy cơ tai nạn và sự cố.
- Kiểm tra kỹ lưỡng: Sau khi xây dựng xong hố PIT và chiều cao OH, cần kiểm tra kỹ lưỡng để đảm bảo các kích thước và thông số kỹ thuật đáp ứng yêu cầu. Nếu phát hiện sai sót, cần khắc phục ngay để tránh ảnh hưởng đến quá trình lắp đặt và vận hành thang máy.

Báo giá lắp đặt thang máy Thái Bình mới nhất 2026
Giá lắp đặt thang máy tại Thái Bình năm 2026 phụ thuộc vào nhiều yếu tố, bao gồm loại thang máy, tải trọng, số tầng phục vụ, thương hiệu, xuất xứ linh kiện và các опции khác. Để có được báo giá chính xác nhất, bạn nên liên hệ trực tiếp với các công ty cung cấp thang máy uy tín tại Thái Bình để được tư vấn và khảo sát công trình.
- Thang máy gia đình: Giá thang máy gia đình liên doanh (250kg – 350kg) thường dao động từ 280 triệu đến 450 triệu đồng, tùy thuộc vào số tầng và các опции khác. Giá thang máy gia đình nhập khẩu nguyên chiếc có thể cao hơn, từ 600 triệu đến 1 tỷ đồng.
- Thang máy tải khách: Giá thang máy tải khách (450kg – 1000kg) thường dao động từ 450 triệu đến 800 triệu đồng, tùy thuộc vào số tầng, tốc độ và các опции khác.
- Chi phí phát sinh: Ngoài chi phí lắp đặt thang máy, bạn cần dự trù thêm các chi phí phát sinh như chi phí xây dựng hố thang (nếu chưa có), chi phí xin phép lắp đặt, chi phí bảo trì, bảo dưỡng định kỳ và chi phí điện năng tiêu thụ.
- So sánh báo giá: Để lựa chọn được đơn vị cung cấp thang máy uy tín với giá cả hợp lý, bạn nên yêu cầu báo giá từ nhiều công ty khác nhau và so sánh kỹ lưỡng các thông số kỹ thuật, chính sách bảo hành, bảo trì và dịch vụ hậu mãi.
Ưu điểm khi lựa chọn Thang Máy Gia Định thi công tại Thái Bình
Thang Máy Gia Định là một trong những đơn vị hàng đầu trong lĩnh vực cung cấp và lắp đặt thang máy tại Việt Nam. Với nhiều năm kinh nghiệm và đội ngũ kỹ thuật viên lành nghề, Thang Máy Gia Định cam kết mang đến cho khách hàng tại Thái Bình những sản phẩm và dịch vụ chất lượng cao nhất.
- Sản phẩm chất lượng: Thang Máy Gia Định cung cấp các dòng thang máy chính hãng từ các thương hiệu nổi tiếng trên thế giới, đảm bảo chất lượng, độ bền và an toàn tuyệt đối.
- Giá cả cạnh tranh: Thang Máy Gia Định luôn nỗ lực tối ưu hóa chi phí để mang đến cho khách hàng những sản phẩm với giá cả cạnh tranh nhất trên thị trường.
- Dịch vụ chuyên nghiệp: Thang Máy Gia Định có đội ngũ kỹ thuật viên giàu kinh nghiệm, được đào tạo bài bản, sẵn sàng tư vấn, thiết kế, lắp đặt, bảo trì và sửa chữa thang máy một cách nhanh chóng và chuyên nghiệp.
- Bảo hành, bảo trì uy tín: Thang Máy Gia Định cam kết bảo hành, bảo trì thang máy theo đúng quy định của nhà sản xuất, đảm bảo thang máy hoạt động ổn định và hiệu quả trong suốt quá trình sử dụng.
- Uy tín và kinh nghiệm: Thang Máy Gia Định đã thực hiện nhiều dự án lắp đặt thang máy thành công tại Thái Bình và các tỉnh thành khác trên cả nước, được khách hàng tin tưởng và đánh giá cao.
Quy trình thi công và lưu ý kỹ thuật an toàn
Quy trình thi công thang máy là một quá trình phức tạp, đòi hỏi sự chính xác và tuân thủ nghiêm ngặt các quy định an toàn. Việc thực hiện đúng quy trình và lưu ý các vấn đề kỹ thuật sẽ đảm bảo thang máy hoạt động ổn định, an toàn và hiệu quả.
- Khảo sát và thiết kế: Bước đầu tiên là khảo sát công trình và thiết kế hố thang máy phù hợp với không gian và yêu cầu của khách hàng.
- Chuẩn bị hố thang: Sau khi thiết kế xong, cần chuẩn bị hố thang theo đúng bản vẽ, đảm bảo kích thước, độ sâu và độ thẳng đứng của hố thang đạt tiêu chuẩn.
- Lắp đặt thiết bị: Tiếp theo là lắp đặt các thiết bị thang máy như ray dẫn hướng, khung cabin, máy kéo, tủ điện và hệ thống điều khiển.
- Kiểm tra và vận hành thử: Sau khi lắp đặt xong, cần kiểm tra kỹ lưỡng tất cả các thiết bị và hệ thống của thang máy, sau đó tiến hành vận hành thử để đảm bảo thang máy hoạt động ổn định và an toàn.
- Nghiệm thu và bàn giao: Cuối cùng là nghiệm thu và bàn giao thang máy cho khách hàng.

Các tiêu chuẩn an toàn thang máy Việt Nam
Việc tuân thủ các tiêu chuẩn an toàn thang máy Việt Nam (TCVN) là bắt buộc đối với tất cả các công trình lắp đặt thang máy. Các tiêu chuẩn này nhằm đảm bảo an toàn cho người sử dụng và phòng ngừa các rủi ro có thể xảy ra trong quá trình vận hành thang máy.
- TCVN 6395:2008: Tiêu chuẩn về an toàn thang máy điện.
- TCVN 6396-2:2010: Tiêu chuẩn về an toàn thang cuốn và băng tải hành khách.
- TCVN 6904:2001: Tiêu chuẩn về lắp đặt và sử dụng thang máy gia đình.
- TCVN 7628:2007: Tiêu chuẩn về bảo trì và sửa chữa thang máy.
- TCVN 9383:2012: Tiêu chuẩn về thiết kế kết cấu chịu lực của thang máy.
Chế độ bảo trì, bảo dưỡng định kỳ 24/7
Bảo trì, bảo dưỡng định kỳ là việc làm cần thiết để đảm bảo thang máy hoạt động ổn định, an toàn và kéo dài tuổi thọ. Thang Máy Gia Định cung cấp chế độ bảo trì, bảo dưỡng định kỳ 24/7, đảm bảo khách hàng luôn được hỗ trợ kịp thời khi có sự cố xảy ra.
- Kiểm tra định kỳ: Kỹ thuật viên sẽ thực hiện kiểm tra định kỳ các thiết bị và hệ thống của thang máy, phát hiện và khắc phục kịp thời các lỗi nhỏ để tránh gây ra các sự cố lớn.
- Vệ sinh và bôi trơn: Vệ sinh và bôi trơn các bộ phận chuyển động của thang máy để đảm bảo hoạt động trơn tru và giảm thiểu hao mòn.
- Sửa chữa và thay thế: Sửa chữa và thay thế các thiết bị hư hỏng để đảm bảo thang máy hoạt động an toàn và hiệu quả.
- Hỗ trợ 24/7: Thang Máy Gia Định cung cấp dịch vụ hỗ trợ 24/7, sẵn sàng giải đáp mọi thắc mắc và xử lý sự cố của khách hàng một cách nhanh chóng và chuyên nghiệp.
Câu hỏi thường gặp
Dưới đây là một số câu hỏi thường gặp về việc lắp đặt thang máy tại Thái Bình:
Thời gian thi công thang máy tại Thái Bình mất bao lâu?
Thời gian thi công thang máy phụ thuộc vào nhiều yếu tố, bao gồm loại thang máy, số tầng phục vụ, điều kiện thi công và năng lực của đơn vị thi công. Thông thường, thời gian thi công thang máy gia đình liên doanh mất khoảng 45-60 ngày, thang máy tải khách mất khoảng 60-90 ngày.
Chi phí vận hành hàng tháng có đắt không?
Chi phí vận hành thang máy hàng tháng bao gồm chi phí điện năng tiêu thụ và chi phí bảo trì, bảo dưỡng. Chi phí điện năng tiêu thụ phụ thuộc vào tần suất sử dụng thang máy và công suất của động cơ. Chi phí bảo trì, bảo dưỡng thường dao động từ 500.000 VNĐ đến 1.500.000 VNĐ/tháng, tùy thuộc vào loại thang máy và gói dịch vụ bảo trì.
Kết luận
Trong bối cảnh phát triển mạnh mẽ của Thái Bình, nhu cầu lắp đặt thang máy Thái Bình ngày càng trở nên quan trọng. Việc lựa chọn đúng dòng thang máy, đảm bảo các tiêu chuẩn kỹ thuật và an toàn, cùng với dịch vụ bảo trì chuyên nghiệp sẽ mang lại sự tiện nghi, an toàn và giá trị lâu dài cho công trình của bạn. Hãy liên hệ với các đơn vị cung cấp thang máy uy tín để được tư vấn và hỗ trợ tốt nhất.