Bài viết này cung cấp thông tin chi tiết về nhu cầu lắp đặt thang máy hóc môn, các loại thang máy phổ biến, thông số kỹ thuật, báo giá và quy trình thi công thang máy tại khu vực Hóc Môn.
Nhu cầu lắp đặt thang máy tại huyện Hóc Môn hiện nay
Huyện Hóc Môn, với sự phát triển kinh tế và đô thị hóa nhanh chóng, đang chứng kiến sự gia tăng đáng kể về nhu cầu lắp đặt thang máy. Không chỉ các công trình cao tầng, trung tâm thương mại, mà ngay cả các hộ gia đình cũng ngày càng quan tâm đến việc tích hợp thang máy vào không gian sống của mình. Sự thay đổi này xuất phát từ nhiều yếu tố, từ việc nâng cao chất lượng cuộc sống, đáp ứng nhu cầu di chuyển của người lớn tuổi và người khuyết tật, cho đến việc tăng giá trị bất động sản.
Trước đây, thang máy thường được xem là một tiện nghi xa xỉ, chỉ dành cho các tòa nhà cao tầng hoặc các công trình công cộng. Tuy nhiên, với sự phát triển của công nghệ và sự đa dạng về mẫu mã, kích thước, thang máy gia đình ngày càng trở nên phổ biến và dễ tiếp cận hơn. Nhiều gia đình tại Hóc Môn, đặc biệt là những gia đình có người già, trẻ nhỏ hoặc người khuyết tật, đã nhận ra những lợi ích thiết thực mà thang máy mang lại. Nó không chỉ giúp việc di chuyển giữa các tầng trở nên dễ dàng hơn mà còn đảm bảo an toàn, giảm thiểu nguy cơ tai nạn, đặc biệt là đối với người lớn tuổi.

Bên cạnh đó, sự phát triển của các khu dân cư mới, các dự án nhà phố, biệt thự tại Hóc Môn cũng góp phần thúc đẩy nhu cầu lắp đặt thang máy. Các chủ đầu tư và người mua nhà ngày càng chú trọng đến việc tích hợp các tiện ích hiện đại vào không gian sống, và thang máy là một trong những yếu tố quan trọng giúp tăng tính cạnh tranh và giá trị của bất động sản. Một căn nhà được trang bị thang máy không chỉ mang lại sự tiện nghi mà còn thể hiện đẳng cấp và phong cách sống của gia chủ.
Ngoài ra, sự phát triển của các loại hình kinh doanh như nhà cho thuê, căn hộ dịch vụ tại Hóc Môn cũng tạo ra nhu cầu lắp đặt thang máy. Việc trang bị thang máy giúp thu hút khách hàng, nâng cao chất lượng dịch vụ và tăng khả năng cạnh tranh trên thị trường. Khách hàng ngày nay ngày càng khắt khe hơn trong việc lựa chọn nơi ở, và một căn hộ dịch vụ có thang máy chắc chắn sẽ là một lợi thế lớn so với các đối thủ cạnh tranh.
Tóm lại, nhu cầu lắp đặt thang máy Hóc Môn đang ngày càng gia tăng do sự phát triển kinh tế, đô thị hóa, nhu cầu nâng cao chất lượng cuộc sống và sự phát triển của các loại hình kinh doanh. Thang máy không chỉ là một phương tiện di chuyển mà còn là một yếu tố quan trọng giúp tăng giá trị bất động sản và nâng cao chất lượng cuộc sống cho người dân Hóc Môn.
Các dòng thang máy được ưa chuộng nhất tại Hóc Môn
Thị trường thang máy tại Hóc Môn hiện nay rất đa dạng với nhiều dòng sản phẩm khác nhau, đáp ứng nhu cầu của nhiều đối tượng khách hàng. Tuy nhiên, có một số dòng thang máy đặc biệt được ưa chuộng bởi tính năng ưu việt, thiết kế hiện đại và khả năng phù hợp với nhiều loại công trình.
Thang máy gia đình liên doanh
Thang máy gia đình liên doanh là một trong những lựa chọn phổ biến nhất tại Hóc Môn. Loại thang máy này được sản xuất dựa trên sự hợp tác giữa các công ty trong nước và các tập đoàn thang máy nổi tiếng trên thế giới. Ưu điểm của thang máy liên doanh là sự kết hợp giữa công nghệ tiên tiến của nước ngoài và chi phí sản xuất hợp lý của Việt Nam, giúp mang lại một sản phẩm chất lượng với giá thành cạnh tranh.

Thang máy gia đình liên doanh thường được trang bị các tính năng an toàn hiện đại như hệ thống cứu hộ tự động, hệ thống báo động khẩn cấp, hệ thống chống kẹt cửa… Thiết kế của thang máy cũng rất đa dạng, từ phong cách cổ điển đến hiện đại, phù hợp với nhiều kiểu kiến trúc khác nhau. Khách hàng có thể lựa chọn kích thước, tải trọng, vật liệu và màu sắc theo sở thích và nhu cầu sử dụng của gia đình.
Một ưu điểm khác của thang máy liên doanh là dịch vụ bảo trì, bảo dưỡng dễ dàng và nhanh chóng. Các công ty thang máy liên doanh thường có đội ngũ kỹ thuật viên chuyên nghiệp, am hiểu về sản phẩm và sẵn sàng hỗ trợ khách hàng trong quá trình sử dụng. Việc thay thế linh kiện cũng dễ dàng hơn so với thang máy nhập khẩu nguyên chiếc, giúp giảm thiểu thời gian chờ đợi và chi phí sửa chữa.
Tuy nhiên, thang máy liên doanh cũng có một số hạn chế nhất định. Mặc dù được sản xuất theo công nghệ tiên tiến, nhưng một số linh kiện có thể không đạt chất lượng tương đương với thang máy nhập khẩu nguyên chiếc. Ngoài ra, thiết kế của thang máy liên doanh có thể không đa dạng bằng thang máy nhập khẩu, và khách hàng có thể bị hạn chế trong việc lựa chọn các tùy chọn cá nhân hóa.
Nhìn chung, thang máy gia đình liên doanh là một lựa chọn hợp lý cho những gia đình tại Hóc Môn muốn sở hữu một chiếc thang máy chất lượng với giá cả phải chăng. Sự kết hợp giữa công nghệ tiên tiến, tính năng an toàn và dịch vụ bảo trì dễ dàng đã giúp thang máy liên doanh trở thành một trong những dòng sản phẩm được ưa chuộng nhất trên thị trường.
Thang máy kính quan sát
Thang máy kính quan sát là một lựa chọn tuyệt vời cho những ngôi nhà có thiết kế hiện đại và muốn tận dụng tối đa ánh sáng tự nhiên. Loại thang máy này có vách cabin được làm bằng kính cường lực trong suốt, giúp hành khách có thể ngắm nhìn khung cảnh xung quanh trong quá trình di chuyển. Thang máy kính quan sát không chỉ là một phương tiện di chuyển mà còn là một điểm nhấn kiến trúc độc đáo, giúp tăng tính thẩm mỹ và giá trị của ngôi nhà.

Ưu điểm lớn nhất của thang máy kính quan sát là khả năng tạo không gian mở và thoáng đãng. Ánh sáng tự nhiên có thể dễ dàng lọt vào cabin, giúp hành khách cảm thấy thoải mái và dễ chịu hơn. Đặc biệt, thang máy kính quan sát rất phù hợp với những ngôi nhà có view đẹp, như nhìn ra vườn, hồ bơi hoặc cảnh quan thành phố.
Ngoài ra, thang máy kính quan sát còn giúp tăng tính an toàn cho người sử dụng. Với vách cabin trong suốt, người bên ngoài có thể dễ dàng quan sát bên trong, giúp phát hiện và xử lý kịp thời các tình huống khẩn cấp. Thang máy kính quan sát cũng thường được trang bị các tính năng an toàn hiện đại như hệ thống cứu hộ tự động, hệ thống báo động khẩn cấp và hệ thống chống kẹt cửa.
Tuy nhiên, thang máy kính quan sát cũng có một số nhược điểm cần lưu ý. Giá thành của loại thang máy này thường cao hơn so với các loại thang máy thông thường do chi phí sản xuất và lắp đặt vách kính cường lực. Ngoài ra, việc vệ sinh và bảo trì vách kính cũng đòi hỏi sự cẩn thận và chuyên nghiệp để đảm bảo độ trong suốt và an toàn.
Một vấn đề khác cần quan tâm là khả năng chịu nhiệt của vách kính. Trong điều kiện thời tiết nắng nóng, vách kính có thể hấp thụ nhiệt và làm tăng nhiệt độ bên trong cabin. Do đó, cần lựa chọn loại kính cường lực có khả năng cách nhiệt tốt hoặc trang bị thêm hệ thống điều hòa không khí cho cabin.
Tóm lại, thang máy kính quan sát là một lựa chọn tuyệt vời cho những ngôi nhà có thiết kế hiện đại và muốn tận dụng tối đa ánh sáng tự nhiên. Tuy nhiên, cần cân nhắc kỹ lưỡng về chi phí, khả năng bảo trì và khả năng chịu nhiệt trước khi quyết định lắp đặt loại thang máy này.
Thang máy tải khách cho nhà cho thuê, căn hộ dịch vụ
Tại Hóc Môn, sự phát triển của các mô hình kinh doanh nhà cho thuê, căn hộ dịch vụ đã tạo ra nhu cầu lớn về thang máy tải khách. Loại thang máy này không chỉ giúp tăng tính tiện nghi cho khách hàng mà còn là một yếu tố quan trọng giúp thu hút và giữ chân khách hàng.
Thang máy tải khách cho nhà cho thuê, căn hộ dịch vụ thường có thiết kế đơn giản, dễ sử dụng và dễ bảo trì. Tải trọng của thang máy thường dao động từ 450kg đến 1000kg, đủ sức chứa cho nhiều người cùng lúc. Tốc độ di chuyển của thang máy cũng được điều chỉnh phù hợp với chiều cao của tòa nhà, đảm bảo an toàn và tiết kiệm thời gian cho khách hàng.

Một yếu tố quan trọng cần quan tâm khi lựa chọn thang máy tải khách cho nhà cho thuê, căn hộ dịch vụ là độ bền và khả năng hoạt động ổn định. Thang máy cần phải hoạt động liên tục trong thời gian dài mà không gặp sự cố, đảm bảo sự hài lòng của khách hàng và giảm thiểu chi phí sửa chữa.
Ngoài ra, tính năng an toàn cũng là một yếu tố không thể bỏ qua. Thang máy cần được trang bị đầy đủ các tính năng an toàn như hệ thống cứu hộ tự động, hệ thống báo động khẩn cấp, hệ thống chống kẹt cửa và hệ thống kiểm soát tải trọng. Điều này giúp đảm bảo an toàn cho khách hàng trong quá trình sử dụng và tránh các tai nạn đáng tiếc.
Một điểm cần lưu ý là việc lựa chọn nhà cung cấp thang máy uy tín và có kinh nghiệm. Nhà cung cấp cần có khả năng tư vấn, thiết kế, lắp đặt và bảo trì thang máy một cách chuyên nghiệp và hiệu quả. Họ cũng cần có đội ngũ kỹ thuật viên giàu kinh nghiệm và sẵn sàng hỗ trợ khách hàng trong mọi tình huống.
Tóm lại, thang máy tải khách cho nhà cho thuê, căn hộ dịch vụ là một đầu tư quan trọng giúp tăng tính cạnh tranh và thu hút khách hàng. Việc lựa chọn loại thang máy phù hợp, đảm bảo độ bền, tính năng an toàn và dịch vụ bảo trì tốt là rất quan trọng để đảm bảo sự hài lòng của khách hàng và hiệu quả kinh doanh.
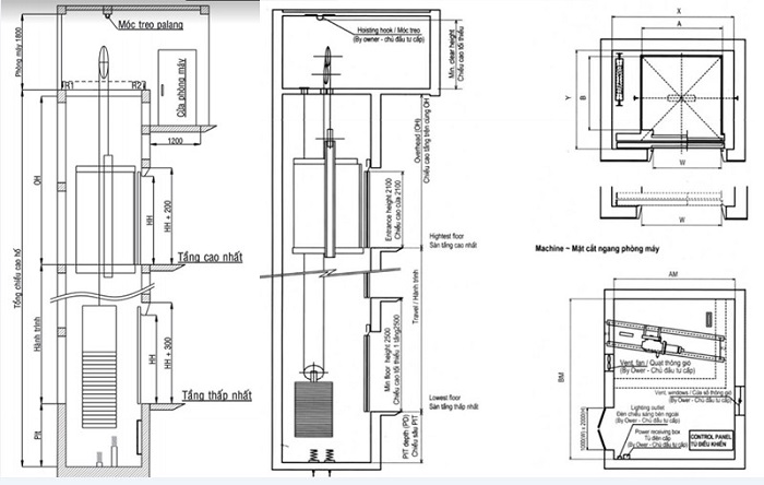
Thông số kỹ thuật và kích thước thang máy tiêu chuẩn
Việc lựa chọn thang máy phù hợp không chỉ dựa vào kiểu dáng, mẫu mã mà còn phụ thuộc rất nhiều vào các thông số kỹ thuật và kích thước tiêu chuẩn. Việc hiểu rõ các thông số này giúp bạn đưa ra quyết định chính xác, đảm bảo thang máy hoạt động hiệu quả và an toàn.
Kích thước thang máy mini (250kg – 350kg) cho nhà cải tạo
Thang máy mini, với tải trọng từ 250kg đến 350kg, là giải pháp lý tưởng cho những ngôi nhà cải tạo, có diện tích hạn chế. Loại thang máy này có kích thước nhỏ gọn, tiết kiệm diện tích lắp đặt và phù hợp với những không gian chật hẹp.
Kích thước hố thang tiêu chuẩn cho thang máy mini thường dao động từ 1300mm x 1300mm đến 1500mm x 1500mm. Kích thước cabin thường là 800mm x 1000mm hoặc 900mm x 1100mm, đủ sức chứa cho 2-3 người. Chiều cao OH (Overhead) – khoảng cách từ sàn tầng trên cùng đến đỉnh hố thang – thường là từ 2800mm đến 3200mm. Chiều sâu hố PIT – khoảng cách từ sàn tầng dưới cùng đến đáy hố thang – thường là từ 1000mm đến 1400mm.

Việc lựa chọn kích thước thang máy mini cần phải cân nhắc kỹ lưỡng, dựa trên diện tích thực tế của ngôi nhà và nhu cầu sử dụng của gia đình. Nếu diện tích hố thang quá nhỏ, thang máy sẽ không thể hoạt động hiệu quả và an toàn. Ngược lại, nếu diện tích hố thang quá lớn, sẽ gây lãng phí không gian và tăng chi phí xây dựng.
Một yếu tố quan trọng khác cần quan tâm là kết cấu chịu lực của ngôi nhà. Thang máy mini thường có trọng lượng khá lớn, do đó cần phải đảm bảo rằng kết cấu của ngôi nhà đủ khả năng chịu tải. Nếu cần thiết, cần phải gia cố thêm kết cấu để đảm bảo an toàn cho người sử dụng.
Ngoài ra, cần chú ý đến các yếu tố kỹ thuật khác như nguồn điện, hệ thống chiếu sáng, hệ thống thông gió và hệ thống cứu hộ khẩn cấp. Thang máy mini cần được trang bị đầy đủ các tính năng này để đảm bảo an toàn và tiện nghi cho người sử dụng.
Tóm lại, thang máy mini là một giải pháp tuyệt vời cho những ngôi nhà cải tạo, có diện tích hạn chế. Tuy nhiên, cần phải cân nhắc kỹ lưỡng về kích thước, kết cấu chịu lực và các yếu tố kỹ thuật khác để đảm bảo thang máy hoạt động hiệu quả và an toàn.
Kích thước thang máy gia đình tiêu chuẩn (450kg – 630kg)
Thang máy gia đình tiêu chuẩn, với tải trọng từ 450kg đến 630kg, là lựa chọn phổ biến cho những ngôi nhà có diện tích lớn hơn và nhu cầu sử dụng cao hơn. Loại thang máy này có kích thước rộng rãi hơn, có thể chở được nhiều người và đồ đạc cùng lúc.
Kích thước hố thang tiêu chuẩn cho thang máy gia đình thường dao động từ 1500mm x 1600mm đến 1800mm x 1800mm. Kích thước cabin thường là 1100mm x 1400mm hoặc 1200mm x 1500mm, đủ sức chứa cho 4-6 người. Chiều cao OH (Overhead) thường là từ 3200mm đến 3600mm. Chiều sâu hố PIT thường là từ 1200mm đến 1600mm.
Việc lựa chọn kích thước thang máy gia đình cần phải cân nhắc kỹ lưỡng, dựa trên diện tích của ngôi nhà, số lượng thành viên trong gia đình và nhu cầu sử dụng hàng ngày. Nếu gia đình thường xuyên có khách đến thăm hoặc cần vận chuyển nhiều đồ đạc, nên lựa chọn thang máy có kích thước lớn hơn.

Một yếu tố quan trọng khác cần quan tâm là thiết kế của thang máy. Thang máy gia đình nên có thiết kế hài hòa với kiến trúc tổng thể của ngôi nhà, tạo nên một không gian sống sang trọng và tiện nghi. Có thể lựa chọn các vật liệu cao cấp như gỗ, kính, kim loại để trang trí cabin và cửa thang máy.
Ngoài ra, cần chú ý đến các tính năng an toàn của thang máy. Thang máy gia đình nên được trang bị đầy đủ các tính năng an toàn như hệ thống cứu hộ tự động, hệ thống báo động khẩn cấp, hệ thống chống kẹt cửa, hệ thống kiểm soát tải trọng và hệ thống phanh an toàn. Điều này giúp đảm bảo an toàn cho mọi thành viên trong gia đình trong quá trình sử dụng.
Một điểm cần lưu ý là việc bảo trì, bảo dưỡng thang máy định kỳ. Thang máy gia đình cần được kiểm tra và bảo dưỡng thường xuyên để đảm bảo hoạt động ổn định và an toàn. Nên lựa chọn một công ty thang máy uy tín và có kinh nghiệm để thực hiện việc này.
Tóm lại, thang máy gia đình tiêu chuẩn là một lựa chọn tuyệt vời cho những ngôi nhà có diện tích lớn và nhu cầu sử dụng cao. Tuy nhiên, cần phải cân nhắc kỹ lưỡng về kích thước, thiết kế và các tính năng an toàn để đảm bảo thang máy hoạt động hiệu quả, an toàn và phù hợp với phong cách sống của gia đình.
Bảng báo giá lắp đặt thang máy Hóc Môn mới nhất 2026
(Lưu ý: Bảng báo giá dưới đây chỉ mang tính chất tham khảo và có thể thay đổi tùy thuộc vào nhà cung cấp, thương hiệu, loại thang máy, các tùy chọn cá nhân hóa và điều kiện thi công cụ thể.)
| Loại thang máy | Tải trọng (kg) | Số tầng | Giá tham khảo (VNĐ) | Ghi chú |
|---|---|---|---|---|
| Thang máy gia đình liên doanh (Mini) | 250 – 350 | 3 – 5 | 280.000.000 – 450.000.000 | Giá chưa bao gồm chi phí xây dựng hố thang, chi phí phát sinh do điều kiện thi công khó khăn. |
| Thang máy gia đình liên doanh (Tiêu chuẩn) | 450 – 630 | 3 – 5 | 350.000.000 – 550.000.000 | Giá chưa bao gồm chi phí xây dựng hố thang, chi phí phát sinh do điều kiện thi công khó khăn. |
| Thang máy gia đình nhập khẩu (Mini) | 250 – 350 | 3 – 5 | 550.000.000 – 800.000.000 | Giá đã bao gồm chi phí vận chuyển, lắp đặt, bảo hành. Giá có thể thay đổi tùy thuộc vào thương hiệu và các tùy chọn cá nhân hóa. |
| Thang máy gia đình nhập khẩu (Tiêu chuẩn) | 450 – 630 | 3 – 5 | 700.000.000 – 1.200.000.000 | Giá đã bao gồm chi phí vận chuyển, lắp đặt, bảo hành. Giá có thể thay đổi tùy thuộc vào thương hiệu và các tùy chọn cá nhân hóa. |
| Thang máy tải khách (Nhà cho thuê) | 450 – 1000 | 3 – 7 | 400.000.000 – 800.000.000 | Giá chưa bao gồm chi phí xây dựng hố thang, chi phí phát sinh do điều kiện thi công khó khăn. Giá có thể thay đổi tùy thuộc vào tốc độ, số lượng điểm dừng và các tùy chọn khác. |
Lưu ý quan trọng:
- Giá trên chỉ là giá tham khảo và có thể thay đổi tùy thuộc vào nhiều yếu tố.
- Nên liên hệ trực tiếp với các nhà cung cấp thang máy uy tín tại Hóc Môn để nhận được báo giá chi tiết và chính xác nhất.
- Nên so sánh giá cả và dịch vụ của nhiều nhà cung cấp khác nhau trước khi đưa ra quyết định.
- Nên yêu cầu nhà cung cấp cung cấp đầy đủ thông tin về các chi phí phát sinh, thời gian thi công và chính sách bảo hành.
Quy trình thi công thang máy chuẩn kỹ thuật tại Thang Máy Gia Định
Việc thi công thang máy đòi hỏi sự chuyên nghiệp và tuân thủ nghiêm ngặt các quy trình kỹ thuật để đảm bảo an toàn và hiệu quả hoạt động. Thang Máy Gia Định, với kinh nghiệm nhiều năm trong lĩnh vực thang máy, áp dụng quy trình thi công chuẩn kỹ thuật, đảm bảo chất lượng và sự hài lòng cho khách hàng.

Quy trình thi công thang máy tại Thang Máy Gia Định thường bao gồm các bước sau:
- Khảo sát và tư vấn: Đội ngũ kỹ thuật viên của Thang Máy Gia Định sẽ đến khảo sát công trình, đánh giá điều kiện thi công và tư vấn cho khách hàng về các loại thang máy phù hợp.
- Thiết kế và lập bản vẽ: Sau khi thống nhất với khách hàng về loại thang máy, Thang Máy Gia Định sẽ tiến hành thiết kế và lập bản vẽ chi tiết, bao gồm kích thước hố thang, vị trí đặt máy, hệ thống điện và các yêu cầu kỹ thuật khác.
- Chuẩn bị hố thang: Khách hàng hoặc đơn vị xây dựng sẽ tiến hành xây dựng hố thang theo đúng kích thước và yêu cầu kỹ thuật trong bản vẽ. Thang Máy Gia Định sẽ cung cấp các hướng dẫn chi tiết và hỗ trợ kỹ thuật trong quá trình này.
- Lắp đặt thiết bị: Sau khi hố thang được hoàn thành, Thang Máy Gia Định sẽ tiến hành lắp đặt các thiết bị chính của thang máy như máy kéo, tủ điện, cabin, ray dẫn hướng, cáp tải và các thiết bị an toàn.
- Kiểm tra và chạy thử: Sau khi lắp đặt xong, Thang Máy Gia Định sẽ tiến hành kiểm tra toàn bộ hệ thống, đảm bảo hoạt động đúng theo tiêu chuẩn kỹ thuật. Thang máy sẽ được chạy thử nhiều lần để kiểm tra độ ổn định và an toàn.
- Nghiệm thu và bàn giao: Sau khi kiểm tra và chạy thử thành công, Thang Máy Gia Định sẽ tiến hành nghiệm thu và bàn giao thang máy cho khách hàng. Khách hàng sẽ được hướng dẫn chi tiết về cách sử dụng và bảo trì thang máy.
- Bảo hành và bảo trì: Thang Máy Gia Định cam kết bảo hành thang máy trong thời gian quy định và cung cấp dịch vụ bảo trì định kỳ để đảm bảo thang máy hoạt động ổn định và an toàn trong suốt quá trình sử dụng.
Trong quá trình thi công, Thang Máy Gia Định luôn tuân thủ các quy định về an toàn lao động, đảm bảo an toàn cho công nhân và người xung quanh. Các thiết bị và vật tư được sử dụng đều có nguồn gốc rõ ràng và đạt tiêu chuẩn chất lượng. Đội ngũ kỹ thuật viên của Thang Máy Gia Định được đào tạo bài bản và có kinh nghiệm nhiều năm trong lĩnh vực thang máy.
Tại sao nên chọn Thang Máy Gia Định thi công tại khu vực Hóc Môn?
Thị trường thang máy tại Hóc Môn có rất nhiều nhà cung cấp, nhưng Thang Máy Gia Định nổi bật lên như một lựa chọn đáng tin cậy nhờ những ưu điểm vượt trội:
- Uy tín và kinh nghiệm: Thang Máy Gia Định có nhiều năm kinh nghiệm trong lĩnh vực thang máy, đã thực hiện thành công nhiều dự án lớn nhỏ tại Hóc Môn và các khu vực lân cận.
- Chất lượng sản phẩm: Thang Máy Gia Định cung cấp các loại thang máy chất lượng cao, được sản xuất theo công nghệ tiên tiến và tuân thủ các tiêu chuẩn an toàn quốc tế.
- Đội ngũ kỹ thuật chuyên nghiệp: Thang Máy Gia Định có đội ngũ kỹ thuật viên giàu kinh nghiệm, được đào tạo bài bản và có khả năng xử lý mọi vấn đề liên quan đến thang máy.
- Dịch vụ tận tâm: Thang Máy Gia Định luôn đặt lợi ích của khách hàng lên hàng đầu, cung cấp dịch vụ tư vấn, thiết kế, lắp đặt, bảo trì và sửa chữa thang máy một cách tận tâm và chuyên nghiệp.
- Giá cả cạnh tranh: Thang Máy Gia Định cam kết cung cấp các sản phẩm và dịch vụ với giá cả cạnh tranh nhất trên thị trường.
- Bảo hành dài hạn: Thang Máy Gia Định cung cấp chế độ bảo hành dài hạn cho tất cả các sản phẩm và dịch vụ, đảm bảo quyền lợi của khách hàng.
- Hỗ trợ nhanh chóng: Thang Máy Gia Định luôn sẵn sàng hỗ trợ khách hàng 24/7, giải đáp mọi thắc mắc và xử lý mọi sự cố một cách nhanh chóng và hiệu quả.
Đặc biệt, Thang Máy Gia Định có đội ngũ kỹ thuật viên thường trực tại khu vực Hóc Môn, đảm bảo khả năng hỗ trợ nhanh chóng và kịp thời cho khách hàng. Thang Máy Gia Định cũng có nhiều đối tác là các nhà cung cấp vật tư và thiết bị thang máy uy tín tại Hóc Môn, giúp giảm thiểu chi phí và thời gian thi công.
Ngoài ra, Thang Máy Gia Định còn có chính sách ưu đãi đặc biệt cho khách hàng tại Hóc Môn, như giảm giá lắp đặt, tặng gói bảo trì miễn phí và hỗ trợ vay vốn ngân hàng.
Những lưu ý quan trọng về an toàn và pháp lý khi lắp đặt
Việc lắp đặt thang máy không chỉ là một công việc kỹ thuật mà còn liên quan đến các vấn đề an toàn và pháp lý. Việc tuân thủ các quy định và lưu ý quan trọng giúp đảm bảo an toàn cho người sử dụng và tránh các rủi ro pháp lý.
- Tuân thủ các quy định của pháp luật: Trước khi lắp đặt thang máy, cần phải tìm hiểu và tuân thủ các quy định của pháp luật về xây dựng, an toàn lao động và phòng cháy chữa cháy.
- Lựa chọn nhà cung cấp uy tín: Nên lựa chọn nhà cung cấp thang máy có uy tín, có giấy phép kinh doanh và có kinh nghiệm trong lĩnh vực thang máy.
- Thiết kế và lắp đặt đúng tiêu chuẩn: Thang máy cần được thiết kế và lắp đặt đúng theo tiêu chuẩn kỹ thuật, đảm bảo an toàn và hiệu quả hoạt động.
- Kiểm định an toàn: Sau khi lắp đặt xong, thang máy cần phải được kiểm định an toàn bởi một tổ chức kiểm định có thẩm quyền.
- Bảo trì định kỳ: Thang máy cần được bảo trì định kỳ để đảm bảo hoạt động ổn định và an toàn trong suốt quá trình sử dụng.
- Mua bảo hiểm trách nhiệm dân sự: Nên mua bảo hiểm trách nhiệm dân sự cho thang máy để phòng ngừa các rủi ro có thể xảy ra.
- Hướng dẫn sử dụng cho người dùng: Cần cung cấp đầy đủ thông tin và hướng dẫn sử dụng thang máy cho người dùng, đặc biệt là trẻ em và người lớn tuổi.
- Kiểm tra thường xuyên: Người quản lý tòa nhà cần thường xuyên kiểm tra thang máy để phát hiện và xử lý kịp thời các sự cố.
- Không tự ý sửa chữa: Không tự ý sửa chữa thang máy nếu không có chuyên môn và kinh nghiệm.
- Báo cáo sự cố: Báo cáo ngay cho nhà cung cấp hoặc cơ quan chức năng khi xảy ra sự cố với thang máy.
Việc tuân thủ các lưu ý trên giúp đảm bảo an toàn cho người sử dụng và tránh các rủi ro pháp lý. Nên tìm hiểu kỹ thông tin và tư vấn với các chuyên gia trước khi quyết định lắp đặt thang máy.
Câu hỏi thường gặp về thang máy Hóc Môn
Dưới đây là một số câu hỏi thường gặp về thang máy tại khu vực Hóc Môn, cùng với câu trả lời chi tiết:
Thời gian lắp đặt thang máy mất bao lâu?
Thời gian lắp đặt thang máy phụ thuộc vào nhiều yếu tố như loại thang máy, kích thước, số tầng, điều kiện thi công và nhà cung cấp. Thông thường, thời gian lắp đặt thang máy gia đình liên doanh dao động từ 15 đến 30 ngày. Thang máy nhập khẩu nguyên chiếc có thể mất thời gian lâu hơn do quá trình vận chuyển và thủ tục nhập khẩu. Đối với những công trình cải tạo, thời gian lắp đặt có thể kéo dài hơn do cần phải xử lý các vấn đề liên quan đến kết cấu và không gian.
Để có thông tin chính xác về thời gian lắp đặt, nên liên hệ trực tiếp với nhà cung cấp thang máy và cung cấp thông tin chi tiết về công trình của bạn. Nhà cung cấp sẽ khảo sát và đưa ra báo giá và thời gian thi công cụ thể.
Nhà cũ có lắp được thang máy không?
Câu trả lời là có. Tuy nhiên, việc lắp đặt thang máy trong nhà cũ đòi hỏi sự khảo sát kỹ lưỡng và thiết kế phù hợp để đảm bảo an toàn và hiệu quả. Có nhiều giải pháp để lắp đặt thang máy trong nhà cũ, như:
- Lắp đặt thang máy bên ngoài nhà: Đây là giải pháp phổ biến, không ảnh hưởng đến kết cấu bên trong nhà. Hố thang được xây dựng bên ngoài, và thang máy kết nối với các tầng thông qua cửa mở ra từ bên trong nhà.
- Tận dụng giếng trời: Nếu nhà có giếng trời, có thể tận dụng không gian này để lắp đặt thang máy.
- Cải tạo cầu thang bộ: Có thể cải tạo cầu thang bộ để tạo không gian cho thang máy.
- Sử dụng thang máy không hố PIT hoặc hố PIT nông: Loại thang máy này giúp giảm thiểu việc đào hố PIT, phù hợp với những ngôi nhà có nền móng yếu.
Trước khi quyết định lắp đặt thang máy trong nhà cũ, cần phải thuê một đơn vị tư vấn chuyên nghiệp để khảo sát và đưa ra giải pháp phù hợp nhất.
Chi phí tiền điện hàng tháng của thang máy gia đình là bao nhiêu?
Chi phí tiền điện hàng tháng của thang máy gia đình phụ thuộc vào nhiều yếu tố như công suất của động cơ, tần suất sử dụng, số tầng và giá điện. Thông thường, thang máy gia đình sử dụng điện 1 pha hoặc 3 pha, với công suất động cơ từ 1.5kW đến 3kW.
Để tính toán chi phí tiền điện hàng tháng, cần biết số lần sử dụng thang máy mỗi ngày, thời gian hoạt động của thang máy mỗi lần và giá điện. Ví dụ, nếu một gia đình sử dụng thang máy 10 lần mỗi ngày, mỗi lần 1 phút, và giá điện là 3.000 VNĐ/kWh, thì chi phí tiền điện hàng tháng có thể dao động từ 100.000 VNĐ đến 300.000 VNĐ.
Tuy nhiên, đây chỉ là ước tính. Chi phí thực tế có thể cao hơn hoặc thấp hơn tùy thuộc vào các yếu tố cụ thể. Nên tìm hiểu kỹ thông số kỹ thuật của thang máy và tính toán chi phí điện năng trước khi quyết định lắp đặt.
Kết luận
Bài viết đã cung cấp một cái nhìn tổng quan về nhu cầu lắp đặt thang máy Hóc Môn, các loại thang máy được ưa chuộng, thông số kỹ thuật, báo giá, quy trình thi công và những lưu ý quan trọng về an toàn và pháp lý. Hy vọng những thông tin này sẽ giúp bạn đưa ra quyết định sáng suốt và lựa chọn được chiếc thang máy phù hợp nhất cho ngôi nhà của mình.