Thang cuốn, hay còn gọi là thang tự động, là một hệ thống vận chuyển thẳng đứng được thiết kế dưới dạng một dải các bậc thang chuyển động liên tục, giúp vận chuyển người giữa các tầng khác nhau của một tòa nhà. Việc sử dụng thang cuốn đã trở nên vô cùng thiết yếu trong các công trình công cộng hiện đại như trung tâm thương mại, sân bay, hay nhà ga, bởi khả năng giải quyết bài toán lưu thông mật độ cao một cách hiệu quả và liên tục. Khi bạn quyết định đầu tư hoặc thiết kế không gian có thang cuốn, việc hiểu rõ các tiêu chuẩn kỹ thuật, đặc biệt là kích thước thang cuốn, là yếu tố mấu chốt hàng đầu. Bài viết này sẽ cung cấp cho bạn thông tin chi tiết về kích thước thang cuốn chuẩn nhất 2025, các loại thang phổ biến và những lưu ý quan trọng khi lựa chọn.
Thang cuốn là gì?

Thang cuốn là một thiết bị vận tải dạng băng tải, được cấu tạo từ một hệ thống các bậc thang có thể chuyển động luân phiên lên hoặc xuống, tạo thành một vòng khép kín. Mục đích chính của thang cuốn là vận chuyển một lượng lớn hành khách hoặc hàng hóa nhẹ giữa các tầng lầu khác nhau trong các tòa nhà. Cấu tạo của thang cuốn bao gồm hệ thống khung đỡ, dải bậc thang, tay vịn chuyển động đồng bộ, và hệ thống truyền động (bao gồm động cơ và hộp số). Không giống như thang máy vốn vận hành trong một buồng kín và di chuyển theo từng lượt, thang cuốn hoạt động liên tục, cho phép người dùng bước lên và di chuyển ngay lập tức. Đây là giải pháp lý tưởng cho các khu vực có lưu lượng người qua lại đông đúc, đòi hỏi sự di chuyển nhanh chóng và không bị gián đoạn.
Kích thước thang cuốn chuẩn nhất 2025

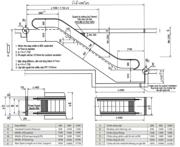
Việc lựa chọn kích thước thang cuốn phụ thuộc rất nhiều vào hai yếu tố chính: lưu lượng người dự kiến và không gian kiến trúc thực tế của công trình. Mặc dù các nhà sản xuất có thể cung cấp các tùy chỉnh riêng biệt, các tiêu chuẩn kỹ thuật chung trong ngành vào năm 2025 vẫn tuân thủ các thông số cơ bản để đảm bảo an toàn và hiệu suất. Bạn cần nắm rõ các kích thước này để có thể lập kế hoạch thiết kế và thi công một cách chính xác nhất.
Các thông số kích thước thang cuốn chuẩn hiện nay thường bao gồm:
Độ nghiêng: Góc nghiêng tiêu chuẩn của thang cuốn thường là 30 độ hoặc 35 độ.
- Góc 30 độ: Đây là góc nghiêng phổ biến nhất, thường được ưu tiên sử dụng vì mang lại cảm giác thoải mái và an toàn hơn cho người di chuyển, đặc biệt là khi họ mang theo hành lý hoặc xe đẩy.
- Góc 35 độ: Góc nghiêng này giúp tiết kiệm diện tích lắp đặt theo chiều ngang (giảm chiều dài tổng thể của thang). Tuy nhiên, nó thường chỉ được sử dụng ở những nơi có không gian hạn chế và chỉ áp dụng cho thang có chiều cao nâng (Rise) dưới 6 mét để đảm bảo an toàn.
Chiều rộng bậc thang: Đây là kích thước quan trọng ảnh hưởng trực tiếp đến công suất vận chuyển của thang.
- 600mm: Loại hẹp, phù hợp cho 1 người lớn đứng, thường dùng ở những nơi có lưu lượng truy cập thấp hoặc không gian quá hẹp.
- 800mm: Cho phép 1 người lớn và 1 trẻ em đứng cạnh nhau, hoặc 1 người lớn mang theo hành lý xách tay. Đây là lựa chọn cân bằng giữa công suất và không gian.
- 1000mm: Đây là kích thước tiêu chuẩn và phổ biến nhất, cho phép 2 người lớn đứng cạnh nhau thoải mái. Loại này tối ưu cho các khu vực lưu lượng cao như trung tâm thương mại lớn hoặc nhà ga.
Tốc độ di chuyển (Speed): Tốc độ vận hành tiêu chuẩn của thang cuốn là 0.5 m/s (mét mỗi giây). Trong một số trường hợp đặc biệt yêu cầu lưu thông nhanh hơn (như các trung tâm giao thông công cộng, sân bay), tốc độ có thể được tăng lên 0.65 m/s hoặc tối đa là 0.75 m/s, nhưng điều này đòi hỏi các tiêu chuẩn an toàn nghiêm ngặt hơn và thường áp dụng cho thang có góc nghiêng 30 độ.
Dưới đây là bảng tổng hợp kích thước kỹ thuật cơ bản bạn có thể tham khảo để tính toán không gian lắp đặt:
| Thông số kỹ thuật | Kích thước tiêu chuẩn (Góc 30°) | Kích thước tiêu chuẩn (Góc 35°) |
| Chiều rộng bậc thang | 600 mm / 800 mm / 1000 mm | 600 mm / 800 mm / 1000 mm |
| Tốc độ di chuyển | 0.5 m/s (tiêu chuẩn) | 0.5 m/s (tiêu chuẩn) |
| Chiều cao nâng (Rise) | Tối đa thường khoảng 10-15m | Tối đa 6m |
| Công suất (người/giờ) | 4.500 / 6.750 / 9.000 | 4.500 / 6.750 / 9.000 |
| Chiều rộng tổng thể | ~1200mm / ~1400mm / ~1600mm | ~1200mm / ~1400mm / ~1600mm |
Lưu ý: Chiều dài tổng thể của hố thang sẽ phụ thuộc trực tiếp vào Chiều cao nâng (Rise) và góc nghiêng bạn lựa chọn.
Các loại thang cuốn phổ biến hiện nay

Các loại thang cuốn trên thị trường hiện nay rất đa dạng, được phân loại dựa trên nhiều yếu tố như cấu tạo bậc thang, mục đích sử dụng, và phương thức di chuyển (nghiêng hoặc ngang). Mỗi loại thang đều có những đặc điểm thiết kế và ứng dụng riêng biệt, phù hợp với từng loại công trình và nhu cầu vận hành cụ thể mà bạn đang tìm kiếm.
Thang cuốn ngang
Thang cuốn ngang, hay còn được biết đến với tên gọi kỹ thuật chính xác hơn là “băng tải bộ” (Moving Walkway), là một hệ thống vận chuyển hoạt động theo phương ngang hoặc có độ nghiêng rất nhỏ (thường từ 0 đến 12 độ). Thay vì các bậc thang nhô cao, bề mặt của loại thang này là một dải băng tải phẳng hoặc phổ biến hơn là các tấm (pallet) kim loại phẳng, liên kết chặt chẽ với nhau.
Thiết bị này được thiết kế chủ yếu để giúp người dùng di chuyển quãng đường dài trong các công trình có diện tích mặt bằng rộng lớn mà không tốn nhiều sức lực. Chúng đặc biệt hữu ích khi hành khách phải mang theo hành lý, xe đẩy hàng trong siêu thị hoặc xe đẩy trẻ em.
Ưu điểm:
- Thuận tiện cho xe đẩy: Bề mặt phẳng của thang cuốn ngang là giải pháp lý tưởng cho việc di chuyển xe đẩy hàng (trong siêu thị) hoặc xe hành lý (trong sân bay), điều mà thang cuốn nghiêng có bậc không làm được.
- Tiết kiệm không gian (theo chiều cao): Do di chuyển chủ yếu theo phương ngang, chúng không yêu cầu không gian thông tầng như thang cuốn nghiêng, rất phù hợp cho các hành lang dài.
Nhược điểm:
- Tốc độ di chuyển giới hạn: Tốc độ thường tương đương hoặc chậm hơn thang cuốn nghiêng để đảm bảo an toàn cho người dùng khi bước lên và bước xuống bề mặt phẳng đang chuyển động.
- Không kết nối các tầng hiệu quả: Nếu có độ nghiêng, chúng chỉ phù hợp với độ cao nâng rất thấp (thường dưới 3-4 mét).
Ứng dụng: Bạn có thể dễ dàng bắt gặp thang cuốn ngang tại các sân bay (giúp di chuyển giữa các cổng chờ), các đại siêu thị, trung tâm hội nghị, nhà ga tàu điện ngầm, hoặc các lối đi bộ dài kết nối giữa hai tòa nhà.
Thang cuốn nghiêng
Thang cuốn nghiêng là loại thang cuốn phổ biến và truyền thống nhất mà chúng ta thường thấy trong hầu hết các tòa nhà đa tầng. Đây là hệ thống các bậc thang cơ khí di chuyển theo một phương nghiêng cố định (như đã đề cập, tiêu chuẩn là 30 hoặc 35 độ) để kết nối các tầng khác nhau của một tòa nhà. Cấu tạo bậc thang rõ ràng cho phép người dùng đứng vững chãi khi di chuyển lên hoặc xuống.
Đây được xem là giải pháp vận chuyển chủ lực tại các công trình công cộng, đáp ứng nhu cầu lưu thông liên tục và mật độ hành khách cao.
Ưu điểm:
- Di chuyển nhanh và thuận tiện giữa các tầng: Giúp hành khách thay đổi độ cao một cách nhanh chóng, hiệu quả mà không cần chờ đợi như thang máy.
- Công suất vận chuyển cực lớn: Có khả năng vận chuyển hàng ngàn người mỗi giờ, vượt trội hoàn toàn so với thang máy trong các khung giờ cao điểm tại trung tâm thương mại.
Nhược điểm:
- Chiếm dụng diện tích đáng kể: Thang cuốn nghiêng cần một không gian lắp đặt lớn, bao gồm cả chiều dài hố thang theo phương ngang và khoảng không gian an toàn (thường là 2.5m) ở khu vực đầu và cuối thang.
- Hạn chế với xe đẩy: Hầu hết các loại thang cuốn nghiêng truyền thống không được thiết kế để sử dụng an toàn với xe đẩy hàng hoặc xe lăn.
Ứng dụng: Thang cuốn nghiêng là lựa chọn hàng đầu và gần như bắt buộc tại các trung tâm thương mại, tòa nhà văn phòng, ga tàu điện ngầm, các cửa hàng bách hóa nhiều tầng, và bất kỳ công trình công cộng nào cần giải quyết vấn đề di chuyển nhanh giữa các tầng.
Thang cuốn có bậc
Thang cuốn có bậc (Stepped Escalator) thực chất chính là mô tả chi tiết hơn của loại thang cuốn nghiêng được đề cập ở trên. Thuật ngữ này dùng để nhấn mạnh vào cấu tạo sử dụng các bậc thang (steps) kim loại được định hình rõ ràng, thay vì dạng băng tải phẳng (pallet) như thang cuốn ngang.
Thiết kế bậc thang này là yếu tố then chốt đảm bảo an toàn cho hành khách khi di chuyển giữa các độ cao khác nhau. Mỗi bậc thang được thiết kế với các đường gân nổi chạy dọc bề mặt, mục đích là để tăng độ ma sát, chống trơn trượt hiệu quả. Quan trọng hơn, các rãnh này sẽ khớp chính xác với tấm lược (comb plate) ở hai đầu thang để ngăn ngừa vật lạ, sỏi đá hay dây giày bị kẹt vào hệ thống.
Ưu điểm:
- An toàn tối ưu khi thay đổi độ cao: Bề mặt bậc thang chống trượt, kết hợp với các gờ phân định màu vàng (hoặc màu tương phản) ở cạnh bậc, giúp người dùng nhận diện rõ ràng vị trí đứng an toàn.
- Khả năng vận chuyển lớn và liên tục: Cấu trúc bậc thang cứng cáp cho phép thang vận hành ổn định với tải trọng cao, phù hợp với mật độ người dùng dày đặc trong thời gian dài.
- Phù hợp nhiều kiến trúc: Dễ dàng tích hợp vào hầu hết các thiết kế tòa nhà công cộng, từ cổ điển đến hiện đại.
Nhược điểm:
- Thiết kế kỹ thuật phức tạp: Hệ thống truyền động và cơ chế liên kết các bậc thang đòi hỏi kỹ thuật chế tạo và lắp đặt chính xác tuyệt đối.
- Chi phí lắp đặt và bảo trì: Thường có chi phí đầu tư ban đầu và bảo trì cao hơn so vớii băng tải phẳng do cấu tạo cơ khí phức tạp hơn.
Ứng dụng: Loại thang này được sử dụng rộng rãi và là tiêu chuẩn trong các trung tâm thương mại, siêu thị, tòa nhà văn phòng, và các công trình công cộng nơi cần vận chuyển số lượng lớn người một cách an toàn giữa các tầng lầu.
Thang cuốn tải hàng
Thang cuốn tải hàng, hay chính xác hơn là băng tải nghiêng cho xe đẩy (Cart Conveyor), là một biến thể đặc biệt của thang cuốn, được thiết kế chuyên dụng để vận chuyển hàng hóa. Chúng ta thường thấy nhất là loại thang dành riêng cho các xe đẩy hàng (shopping carts) trong siêu thị hoặc vận chuyển hành lý tại sân bay.
Về mặt cấu tạo, chúng có thể có bề mặt phẳng (dạng pallet chịu lực) hoặc bề mặt có các rãnh đặc biệt. Đối với loại dùng trong siêu thị, các rãnh này được thiết kế để bánh xe của xe đẩy lọt vào và được cơ chế hãm (thường là nam châm hoặc kẹp cơ khí) giữ cố định, ngăn xe trôi tự do trong suốt quá trình di chuyển. Một số loại thang cuốn tải hàng hạng nặng trong công nghiệp thì có cấu tạo chắc chắn hơn, chịu được tải trọng va đập lớn.
Ưu điểm:
- Vận chuyển hàng hóa nặng/cồng kềnh: Cho phép khách hàng hoặc nhân viên di chuyển xe đẩy hàng chứa đầy vật phẩm nặng, hoặc các kiện hành lý lớn một cách dễ dàng và an toàn giữa các tầng.
- Tiết kiệm thời gian và nhân lực: Tự động hóa quá trình vận chuyển hàng hóa, giảm bớt sức lao động của nhân viên hoặc tăng sự thuận tiện cho khách hàng.
Nhược điểm:
- Không tối ưu cho việc di chuyển người: Mặc dù người dùng có thể đi kèm xe đẩy, nhưng thiết kế bề mặt của chúng (đặc biệt là loại có rãnh) không mang lại sự thoải mái và an toàn tối đa nếu chỉ di chuyển người.
- Tốc độ chậm: Thường vận hành ở tốc độ chậm hơn thang cuốn chở người để đảm bảo hàng hóa trên xe đẩy không bị xô lệch hoặc đổ vỡ.
Ứng dụng: Bạn sẽ thấy loại thang này phổ biến nhất tại các đại siêu thị (như Aeon Mall, Lotte Mart, Emart) để khách hàng đưa xe đẩy hàng lên xuống các tầng, hoặc tại các sân bay (khu vực trả hành lý) và một số nhà máy, khu công nghiệp (vận chuyển dây chuyền).
Những tính năng nổi bật của thang cuốn

Thang cuốn hiện đại không chỉ là một phương tiện di chuyển cơ học, mà còn được tích hợp hàng loạt tính năng công nghệ cao nhằm đảm bảo hiệu suất vận hành và an toàn tuyệt đối cho người sử dụng. Khi bạn tìm hiểu về một mẫu thang cuốn, bạn nên chú ý đến các tính năng quan trọng sau đây:
- Khả năng chịu tải trọng lớn và hoạt động liên tục: Ưu điểm cơ bản nhất là thang cuốn được thiết kế để vận hành không ngừng nghỉ, 24/7. Chúng có khả năng vận chuyển đồng thời hàng trăm người, đáp ứng lưu lượng truy cập cực cao tại các điểm nóng giao thông mà không gây ùn tắc.
- Hệ thống an toàn tích hợp toàn diện: Đây là yếu tố quan trọng nhất. Thang cuốn tiêu chuẩn bắt buộc phải có tay vịn chuyển động đồng bộ tuyệt đối với tốc độ bậc thang, giúp người dùng giữ thăng bằng. Bề mặt bậc thang luôn có các gân chống trơn trượt và gờ cảnh báo ranh giới an toàn (thường là vạch sơn vàng) ở các cạnh để người dùng biết vị trí đứng an toàn.
- Tấm lược an toàn (Comb Plates): Được lắp đặt ở cả hai đầu thang (lối vào và lối ra), tấm lược có các răng cưa được thiết kế đặc biệt để khớp chính xác với các rãnh trên bậc thang. Thiết kế này giúp ngăn chặn giày dép, quần áo, dây giày hoặc vật thể lạ bị kéo vào khe hở giữa bậc thang đang di chuyển và tấm sàn cố định, giảm thiểu nguy cơ tai nạn kẹt.
- Cảm biến và nút dừng khẩn cấp: Các nút dừng khẩn cấp (Emergency Stop Button) màu đỏ luôn được đặt ở vị trí dễ thấy (thường ở hai đầu thang, cả phía trên và phía dưới) để bất kỳ ai cũng có thể dừng thang ngay lập tức khi phát hiện sự cố. Ngoài ra, thang còn trang bị hàng loạt cảm biến giám sát tốc độ tay vịn (đảm bảo đồng tốc với bậc thang), cảm biến phát hiện bậc thang bị lỗi hoặc sụt lún, và cảm biến vật cản tại tấm lược.
- Thiết kế thẩm mỹ và vật liệu bền bỉ: Thang cuốn hiện đại thường sử dụng các vật liệu cao cấp như thép không gỉ (inox), kính cường lực cho phần lan can. Những vật liệu này không chỉ đảm bảo độ bền vượt trội trong môi trường công cộng có độ mài mòn cao mà còn tăng tính thẩm mỹ, giúp thang cuốn hòa hợp và nâng tầm kiến trúc tổng thể của tòa nhà.
- Công nghệ tiết kiệm năng lượng (Biến tần – VVVF): Nhiều thang cuốn thế hệ mới được trang bị công nghệ biến tần (VVVF). Công nghệ này cho phép thang khởi động và dừng êm ái hơn, giảm hao mòn cơ khí. Quan trọng hơn, nó cho phép thang tự động giảm tốc độ hoặc chuyển sang chế độ “ngủ” (standby) khi không có người sử dụng, và nhanh chóng tăng tốc trở lại bình thường khi phát hiện có người bước vào, giúp tiết kiệm một lượng lớn điện năng tiêu thụ.
Ưu điểm nổi bật của thang cuốn
Việc đầu tư thang cuốn mang lại nhiều lợi ích vượt trội và có tính chiến lược cho các công trình thương mại và công cộng. Khi bạn cân nhắc các giải pháp di chuyển cho tòa nhà của mình, bạn sẽ thấy thang cuốn sở hữu những ưu điểm không thể thay thế sau đây:
- Khả năng vận chuyển lưu lượng cực lớn: Đây là ưu điểm tuyệt đối của thang cuốn so với thang máy. Một thang cuốn có chiều rộng bậc 1000mm có thể vận chuyển lý thuyết lên đến 9.000 người mỗi giờ. Điều này giúp giải quyết triệt để bài toán ùn tắc tại các khu vực đông đúc như trung tâm thương mại hay nhà ga vào giờ cao điểm.
- Hoạt động liên tục, không cần chờ đợi: Người dùng không phải mất thời gian đứng đợi cabin như khi sử dụng thang máy. Họ có thể bước lên thang và di chuyển ngay lập tức. Điều này tạo ra một dòng lưu thông liên tục, nhanh chóng và hiệu quả.
- An toàn cao với thiết kế thông minh: Khi được bảo trì đúng tiêu chuẩn, thang cuốn rất an toàn. Các tiêu chuẩn thiết kế hiện đại (như gân chống trượt, gờ phân định ranh giới bậc, tấm lược ở lối ra/vào, tay vịn đồng tốc) giúp giảm thiểu tối đa các rủi ro tai nạn vấp ngã hoặc kẹt.
- Thiết kế thẩm mỹ, tăng giá trị kiến trúc: Thang cuốn thường được thiết kế với vật liệu hiện đại như kính và inox, tạo cảm giác không gian mở, sang trọng và thu hút. Chúng không chỉ là một thiết bị chức năng mà còn có thể trở thành một điểm nhấn kiến trúc, đặc biệt là các thiết kế thang cuốn vòm hoặc xoắn ốc.
- Dễ sử dụng cho mọi đối tượng: Vận hành thang cuốn rất trực quan; người dùng (bao gồm cả người già và trẻ em nếu có sự giám sát của người lớn) chỉ cần bước lên bậc thang đang di chuyển và giữ chặt tay vịn.
- Tăng hiệu quả kinh doanh và điều hướng: Trong các trung tâm thương mại hoặc cửa hàng bán lẻ, thang cuốn đóng vai trò quan trọng trong việc điều hướng dòng khách hàng. Chúng giúp đưa khách hàng di chuyển qua các tầng một cách thuận lợi, khuyến khích họ khám phá nhiều cửa hàng và khu vực hơn, từ đó tăng hiệu quả vận chuyển và có thể thúc đẩy doanh số.
-
Độ bền cao và vận hành ổn định: Thang cuốn được thiết kế cơ khí hạng nặng (heavy-duty) để chịu tải lớn và hoạt động bền bỉ trong môi trường có tần suất sử dụng cao và liên tục.
Những điều cần lưu ý khi chọn thang cuốn

Khi bạn quyết định đầu tư thang cuốn, có 7 điều cần lưu ý then chốt để đảm bảo lựa chọn của bạn ảnh hưởng tích cực và lâu dài đến hiệu quả vận hành cũng như an toàn của tòa nhà. Việc lựa chọn này không chỉ dừng lại ở chi phí, mà còn phải dựa trên các phân tích kỹ thuật chi tiết để đảm bảo thang cuốn hoạt động hiệu quả, bền bỉ và an toàn tuyệt đối. 7 yếu tố then chốt bạn cần đặc biệt lưu ý bao gồm:
- Xác định chính xác lưu lượng người sử dụng: Đây là yếu tố đầu tiên và quan trọng nhất. Bạn cần phân tích mật độ và lưu lượng người di chuyển dự kiến tại khu vực lắp đặt, đặc biệt là vào các khung giờ cao điểm. Nếu lưu lượng rất cao (như nhà ga, sân bay), bạn bắt buộc phải chọn thang có chiều rộng bậc lớn (1000mm) và tốc độ cao hơn. Nếu chọn thang quá nhỏ so với nhu cầu, thang sẽ nhanh chóng quá tải và xuống cấp.
- Lựa chọn tốc độ thang cuốn theo môi trường: Tốc độ di chuyển ảnh hưởng trực tiếp đến công suất vận chuyển và trải nghiệm của người dùng. Tốc độ tiêu chuẩn 0,5 m/s phù hợp với hầu hết các trung tâm thương mại, mang lại cảm giác di chuyển thoải mái. Tốc độ cao hơn như 0,65 m/s thường được ưu tiên cho các công trình giao thông công cộng (nhà ga, trạm trung chuyển) để giải tỏa hành khách nhanh chóng. Tốc độ tối đa 0,75 m/s chỉ nên được xem xét cho các tòa nhà có chiều cao nâng đặc biệt lớn.
- Đảm bảo kích thước phù hợp không gian và tiêu chuẩn: Bạn phải làm việc chặt chẽ với đơn vị thiết kế kiến trúc và nhà cung cấp thang cuốn. Các thông số như chiều rộng bậc thang, chiều dài tổng thể của hố thang (phụ thuộc vào chiều cao nâng và độ nghiêng) phải vừa vặn với không gian lắp đặt thực tế, đồng thời phải tuân thủ nghiêm ngặt các tiêu chuẩn an toàn về khoảng cách và không gian bảo trì.
- Kiểm tra hệ thống an toàn: Không bao giờ thỏa hiệp về tính năng an toàn. Bạn cần yêu cầu nhà cung cấp liệt kê chi tiết các hệ thống an toàn được trang bị, bao gồm: tay vịn đồng tốc, cảm biến dừng khẩn cấp ở hai đầu, cảm biến giám sát bậc thang, tấm lược an toàn (comb plate) chống kẹt, và các nút dừng khẩn cấp cho hành khách.
- Đánh giá khả năng chịu tải và độ bền vật liệu: Thang cuốn công cộng phải hoạt động trong môi trường khắc nghiệt. Hãy ưu tiên các vật liệu có độ bền cao như thép không gỉ (inox) cho các bộ phận tiếp xúc nhiều (bậc thang, tấm ốp), và kính cường lực dày cho lan can. Hệ thống truyền động (động cơ, hộp số) phải được chứng minh có khả năng vận hành liên tục dưới tải trọng lớn.
- Ưu tiên thương hiệu và dịch vụ hậu mãi: Bạn nên lựa chọn các thương hiệu thang cuốn uy tín, có lịch sử lâu đời và được công nhận trên toàn cầu. Quan trọng không kém là dịch vụ hậu mãi: hãy chọn nhà cung cấp có cam kết rõ ràng về chế độ bảo hành và cung cấp dịch vụ bảo trì, bảo dưỡng chuyên nghiệp, nhanh chóng sau khi lắp đặt.
- Tuân thủ các tiêu chuẩn kỹ thuật: Đảm bảo rằng thang cuốn bạn chọn tuân thủ đầy đủ các tiêu chuẩn kỹ thuật bắt buộc của quốc gia (TCVN) và quốc tế (ví dụ như EN 115 của Châu Âu), đặc biệt là các quy định về an toàn điện và cơ khí.
Thang Máy Gia Định – Địa chỉ chuyên cung cấp thang cuốn uy tín, chất lượng
Thang Máy Gia Định là một trong những đơn vị hàng đầu tại Việt Nam, chuyên cung cấp các giải pháp thang máy và thang cuốn toàn diện, uy tín và chất lượng. Việc lựa chọn một đối tác cung cấp và lắp đặt đáng tin cậy là bước quan trọng sau khi bạn đã nắm rõ các thông số kỹ thuật, bởi thang cuốn là một khoản đầu tư lớn, đòi hỏi chuyên môn kỹ thuật sâu và cam kết dịch vụ lâu dài. Thang Máy Gia Định tự hào đáp ứng đầy đủ các tiêu chí này.
Chúng tôi hiểu rằng mỗi công trình có một đặc thù riêng về kiến trúc và nhu cầu vận hành. Vì vậy, Thang Máy Gia Định không chỉ bán một sản phẩm, mà chúng tôi mang đến một giải pháp được “may đo” chính xác cho nhu cầu của bạn. Khi lựa chọn Thang Máy Gia Định, bạn sẽ nhận được những lợi ích vượt trội:
- Sản phẩm chính hãng, chất lượng hàng đầu: Chúng tôi là đối tác phân phối của nhiều thương hiệu thang cuốn danh tiếng trên thế giới, cam kết 100% sản phẩm là hàng chính hãng, có nguồn gốc xuất xứ rõ ràng, đầy đủ giấy tờ chứng nhận chất lượng (CO, CQ).
- Đội ngũ tư vấn kỹ thuật chuyên sâu: Các chuyên gia của chúng tôi sẽ lắng nghe nhu cầu của bạn, khảo sát trực tiếp tại công trình để phân tích lưu lượng di chuyển và không gian kiến trúc. Từ đó, chúng tôi sẽ tư vấn cho bạn lựa chọn kích thước (chiều rộng bậc), tốc độ và loại thang cuốn (nghiêng, ngang) phù hợp nhất, giúp tối ưu hóa hiệu suất vận hành và chi phí đầu tư.
- Dịch vụ lắp đặt chuyên nghiệp, tuân thủ an toàn tuyệt đối: Quá trình lắp đặt thang cuốn đòi hỏi sự chính xác tuyệt đối. Đội ngũ kỹ thuật viên của Thang Máy Gia Định được đào tạo bài bản, có nhiều năm kinh nghiệm, tuân thủ nghiêm ngặt các tiêu chuẩn an toàn kỹ thuật quốc tế trong suốt quá trình thi công và kiểm định.
- Chế độ bảo hành, bảo trì uy tín: Cam kết đồng hành lâu dài cùng khách hàng là tôn chỉ của chúng tôi. Thang Máy Gia Định cung cấp chính sách bảo hành rõ ràng, minh bạch và dịch vụ bảo trì định kỳ chuyên nghiệp, đảm bảo thang cuốn của bạn luôn vận hành trong trạng thái ổn định, an toàn và bền bỉ nhất.
- Giải pháp chi phí cạnh tranh: Chúng tôi mang đến cho bạn những sản phẩm chất lượng cao với mức giá hợp lý, đi kèm với dịch vụ hậu mãi tận tâm, đảm bảo giá trị đầu tư của bạn là hiệu quả nhất.
Kết luận
Thang cuốn là một hạng mục không thể thiếu trong các công trình công cộng hiện đại, đóng vai trò then chốt trong việc đảm bảo dòng lưu thông thông suốt, nhanh chóng và an toàn. Bài viết này đã cung cấp cho bạn cái nhìn tổng quan và chi tiết về kích thước thang cuốn chuẩn nhất 2025, các loại thang phổ biến cùng những ưu điểm và lưu ý quan trọng khi lựa chọn.
Việc hiểu rõ các yếu tố kỹ thuật này sẽ giúp bạn tự tin hơn khi đưa ra quyết định đầu tư, đảm bảo lựa chọn được sản phẩm phù hợp nhất với nhu cầu và quy mô công trình của mình. Một hệ thống thang cuốn chất lượng không chỉ nâng cao hiệu quả vận hành mà còn góp phần nâng tầm giá trị và sự hiện đại cho tòa nhà. Nếu bạn cần tư vấn chuyên sâu hơn hoặc đang tìm kiếm một nhà cung cấp thang cuốn uy tín, chất lượng và chuyên nghiệp, đừng ngần ngại liên hệ ngay với Thang Máy Gia Định. Hãy truy cập website Thangmaygiadinh.net.vn hoặc gọi đến hotline của chúng tôi để nhận được sự hỗ trợ tận tâm và giải pháp tối ưu nhất cho công trình của bạn.
Xem thêm: